宮城県石巻市南中里2丁目(石巻駅)の貸店舗:物件詳細
交通 所在地 |
駅徒歩 |
賃料 管理費等 |
敷金/保証金 礼金 |
使用部分面積 坪数/坪単価 |
物件種目 築年月 |
|
JR仙石線/石巻
宮城県石巻市南中里2丁目
|
12分
|
88万円
なし
|
3ヶ月 / なし
なし
|
598.48m²
181.03坪/0.4861万円
|
貸店舗(建物一括)
2000年11月(築25年7ヶ月)
|
|
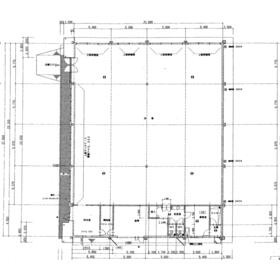
間取図
|
外観
|
<
その他の画像
>
|
| 交通 | JR仙石線 石巻駅 徒歩12分 |
| 所在地 |
宮城県石巻市南中里2丁目
|
| 物件種目 |
貸店舗(建物一括) |
| 賃料 |
88万円 |
管理費等 |
なし |
| 敷金 / 保証金 |
3ヶ月 / なし |
礼金 |
なし |
| 敷引 |
- |
坪単価 |
0.4861万円 |
| 保証金償却 |
- |
権利金 |
- |
| 造作譲渡 |
- |
その他一時金 |
- |
| 維持費等 |
- |
保険等 |
要 借家人賠償責任保険 |
| 使用部分面積 |
598.48m² |
坪数 |
181.03坪 |
| 築年月 |
2000年11月(築25年7ヶ月)
|
階建 / 階 |
1階建 |
| 駐車場 |
有 無料(空き38台) |
バイク置き場 |
- |
| 駐輪場 |
- |
土地面積 |
1,650.53m²(実測) |
| 接道状況 |
北 9.0m 公道 接面41.0m
・
南 6.0m 公道 接面20.5m
|
用途地域 |
2種住居 |
| 間取り |
- |
建物構造 |
鉄骨造 |
| 建物名・部屋番号 |
|
| リフォーム履歴 |
■その他:2025年2月 売場エアコン交換 ※実施年月は最も古い履歴を表示 |
| リノベーション履歴 |
- |
| 特記事項 |
飲食店不可、天井高2.5M以上 |
| 備考 |
賃貸保証等:加入要(テナント家賃保証/利用料:賃料の1か月分)
管理形態/管理員の勤務形態:-/-
◇令和7年に売場エアコンを交換しております。
◇現状での引渡しとなるため、内外装及び電気・給排水等設備の変更は借主様の負担となります。
◇契約期間につきましては、別途相談といたします。
|
| エネルギー消費性能 |
- |
| 断熱性能 |
- |
| 目安光熱費 |
- |
| バス・トイレ |
- |
| キッチン |
- |
| 設備・サービス |
天井高3.3m、空調機あり |
| その他 |
- |
| 契約期間 |
10年 |
条件等 |
定期借家 |
| 引渡可能時期 |
相談 |
現況 |
空 |
| 仲介手数料 |
88万円 |
適格請求書発行 |
可
|
| 更新料 |
なし |
物件番号 |
6986587138 |
| 情報公開日 |
2026年3月21日 |
次回更新予定日 |
2026年5月16日 |
| ケータイ用バーコード |
- スマートフォンでこの物件を見る
- スマートフォンからもこの物件をご覧になれます。
|
※「-」と表示されている項目については、情報提供会社にご確認ください。
| 周辺施設 |
ヤマト屋書店TSUTAYA中里店 |
| 距離 |
276m |
ここから簡単にお問い合わせをすることができます。
(SSLでの暗号化での送信を希望されるお客さまは
こちら
よりお問い合わせください)
お問い合わせを行う前に
「個人情報の取り扱いについて」を必ずお読みください。
「個人情報の取り扱いについて」に同意いただいた場合は「上記にご同意の上 確認画面へ進む」のボタンをクリックしてください。
個人情報の取り扱いについて
皆さまが送付された個人情報はアットホーム(株)のサーバを経由し、お問い合わせ先の不動産会社にメールまたはFAXにて転送されるためアットホーム(株)にも保管されます。アットホーム(株)で保管された個人情報の取り扱いについては、【こちら】をご覧ください。
また、本画面でご記入いただいた個人情報は、お問い合わせ先の不動産会社でも保管します。 お問い合わせ先の不動産会社が保管する個人情報の取り扱いについては、不動産会社に直接お問い合わせください。
宮城県知事免許(4)第5539号 |
|---|
- 交通:
- JR仙石線/石巻駅 徒歩12分 【バス】 ミヤコー石巻営業所 停歩1分
- 宮城県石巻市住吉町2丁目6-23
- TEL:
- 0225-98-4335
- FAX:
- 0225-98-4365
- 所属団体:
- (公社)宮城県宅地建物取引業協会会員東北地区不動産公正取引協議会加盟
取引態様:仲介  - 20003296
|
- スマートフォンで
この不動産会社を見る

|
- 提携サイト等より掲載されている物件情報につきましては、不動産会社詳細情報にリンクされていないものがあります。
- 物件に関するお問合せは、物件詳細ページの「情報提供会社」に表示されている不動産会社へ直接お願いいたします。
- 間取図は、現況を優先させていただきます。
- 映像は物件の一部を撮影したものです。物件の契約にあたっての最終判断はご自身の判断に基づいて行ってください。
- 仲介手数料について

アットホームは物件情報の適正化に努めております。
内容に誤りがある場合にはこちらへご連絡ください。