東京都調布市佐須町4丁目(柴崎駅)の貸店舗:物件詳細
交通 所在地 |
駅徒歩 |
賃料 管理費等 |
敷金/保証金 礼金 |
使用部分面積 坪数/坪単価 |
物件種目 築年月 |
|
京王線/柴崎
東京都調布市佐須町4丁目
|
12分
|
88万円
なし
|
4ヶ月 / なし
1ヶ月
|
212.37m²
64.24坪/1.3699万円
|
貸店舗・事務所
2011年4月(築15年2ヶ月)
|
|
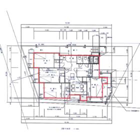
間取図
|
間取図
|
<
その他の画像
>
|
| 交通 | 京王線 柴崎駅 徒歩12分 |
|---|
| その他の交通 | 京王線 国領駅 徒歩12分 京王線 布田駅 徒歩17分 |
| 所在地 |
東京都調布市佐須町4丁目
|
| 物件種目 |
貸店舗・事務所 |
| 賃料 |
88万円 |
管理費等 |
なし |
| 敷金 / 保証金 |
4ヶ月 / なし |
礼金 |
1ヶ月 |
| 敷引 |
- |
坪単価 |
1.3699万円 |
| 保証金償却 |
- |
権利金 |
- |
| 造作譲渡 |
- |
その他一時金 |
- |
| 維持費等 |
- |
保険等 |
要 |
| 使用部分面積 |
212.37m² |
坪数 |
64.24坪 |
| 築年月 |
2011年4月(築15年2ヶ月)
|
階建 / 階 |
2階建 / 1階~2階部分 |
| 駐車場 |
有 無料(空き1台) |
バイク置き場 |
無 |
| 駐輪場 |
無 |
土地面積 |
- |
| 接道状況 |
-
|
用途地域 |
1種低層 |
| 間取り |
- |
建物構造 |
鉄骨・木造 |
| アピールポイント |
1階面積127.12㎡、2階85.25㎡の合計212.37㎡となり、1棟貸しの物件となります。一種低層住居専用地域となり、用途については福祉系の施設限定となります。駐車場台数については1台とさせていただいておりますが、現況3台分の駐車場があります。※道路拡張計画の問題で将来的に1台となる予定です。詳細はお問合せ下さいませ。 |
| 建物名・部屋番号 |
佐須町福祉施設 |
| リフォーム履歴 |
- |
| リノベーション履歴 |
- |
| 特記事項 |
居抜き、24時間利用可、土曜日利用可、土日・祝日利用可、飲食店不可、1フロア1テナント、角部屋 |
| 備考 |
賃貸保証等:加入要(初回月額賃料の100%、年10%)
管理形態/管理員の勤務形態:-/-
10年定期借家契約となりますが、途中解約可・再契約可となります。
|
| エネルギー消費性能 |
- |
| 断熱性能 |
- |
| 目安光熱費 |
- |
| バス・トイレ |
バス・トイレ別、シャワー |
| キッチン |
- |
| 設備・サービス |
エアコン2台以上、収納スペース、給湯、ビルトインエアコン、エアコン、火災警報器(報知機) |
| その他 |
- |
| 契約期間 |
10年 |
条件等 |
定期借家 |
| 引渡可能時期 |
相談 |
現況 |
空 |
| 更新料 |
- |
物件番号 |
6986635761 |
| 情報公開日 |
2025年6月10日 |
次回更新予定日 |
2026年6月2日 |
| ケータイ用バーコード |
- スマートフォンでこの物件を見る
- スマートフォンからもこの物件をご覧になれます。
|
※「-」と表示されている項目については、情報提供会社にご確認ください。
| 周辺施設 |
まいばすけっと調布八雲台1丁目店 |
| 距離 |
680m |
| 周辺施設 |
まいばすけっと柴崎駅北店 |
| 距離 |
670m |
| 周辺施設 |
セブンイレブン調布国領町1丁目店 |
| 距離 |
560m |
| 周辺施設 |
セブンイレブン調布国領町2丁目店 |
| 距離 |
640m |
| 周辺施設 |
医療法人社団大和会多摩川病院 |
| 距離 |
1260m |
ここから簡単にお問い合わせをすることができます。
(SSLでの暗号化での送信を希望されるお客さまは
こちら
よりお問い合わせください)
お問い合わせを行う前に
「個人情報の取り扱いについて」を必ずお読みください。
「個人情報の取り扱いについて」に同意いただいた場合は「上記にご同意の上 確認画面へ進む」のボタンをクリックしてください。
個人情報の取り扱いについて
皆さまが送付された個人情報はアットホーム(株)のサーバを経由し、お問い合わせ先の不動産会社にメールまたはFAXにて転送されるためアットホーム(株)にも保管されます。アットホーム(株)で保管された個人情報の取り扱いについては、【こちら】をご覧ください。
また、本画面でご記入いただいた個人情報は、お問い合わせ先の不動産会社でも保管します。 お問い合わせ先の不動産会社が保管する個人情報の取り扱いについては、不動産会社に直接お問い合わせください。
国土交通大臣免許(7)第5338号 |
|---|
- 交通:
- 東京メトロ銀座線/赤坂見附駅 徒歩2分
- 東京都港区元赤坂1丁目5-5 元赤坂SFビル3階
- TEL:
- 03-5414-0650
- FAX:
- 03-5414-0659
- 所属団体:
- (一社)不動産流通経営協会会員(公社)首都圏不動産公正取引協議会加盟
取引態様:仲介  - 00160828
|
- スマートフォンで
この不動産会社を見る

|
- 提携サイト等より掲載されている物件情報につきましては、不動産会社詳細情報にリンクされていないものがあります。
- 物件に関するお問合せは、物件詳細ページの「情報提供会社」に表示されている不動産会社へ直接お願いいたします。
- 間取図は、現況を優先させていただきます。
- 映像は物件の一部を撮影したものです。物件の契約にあたっての最終判断はご自身の判断に基づいて行ってください。
- 仲介手数料について

アットホームは物件情報の適正化に努めております。
内容に誤りがある場合にはこちらへご連絡ください。