埼玉県さいたま市中央区上落合1丁目(北与野駅)の貸店舗:物件詳細
交通 所在地 |
駅徒歩 |
賃料 管理費等 |
敷金/保証金 礼金 |
使用部分面積 坪数/坪単価 |
物件種目 築年月 |
|
JR埼京線/北与野
埼玉県さいたま市中央区上落合1丁目
|
1分
|
55.781万円
-
|
なし / 6ヶ月
なし
|
167.65m²
50.71坪/1.10万円
|
貸店舗
1992年3月(築34年1ヶ月)
|
|
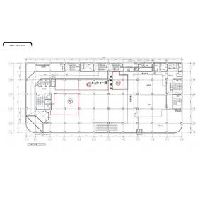
間取図
|
|
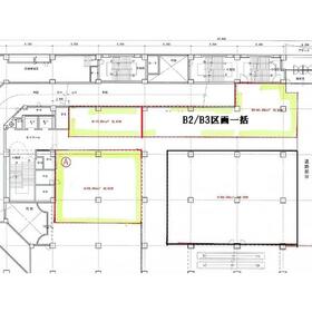
その他の画像
|
| 交通 | JR埼京線 北与野駅 徒歩1分 |
|---|
| その他の交通 | JR東北本線 さいたま新都心駅 徒歩8分 |
| 所在地 |
埼玉県さいたま市中央区上落合1丁目
|
| 物件種目 |
貸店舗 |
| 賃料 |
55.781万円 |
管理費等 |
- |
| 敷金 / 保証金 |
なし / 6ヶ月 |
礼金 |
なし |
| 敷引 |
- |
坪単価 |
1.10万円 |
| 保証金償却 |
- |
権利金 |
- |
| 造作譲渡 |
- |
その他一時金 |
- |
| 維持費等 |
- |
保険等 |
要 5年 借家人賠償 |
| 使用部分面積 |
167.65m² |
坪数 |
50.71坪 |
| 築年月 |
1992年3月(築34年1ヶ月)
|
階建 / 階 |
地上7階地下1階建 / 2階 |
| 駐車場 |
- |
バイク置き場 |
- |
| 駐輪場 |
- |
土地面積 |
- |
| 接道状況 |
-
|
用途地域 |
商業地域 |
| 間取り |
- |
建物構造 |
RC |
| アピールポイント |
■
さいたま市を中心に埼玉のテナント、店舗、事務所探しは
トップアシストにご相談下さい。
お探しの条件や業種ごとの適正を考慮し、テナント専門の
スタッフが最適なテナント物件をご提案させて頂きます! |
| 建物名・部屋番号 |
2F-B |
| リフォーム履歴 |
- |
| リノベーション履歴 |
- |
| 特記事項 |
居抜き、土日・祝日利用可、有人警備、飲食店不可、駐車場3台分以上、24時間セキュリティー、耐震構造(新耐震基準)、天井高2.5M以上、国道沿いに面する |
| 備考 |
賃貸保証等:加入要(複数取扱い有り)
管理形態/管理員の勤務形態:-/-
定期借家契約年数相談(再契約も相談)※ごみ処理代及び水道光熱費別途
B2及びB3区画は上下水道の引込が出来ません※※消防法の都合上、間仕切りは天井から
30Cm下までしか設置不可です
|
| エネルギー消費性能 |
- |
| 断熱性能 |
- |
| 目安光熱費 |
- |
| バス・トイレ |
男女別トイレ |
| キッチン |
- |
| 設備・サービス |
看板取付スペースあり、天井高2,987m、空調機あり
エアコン2台以上、防犯カメラ、ビルトインエアコン、火災警報器(報知機) |
| その他 |
荷積みスペース、エレベーター2基以上、人荷用エレベーター |
| 契約期間 |
5年 |
条件等 |
定期借家 |
| 引渡可能時期 |
相談 |
現況 |
空 |
| 仲介手数料 |
1ヶ月 |
適格請求書発行 |
可
|
| 更新料 |
- |
物件番号 |
6986649163 |
| 情報公開日 |
2026年1月22日 |
次回更新予定日 |
2026年4月10日 |
| ケータイ用バーコード |
- スマートフォンでこの物件を見る
- スマートフォンからもこの物件をご覧になれます。
|
※「-」と表示されている項目については、情報提供会社にご確認ください。
ここから簡単にお問い合わせをすることができます。
(SSLでの暗号化での送信を希望されるお客さまは
こちら
よりお問い合わせください)
お問い合わせを行う前に
「個人情報の取り扱いについて」を必ずお読みください。
「個人情報の取り扱いについて」に同意いただいた場合は「上記にご同意の上 確認画面へ進む」のボタンをクリックしてください。
個人情報の取り扱いについて
皆さまが送付された個人情報はアットホーム(株)のサーバを経由し、お問い合わせ先の不動産会社にメールまたはFAXにて転送されるためアットホーム(株)にも保管されます。アットホーム(株)で保管された個人情報の取り扱いについては、【こちら】をご覧ください。
また、本画面でご記入いただいた個人情報は、お問い合わせ先の不動産会社でも保管します。 お問い合わせ先の不動産会社が保管する個人情報の取り扱いについては、不動産会社に直接お問い合わせください。
埼玉県知事免許(2)第24200号 |
|---|
- 交通:
- JR東北本線/土呂駅 徒歩2分
- 埼玉県さいたま市北区土呂町1丁目15-17 折川ビル1F
- TEL:
- 048-729-7990
- FAX:
- 048-729-7991
- 所属団体:
- (公社)全日本不動産協会会員(公社)首都圏不動産公正取引協議会加盟
取引態様:仲介  - 00268187
|
- スマートフォンで
この不動産会社を見る

|
- 提携サイト等より掲載されている物件情報につきましては、不動産会社詳細情報にリンクされていないものがあります。
- 物件に関するお問合せは、物件詳細ページの「情報提供会社」に表示されている不動産会社へ直接お願いいたします。
- 間取図は、現況を優先させていただきます。
- 映像は物件の一部を撮影したものです。物件の契約にあたっての最終判断はご自身の判断に基づいて行ってください。
- 仲介手数料について

アットホームは物件情報の適正化に努めております。
内容に誤りがある場合にはこちらへご連絡ください。