大阪府大阪市平野区平野本町5丁目(平野駅)の貸店舗:物件詳細
交通 所在地 |
駅徒歩 |
賃料 管理費等 |
敷金/保証金 礼金 |
使用部分面積 坪数/坪単価 |
物件種目 築年月 |
地下鉄谷町線/平野
大阪府大阪市平野区平野本町5丁目
|
8分
|
8.58万円
-
|
なし / なし
3ヶ月
|
23.00m²
6.95坪/1.2333万円
|
貸店舗・事務所
2025年6月(新築)
|
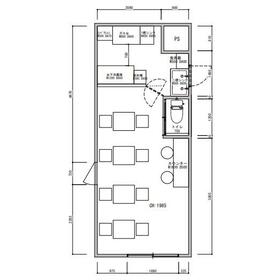
間取図
参考プラン図面
|
外観
|
<
その他の画像
>
|
交通 | 地下鉄谷町線 平野駅 徒歩8分 |
---|
その他の交通 | JR関西本線 平野駅 徒歩15分 地下鉄谷町線 駒川中野駅 徒歩25分 |
所在地 |
大阪府大阪市平野区平野本町5丁目
|
物件種目 |
貸店舗・事務所 |
賃料 |
8.58万円 |
管理費等 |
- |
敷金 / 保証金 |
なし / なし |
礼金 |
3ヶ月 |
敷引 |
- |
坪単価 |
1.2333万円 |
保証金償却 |
- |
権利金 |
- |
造作譲渡 |
- |
その他一時金 |
- |
維持費等 |
- |
保険等 |
要 |
使用部分面積 |
23.00m² |
坪数 |
6.95坪 |
築年月 |
2025年6月(新築)
|
階建 / 階 |
3階建 / 1階 |
駐車場 |
- |
バイク置き場 |
- |
駐輪場 |
- |
土地面積 |
- |
接道状況 |
西
・
南
・
二方道路
|
用途地域 |
1種住居 |
間取り |
- |
建物構造 |
木造 |
アピールポイント |
大阪市平野区平野本町に、新しく貸店舗・事務所が登場しました!場所は大阪メトロ谷町線「平野駅」から徒歩8分。しかも1階の路面に面した物件なので、店舗としても事務所としてもお客様を迎えやすいのがポイントです。
周辺は歴史ある平野郷エリアで、だんじり祭りが走り抜ける情緒あふれる街並み。地域の人とのつながりを大切にしたい方にはピッタリのロケーションです。新築ならではの清潔感はもちろん、角部屋で居抜き、飲食店もOK!専有トイレや都市ガス完備で使い勝手も◎。
賃料は月額8.58万円、敷金・保証金なしで初期費用を抑えられるのもうれしい条件。これからお店を始めたい方や、事務所を構えたい方におすすめできる一室です。平野区で新しい一歩を踏み出す拠点として、ぜひご検討ください! |
建物名・部屋番号 |
|
リフォーム履歴 |
- |
リノベーション履歴 |
- |
特記事項 |
居抜き、飲食店可、角部屋 |
備考 |
賃貸保証等:加入要(総賃料の1カ月分)
管理形態/管理員の勤務形態:-/-
主要採光面:西向き
|
エネルギー消費性能 |
- |
断熱性能 |
- |
目安光熱費 |
- |
バス・トイレ |
専有部分にトイレあり |
キッチン |
- |
設備・サービス |
看板取付スペースあり、シャッター付き
都市ガス |
その他 |
- |
契約期間 |
2年 |
条件等 |
- |
引渡可能時期 |
即時 |
現況 |
空 |
更新料 |
- |
物件番号 |
6986749953 |
情報公開日 |
2025年8月17日 |
次回更新予定日 |
2025年11月1日 |
ケータイ用バーコード |
- スマートフォンでこの物件を見る
- スマートフォンからもこの物件をご覧になれます。
|
※「-」と表示されている項目については、情報提供会社にご確認ください。
周辺施設 |
ローソン平野本町五丁目店 |
距離 |
106m |
周辺施設 |
私立大阪城南女子短期大学 |
距離 |
2590m |
周辺施設 |
大阪教育大学附属高校平野校舎 |
距離 |
677m |
周辺施設 |
国立大学法人大阪教育大学附属平野中学校 |
距離 |
674m |
周辺施設 |
認定こども園光源寺幼稚園 |
距離 |
244m |
ここから簡単にお問い合わせをすることができます。
(SSLでの暗号化での送信を希望されるお客さまは
こちら
よりお問い合わせください)
お問い合わせを行う前に
「個人情報の取り扱いについて」を必ずお読みください。
「個人情報の取り扱いについて」に同意いただいた場合は「上記にご同意の上 確認画面へ進む」のボタンをクリックしてください。
個人情報の取り扱いについて
皆さまが送付された個人情報はアットホーム(株)のサーバを経由し、お問い合わせ先の不動産会社にメールまたはFAXにて転送されるためアットホーム(株)にも保管されます。アットホーム(株)で保管された個人情報の取り扱いについては、【こちら】をご覧ください。
また、本画面でご記入いただいた個人情報は、お問い合わせ先の不動産会社でも保管します。 お問い合わせ先の不動産会社が保管する個人情報の取り扱いについては、不動産会社に直接お問い合わせください。
大阪府知事免許(4)第55328号 |
---|
- 交通:
- 地下鉄谷町線/平野駅 徒歩1分
- 大阪府大阪市平野区流町1丁目1-3
- TEL:
- 06-4303-4620
- FAX:
- 06-4303-4621
- 所属団体:
- (一社)大阪府宅地建物取引業協会会員(公社)近畿地区不動産公正取引協議会加盟
取引態様:仲介  - 50104017
|
- スマートフォンで
この不動産会社を見る

|
- 提携サイト等より掲載されている物件情報につきましては、不動産会社詳細情報にリンクされていないものがあります。
- 物件に関するお問合せは、物件詳細ページの「情報提供会社」に表示されている不動産会社へ直接お願いいたします。
- 間取図は、現況を優先させていただきます。
- 映像は物件の一部を撮影したものです。物件の契約にあたっての最終判断はご自身の判断に基づいて行ってください。
- 仲介手数料について

アットホームは物件情報の適正化に努めております。
内容に誤りがある場合にはこちらへご連絡ください。