静岡県浜松市中央区笠井町(遠州西ヶ崎駅)の貸店舗:物件詳細
交通 所在地 |
駅徒歩 |
賃料 管理費等 |
敷金/保証金 礼金 |
使用部分面積 坪数/坪単価 |
物件種目 築年月 |
|
遠州鉄道/遠州西ヶ崎
静岡県浜松市中央区笠井町
|
36分
|
66万円
なし
|
600万円 / なし
66万円
|
531.23m²
160.69坪/0.4108万円
|
貸店舗(建物一括)
2007年3月(築18年10ヶ月)
|
|
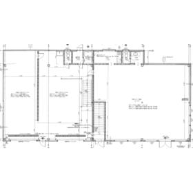
間取図
1階
|
|
その他の画像
|
| 交通 | 遠州鉄道 遠州西ヶ崎駅 徒歩36分 |
| 所在地 |
静岡県浜松市中央区笠井町
|
| 物件種目 |
貸店舗(建物一括) |
| 賃料 |
66万円 |
管理費等 |
なし |
| 敷金 / 保証金 |
600万円 / なし |
礼金 |
66万円 |
| 敷引 |
- |
坪単価 |
0.4108万円 |
| 保証金償却 |
- |
権利金 |
- |
| 造作譲渡 |
- |
その他一時金 |
- |
| 維持費等 |
- |
保険等 |
要 要相談 |
| 使用部分面積 |
531.23m² |
坪数 |
160.69坪 |
| 築年月 |
2007年3月(築18年10ヶ月)
|
階建 / 階 |
2階建 |
| 駐車場 |
有 無料 |
バイク置き場 |
- |
| 駐輪場 |
- |
土地面積 |
809.13m²(公簿) |
| 接道状況 |
東 公道
|
用途地域 |
無指定 |
| 間取り |
- |
建物構造 |
鉄骨造 |
| アピールポイント |
鉄骨二階建で、日用品の販売にも適した建物です。
詳しい平面図は、川井建設のホームページでご確認ください。
現在は所有者自らが使用中で、退去準備の都合上、、借主入居日の3カ月前の賃貸借契約締結が完了(必要経費の支払い等全て)する必要あり。お早めにお手続きください。 |
| 建物名・部屋番号 |
笠井町 店舗・事務所 |
| リフォーム履歴 |
- |
| リノベーション履歴 |
- |
| 特記事項 |
居抜き、24時間利用可、土日・祝日利用可、駐車場3台分以上、天井高2.5M以上、都道府県道沿いに面する |
| 備考 |
賃貸保証等:加入要(日本セーフティ(審査による))
管理形態/管理員の勤務形態:-/-
主要採光面:南向き
油水分離槽設置,泥洗浄用排水設備,工作機械付,トラック駐車可。
市街化調整区域にあって、沿道サービスの要件で開発された土地建物です。
現在は所有者自らが使用中で、退去準備の都合上、、借主入居日の3カ月前の賃貸借契約締結が完了(必要経費の支払い等全て)する必要あり。お早めにお手続きください。
|
| エネルギー消費性能 |
- |
| 断熱性能 |
- |
| 目安光熱費 |
- |
| バス・トイレ |
バス・トイレ別、シャワールーム、シャワー、トイレ2ヶ所 |
| キッチン |
- |
| 設備・サービス |
看板取付スペースあり、シャッター付き
個別空調、エアコン2台以上、収納スペース、室内洗濯機置場、電動シャッター、プロパンガス、ビルトインエアコン |
| その他 |
- |
| 契約期間 |
5年 |
条件等 |
- |
| 引渡可能時期 |
相談 |
現況 |
使用中 |
| 仲介手数料 |
66万円 |
適格請求書発行 |
可
|
| 更新料 |
- |
物件番号 |
6986794272 |
| 情報公開日 |
2025年9月17日 |
次回更新予定日 |
2025年12月16日 |
| ケータイ用バーコード |
- スマートフォンでこの物件を見る
- スマートフォンからもこの物件をご覧になれます。
|
※「-」と表示されている項目については、情報提供会社にご確認ください。
ここから簡単にお問い合わせをすることができます。
(SSLでの暗号化での送信を希望されるお客さまは
こちら
よりお問い合わせください)
お問い合わせを行う前に
「個人情報の取り扱いについて」を必ずお読みください。
「個人情報の取り扱いについて」に同意いただいた場合は「上記にご同意の上 確認画面へ進む」のボタンをクリックしてください。
個人情報の取り扱いについて
皆さまが送付された個人情報はアットホーム(株)のサーバを経由し、お問い合わせ先の不動産会社にメールまたはFAXにて転送されるためアットホーム(株)にも保管されます。アットホーム(株)で保管された個人情報の取り扱いについては、【こちら】をご覧ください。
また、本画面でご記入いただいた個人情報は、お問い合わせ先の不動産会社でも保管します。 お問い合わせ先の不動産会社が保管する個人情報の取り扱いについては、不動産会社に直接お問い合わせください。
静岡県知事免許(11)第5507号 |
|---|
- 交通:
- 東海道本線/浜松駅 【バス】 早出町 停歩3分
- 静岡県浜松市中央区早出町1200-12
- TEL:
- 053-461-9491
- FAX:
- 053-465-0986
- 所属団体:
- (公社)静岡県宅地建物取引業協会会員東海不動産公正取引協議会加盟
取引態様:仲介  - 40301042
|
- スマートフォンで
この不動産会社を見る

|
- 提携サイト等より掲載されている物件情報につきましては、不動産会社詳細情報にリンクされていないものがあります。
- 物件に関するお問合せは、物件詳細ページの「情報提供会社」に表示されている不動産会社へ直接お願いいたします。
- 間取図は、現況を優先させていただきます。
- 映像は物件の一部を撮影したものです。物件の契約にあたっての最終判断はご自身の判断に基づいて行ってください。
- 仲介手数料について

アットホームは物件情報の適正化に努めております。
内容に誤りがある場合にはこちらへご連絡ください。