東京都練馬区大泉学園町7丁目(大泉学園駅)の貸店舗:物件詳細
交通 所在地 |
駅徒歩 |
賃料 管理費等 |
敷金/保証金 礼金 |
使用部分面積 坪数/坪単価 |
物件種目 築年月 |
|
西武池袋線/大泉学園 【バス】15分 停歩3分
東京都練馬区大泉学園町7丁目
|
−
|
24.2万円
11,000円
|
なし / 5ヶ月
1ヶ月
|
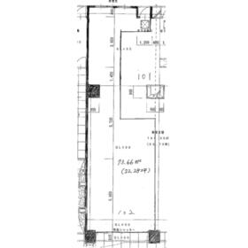
73.66m²
22.28坪/1.0861万円
|
貸店舗・事務所
2004年2月(築21年9ヶ月)
|
|
間取図
|
|
その他の画像
|
| 交通 | 西武池袋線 大泉学園駅 【バス】 15分 停歩3分 |
| 所在地 |
東京都練馬区大泉学園町7丁目
|
| 物件種目 |
貸店舗・事務所 |
| 賃料 |
24.2万円 |
管理費等 |
11,000円 |
| 敷金 / 保証金 |
なし / 5ヶ月 |
礼金 |
1ヶ月 |
| 敷引 |
- |
坪単価 |
1.0861万円 |
| 保証金償却 |
解約時20% |
権利金 |
- |
| 造作譲渡 |
- |
その他一時金 |
- |
| 維持費等 |
ALSOK防犯システム:5,500円/月 |
保険等 |
要 3年 |
| 使用部分面積 |
73.66m² |
坪数 |
22.28坪 |
| 築年月 |
2004年2月(築21年9ヶ月)
|
階建 / 階 |
5階建 / 1階 |
| 駐車場 |
無 |
バイク置き場 |
- |
| 駐輪場 |
- |
土地面積 |
- |
| 接道状況 |
-
|
用途地域 |
- |
| 間取り |
- |
建物構造 |
RC |
| アピールポイント |
【物件探しをお手伝い致します】
「貴高不動産と検索して下さい」
ホームページ「テナント探しのご依頼」よりお問い合わせいただければ、弊社スタッフよりご希望の条件に合わせてご紹介させていただきますので、お気軽にお問い合わせ下さい。
【テナント専門、管理物件多数】
貴高(キダカ)不動産はテナント専門の不動産会社です。
数多くある自社管理物件、直接オーナー様とご相談しますのでお任せ下さい!
【事務所・店舗の増店をお考えの方】
事務所・店舗等の事業用不動産に強い貴高不動産なら、未公開情報や新着情報をたくさんご紹介致します。
事業用不動産はまさにタイミングが重要です!
希望条件やご予算等をお知らせいただければ、ご希望に合う情報をご紹介させて頂きます。
【お気軽にお問合せ下さい】
メールアドレスや条件だけでもお問合せくだされば、定期的に新着物件のご案内をお送りしてます。
【LINE問合せも可能です】
ID:@125hwadk
こちらで検索してください。
電話に出られない場合がございますので、
その際はお問い合わせかLINEにてご連絡いただけると早めに対応させていただきます。 |
| 建物名・部屋番号 |
1階 |
| リフォーム履歴 |
- |
| リノベーション履歴 |
- |
| 特記事項 |
スケルトン、土曜日利用可、土日・祝日利用可、飲食店可、24時間セキュリティー |
| 備考 |
賃貸保証等:加入要(初回月額総額賃料等の100%、以降1年毎に月額総額賃料の10%の継続保証料を要す。)
管理形態/管理員の勤務形態:-/-
|
| エネルギー消費性能 |
- |
| 断熱性能 |
- |
| 目安光熱費 |
- |
| バス・トイレ |
- |
| キッチン |
- |
| 設備・サービス |
シャッター付き
電動シャッター、都市ガス |
| その他 |
- |
| 契約期間 |
3年 |
条件等 |
- |
| 引渡可能時期 |
相談 |
現況 |
空 |
| 仲介手数料 |
1.1ヶ月 |
|
|
| 更新料 |
新賃料 1ヶ月 |
物件番号 |
6986845450 |
| 情報公開日 |
2025年6月30日 |
次回更新予定日 |
2025年11月7日 |
| ケータイ用バーコード |
- スマートフォンでこの物件を見る
- スマートフォンからもこの物件をご覧になれます。
|
※「-」と表示されている項目については、情報提供会社にご確認ください。
| 周辺施設 |
サミットストア大泉学園店 |
| 距離 |
338m |
| 周辺施設 |
無印良品いなげや大泉学園店 |
| 距離 |
801m |
| 周辺施設 |
ワークマンプラス練馬大泉学園店 |
| 距離 |
1209m |
| 周辺施設 |
セブンイレブン練馬大泉学園町7丁目店 |
| 距離 |
274m |
| 周辺施設 |
ファミリーマート大泉長久保通り店 |
| 距離 |
342m |
| 周辺施設 |
セブンイレブン練馬大泉学園通り店 |
| 距離 |
578m |
ここから簡単にお問い合わせをすることができます。
(SSLでの暗号化での送信を希望されるお客さまは
こちら
よりお問い合わせください)
お問い合わせを行う前に
「個人情報の取り扱いについて」を必ずお読みください。
「個人情報の取り扱いについて」に同意いただいた場合は「上記にご同意の上 確認画面へ進む」のボタンをクリックしてください。
個人情報の取り扱いについて
皆さまが送付された個人情報はアットホーム(株)のサーバを経由し、お問い合わせ先の不動産会社にメールまたはFAXにて転送されるためアットホーム(株)にも保管されます。アットホーム(株)で保管された個人情報の取り扱いについては、【こちら】をご覧ください。
また、本画面でご記入いただいた個人情報は、お問い合わせ先の不動産会社でも保管します。 お問い合わせ先の不動産会社が保管する個人情報の取り扱いについては、不動産会社に直接お問い合わせください。
東京都知事免許(1)第106889号 |
|---|
- 交通:
- 東京メトロ東西線/葛西駅 徒歩2分
- 東京都江戸川区中葛西5丁目32-7 共立ビル 501号室
- TEL:
- 03-6456-0447
- FAX:
- 03-6456-0448
- 所属団体:
- (公社)全日本不動産協会会員(公社)首都圏不動産公正取引協議会加盟
取引態様:仲介  - 00271178
|
- スマートフォンで
この不動産会社を見る

|
- 提携サイト等より掲載されている物件情報につきましては、不動産会社詳細情報にリンクされていないものがあります。
- 物件に関するお問合せは、物件詳細ページの「情報提供会社」に表示されている不動産会社へ直接お願いいたします。
- 間取図は、現況を優先させていただきます。
- 映像は物件の一部を撮影したものです。物件の契約にあたっての最終判断はご自身の判断に基づいて行ってください。
- 仲介手数料について

アットホームは物件情報の適正化に努めております。
内容に誤りがある場合にはこちらへご連絡ください。