静岡県静岡市葵区伝馬町(静岡駅)の貸店舗:物件詳細
交通 所在地 |
駅徒歩 |
賃料 管理費等 |
敷金/保証金 礼金 |
使用部分面積 坪数/坪単価 |
物件種目 築年月 |
|
東海道本線/静岡
静岡県静岡市葵区伝馬町
|
7分
|
74.0256万円
84,744円
|
6ヶ月 / なし
なし
|
127.37m²
38.52坪/1.9213万円
|
貸店舗
1984年3月(築41年10ヶ月)
|
|
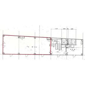
間取図
|
外観
|
<
その他の画像
>
|
| 交通 | 東海道本線 静岡駅 徒歩7分 |
|---|
| その他の交通 | 静岡鉄道静岡清水線 新静岡駅 徒歩2分 |
| 所在地 |
静岡県静岡市葵区伝馬町
|
| 物件種目 |
貸店舗 |
| 賃料 |
74.0256万円 |
管理費等 |
84,744円 |
| 敷金 / 保証金 |
6ヶ月 / なし |
礼金 |
なし |
| 敷引 |
- |
坪単価 |
1.9213万円 |
| 保証金償却 |
- |
権利金 |
- |
| 造作譲渡 |
- |
その他一時金 |
- |
| 維持費等 |
- |
保険等 |
- |
| 使用部分面積 |
127.37m² |
坪数 |
38.52坪 |
| 築年月 |
1984年3月(築41年10ヶ月)
|
階建 / 階 |
5階建 / 2階 |
| 駐車場 |
無 |
バイク置き場 |
無 |
| 駐輪場 |
無 |
土地面積 |
- |
| 接道状況 |
-
|
用途地域 |
商業地域 |
| 間取り |
- |
建物構造 |
SRC |
| アピールポイント |
JR「静岡駅」、静岡鉄道「新静岡駅」近くの商業施設・飲食物販店の集積する商業地。周辺商業施設「新静岡セノバ」・「けやきプラザ」・「モディ」・「松坂屋」。1階南アパレルショップ、2階北眉毛サロン、3階北ヘアサロンが入居。 |
| 建物名・部屋番号 |
サンタ・マーサビル |
| リフォーム履歴 |
- |
| リノベーション履歴 |
- |
| 特記事項 |
スケルトン、土曜日利用可、土日・祝日利用可、飲食店可、24時間セキュリティー |
| 備考 |
管理形態/管理員の勤務形態:-/-
JR「静岡駅」、静岡鉄道「新静岡駅」近くの商業施設・飲食物販店の集積する商業地。周辺商業施設「新静岡セノバ」・「けやきプラザ」・「モディ」・「松坂屋」。1階南アパレルショップ、2階北眉毛サロン、3階北ヘアサロンが入居。
|
| エネルギー消費性能 |
- |
| 断熱性能 |
- |
| 目安光熱費 |
- |
| バス・トイレ |
男女別トイレ |
| キッチン |
- |
| 設備・サービス |
シャッター付き |
| その他 |
エレベーター |
| 契約期間 |
2032年9月30日まで |
条件等 |
定期借家 |
| 引渡可能時期 |
指定有り2026年1月5日 |
現況 |
使用中 |
| 更新料 |
- |
物件番号 |
6986885231 |
| 情報公開日 |
2025年7月3日 |
次回更新予定日 |
2025年12月17日 |
| ケータイ用バーコード |
- スマートフォンでこの物件を見る
- スマートフォンからもこの物件をご覧になれます。
|
※「-」と表示されている項目については、情報提供会社にご確認ください。
| 周辺施設 |
新静岡セノバ(ショッピングセンター) |
| 距離 |
8m |
写真を見る |
| 周辺施設 |
けやきプラザ(ダイソー、ドン・キホーテ、サイゼリヤ、39マート) |
| 距離 |
8m |
写真を見る |
| 周辺施設 |
駿河屋(アニメ・キャラクターグッズ販売) |
| 距離 |
16m |
写真を見る |
| 周辺施設 |
スターバックスコーヒー(フードホールCOSA内) |
| 距離 |
25m |
写真を見る |
| 周辺施設 |
タリーズコーヒー(ペガサート1F) |
| 距離 |
8m |
写真を見る |
| 周辺施設 |
マクドナルド(サンタ・マーサビル隣) |
| 距離 |
5m |
写真を見る |
ここから簡単にお問い合わせをすることができます。
(SSLでの暗号化での送信を希望されるお客さまは
こちら
よりお問い合わせください)
お問い合わせを行う前に
「個人情報の取り扱いについて」を必ずお読みください。
「個人情報の取り扱いについて」に同意いただいた場合は「上記にご同意の上 確認画面へ進む」のボタンをクリックしてください。
個人情報の取り扱いについて
皆さまが送付された個人情報はアットホーム(株)のサーバを経由し、お問い合わせ先の不動産会社にメールまたはFAXにて転送されるためアットホーム(株)にも保管されます。アットホーム(株)で保管された個人情報の取り扱いについては、【こちら】をご覧ください。
また、本画面でご記入いただいた個人情報は、お問い合わせ先の不動産会社でも保管します。 お問い合わせ先の不動産会社が保管する個人情報の取り扱いについては、不動産会社に直接お問い合わせください。
静岡県知事免許(17)第274号 |
|---|
- 交通:
- 静岡鉄道静岡清水線/新静岡駅 徒歩3分
- 静岡県静岡市葵区鷹匠1丁目1-1 静鉄鷹匠ビル
- TEL:
- 054-255-8558
- FAX:
- 054-254-3625
- 所属団体:
- (公社)静岡県宅地建物取引業協会会員東海不動産公正取引協議会加盟
取引態様:貸主  - 40201401
|
- スマートフォンで
この不動産会社を見る

|
- 提携サイト等より掲載されている物件情報につきましては、不動産会社詳細情報にリンクされていないものがあります。
- 物件に関するお問合せは、物件詳細ページの「情報提供会社」に表示されている不動産会社へ直接お願いいたします。
- 間取図は、現況を優先させていただきます。
- 映像は物件の一部を撮影したものです。物件の契約にあたっての最終判断はご自身の判断に基づいて行ってください。
- 仲介手数料について

アットホームは物件情報の適正化に努めております。
内容に誤りがある場合にはこちらへご連絡ください。