東京都渋谷区渋谷3丁目(渋谷駅)の貸店舗:物件詳細
交通 所在地 |
駅徒歩 |
賃料 管理費等 |
敷金/保証金 礼金 |
使用部分面積 坪数/坪単価 |
物件種目 築年月 |
|
JR山手線/渋谷
東京都渋谷区渋谷3丁目
|
5分
|
38.14万円
-
|
なし / 2ヶ月
1ヶ月
|
76.42m²
23.11坪/1.6499万円
|
貸店舗・事務所
1963年5月(築62年10ヶ月)
|
|
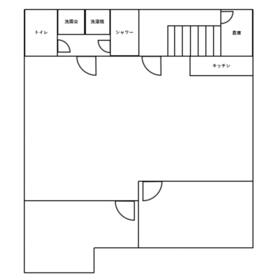
間取図
201
|
外観
|
その他の画像
|
| 交通 | JR山手線 渋谷駅 徒歩5分 |
|---|
| その他の交通 | 東京メトロ銀座線 渋谷駅 徒歩5分 東急田園都市線 渋谷駅 徒歩5分 |
| 所在地 |
東京都渋谷区渋谷3丁目
|
| 物件種目 |
貸店舗・事務所 |
| 賃料 |
38.14万円 |
管理費等 |
- |
| 敷金 / 保証金 |
なし / 2ヶ月 |
礼金 |
1ヶ月 |
| 敷引 |
- |
坪単価 |
1.6499万円 |
| 保証金償却 |
- |
権利金 |
- |
| 造作譲渡 |
- |
その他一時金 |
- |
| 維持費等 |
- |
保険等 |
要 |
| 使用部分面積 |
76.42m² |
坪数 |
23.11坪 |
| 築年月 |
1963年5月(築62年10ヶ月)
|
階建 / 階 |
2階建 / 2階 |
| 駐車場 |
- |
バイク置き場 |
- |
| 駐輪場 |
- |
土地面積 |
- |
| 接道状況 |
-
|
用途地域 |
- |
| 間取り |
- |
建物構造 |
RC |
| アピールポイント |
■スクールや貸会議室、SOHOなどもご相談ください!
※現在リノベーション中。画像はリノベーション途中の様子です。
★償却:相談
★普通借家契約(特約有)
★更新料:相談
・室内洗濯機置き場
・簡易キッチン |
| 建物名・部屋番号 |
高橋ビル 2F |
| リフォーム履歴 |
- |
| リノベーション履歴 |
- |
| 特記事項 |
1フロア1テナント、最上階 |
| 備考 |
賃貸保証等:加入要(初回保証委託料:賃料等月額固定費の1ヶ月分)
管理形態/管理員の勤務形態:-/-
■スクールや貸会議室、SOHOなどもご相談ください!
※現在リノベーション中。画像はリノベーション途中の様子です。
★償却:相談
★普通借家契約(特約有)
★更新料:相談
・室内洗濯機置き場
・簡易キッチン
|
| エネルギー消費性能 |
- |
| 断熱性能 |
- |
| 目安光熱費 |
- |
| バス・トイレ |
共用部分にトイレあり |
| キッチン |
- |
| 設備・サービス |
空調機あり
個別空調、エアコン、暖房、冷房 |
| その他 |
- |
| 契約期間 |
2年 |
条件等 |
- |
| 引渡可能時期 |
相談 |
現況 |
空 |
| 仲介手数料 |
1ヶ月 |
|
|
| 更新料 |
- |
物件番号 |
6986889048 |
| 情報公開日 |
2025年7月3日 |
次回更新予定日 |
2026年2月13日 |
| ケータイ用バーコード |
- スマートフォンでこの物件を見る
- スマートフォンからもこの物件をご覧になれます。
|
※「-」と表示されている項目については、情報提供会社にご確認ください。
| 周辺施設 |
PEACE PARK渋谷1丁目 |
| 距離 |
18m |
| 周辺施設 |
ローソンJPローソン渋谷郵便局店 |
| 距離 |
126m |
| 周辺施設 |
東京スクールオブミュージック専門学校渋谷 |
| 距離 |
96m |
ここから簡単にお問い合わせをすることができます。
(SSLでの暗号化での送信を希望されるお客さまは
こちら
よりお問い合わせください)
お問い合わせを行う前に
「個人情報の取り扱いについて」を必ずお読みください。
「個人情報の取り扱いについて」に同意いただいた場合は「上記にご同意の上 確認画面へ進む」のボタンをクリックしてください。
個人情報の取り扱いについて
皆さまが送付された個人情報はアットホーム(株)のサーバを経由し、お問い合わせ先の不動産会社にメールまたはFAXにて転送されるためアットホーム(株)にも保管されます。アットホーム(株)で保管された個人情報の取り扱いについては、【こちら】をご覧ください。
また、本画面でご記入いただいた個人情報は、お問い合わせ先の不動産会社でも保管します。 お問い合わせ先の不動産会社が保管する個人情報の取り扱いについては、不動産会社に直接お問い合わせください。
東京都知事免許(5)第79601号 |
|---|
- 交通:
- JR山手線/渋谷駅 徒歩4分
- 東京都渋谷区渋谷2丁目14-13 岡崎ビル609
- TEL:
- 03-3409-8666
- FAX:
- 03-3409-8665
- 所属団体:
- (公社)全日本不動産協会会員(公社)首都圏不動産公正取引協議会加盟
取引態様:仲介  - 00278846
|
- スマートフォンで
この不動産会社を見る

|
- 提携サイト等より掲載されている物件情報につきましては、不動産会社詳細情報にリンクされていないものがあります。
- 物件に関するお問合せは、物件詳細ページの「情報提供会社」に表示されている不動産会社へ直接お願いいたします。
- 間取図は、現況を優先させていただきます。
- 映像は物件の一部を撮影したものです。物件の契約にあたっての最終判断はご自身の判断に基づいて行ってください。
- 仲介手数料について

アットホームは物件情報の適正化に努めております。
内容に誤りがある場合にはこちらへご連絡ください。