大阪府大阪市生野区中川西2丁目(今里駅)の貸店舗:物件詳細
交通 所在地 |
駅徒歩 |
賃料 管理費等 |
敷金/保証金 礼金 |
使用部分面積 坪数/坪単価 |
物件種目 築年月 |
|
地下鉄千日前線/今里
大阪府大阪市生野区中川西2丁目
|
17分
|
29.81万円
22,000円
|
3ヶ月 / なし
なし
|
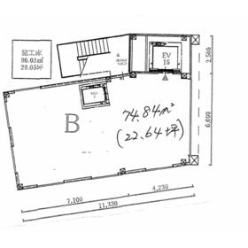
74.84m²
22.63坪/1.3168万円
|
貸店舗・事務所
1994年4月(築31年11ヶ月)
|
|
間取図
|
|
その他の画像
|
| 交通 | 地下鉄千日前線 今里駅 徒歩17分 |
|---|
| その他の交通 | JR大阪環状線 桃谷駅 徒歩18分 近鉄大阪線 今里駅 徒歩18分 |
| 所在地 |
大阪府大阪市生野区中川西2丁目
|
| 物件種目 |
貸店舗・事務所 |
| 賃料 |
29.81万円 |
管理費等 |
22,000円 |
| 敷金 / 保証金 |
3ヶ月 / なし |
礼金 |
なし |
| 敷引 |
- |
坪単価 |
1.3168万円 |
| 保証金償却 |
- |
権利金 |
- |
| 造作譲渡 |
- |
その他一時金 |
- |
| 維持費等 |
- |
保険等 |
要 AIG |
| 使用部分面積 |
74.84m² |
坪数 |
22.63坪 |
| 築年月 |
1994年4月(築31年11ヶ月)
|
階建 / 階 |
4階建 / 2階 |
| 駐車場 |
無 |
バイク置き場 |
- |
| 駐輪場 |
- |
土地面積 |
- |
| 接道状況 |
西 4.0m 公道
・
東 29.0m 公道
・
二方道路
|
用途地域 |
準工業 |
| 間取り |
- |
建物構造 |
鉄骨造 |
| アピールポイント |
府道沿いで視認性があります。4階は歯医者で使用されており、業種は医療限定です。他に1階49.85㎡ 24.88万円 3階74.84㎡29.81万円も賃貸相談可能です。 |
| 建物名・部屋番号 |
生野区中川西2丁目 貸店舗事務所2階部分 桃谷駅18分 府道沿 |
| リフォーム履歴 |
- |
| リノベーション履歴 |
- |
| 特記事項 |
- |
| 備考 |
管理形態/管理員の勤務形態:-/-
医療限定
|
| エネルギー消費性能 |
- |
| 断熱性能 |
- |
| 目安光熱費 |
- |
| バス・トイレ |
- |
| キッチン |
- |
| 設備・サービス |
都市ガス |
| その他 |
エレベーター |
| 契約期間 |
2年 |
条件等 |
- |
| 引渡可能時期 |
相談 |
現況 |
空 |
| 更新料 |
- |
物件番号 |
6986986278 |
| 情報公開日 |
2025年7月12日 |
次回更新予定日 |
2026年2月12日 |
| ケータイ用バーコード |
- スマートフォンでこの物件を見る
- スマートフォンからもこの物件をご覧になれます。
|
※「-」と表示されている項目については、情報提供会社にご確認ください。
ここから簡単にお問い合わせをすることができます。
(SSLでの暗号化での送信を希望されるお客さまは
こちら
よりお問い合わせください)
お問い合わせを行う前に
「個人情報の取り扱いについて」を必ずお読みください。
「個人情報の取り扱いについて」に同意いただいた場合は「上記にご同意の上 確認画面へ進む」のボタンをクリックしてください。
個人情報の取り扱いについて
皆さまが送付された個人情報はアットホーム(株)のサーバを経由し、お問い合わせ先の不動産会社にメールまたはFAXにて転送されるためアットホーム(株)にも保管されます。アットホーム(株)で保管された個人情報の取り扱いについては、【こちら】をご覧ください。
また、本画面でご記入いただいた個人情報は、お問い合わせ先の不動産会社でも保管します。 お問い合わせ先の不動産会社が保管する個人情報の取り扱いについては、不動産会社に直接お問い合わせください。
大阪府知事免許(3)第58763号 |
|---|
- 交通:
- 地下鉄御堂筋線/なかもず駅 徒歩1分
- 大阪府堺市北区中百舌鳥町5丁723 大西ビル2F
- TEL:
- 072-246-3337
- FAX:
- 072-246-3338
- 所属団体:
- (公社)全日本不動産協会会員(公社)近畿地区不動産公正取引協議会加盟
取引態様:仲介  - 50108757
|
- スマートフォンで
この不動産会社を見る

|
- 提携サイト等より掲載されている物件情報につきましては、不動産会社詳細情報にリンクされていないものがあります。
- 物件に関するお問合せは、物件詳細ページの「情報提供会社」に表示されている不動産会社へ直接お願いいたします。
- 間取図は、現況を優先させていただきます。
- 映像は物件の一部を撮影したものです。物件の契約にあたっての最終判断はご自身の判断に基づいて行ってください。
- 仲介手数料について

アットホームは物件情報の適正化に努めております。
内容に誤りがある場合にはこちらへご連絡ください。