群馬県前橋市表町2丁目(前橋駅)の貸店舗:物件詳細
交通 所在地 |
駅徒歩 |
賃料 管理費等 |
敷金/保証金 礼金 |
使用部分面積 坪数/坪単価 |
物件種目 築年月 |
|
湘南新宿ライン(前橋〜小田原)/前橋
群馬県前橋市表町2丁目
|
4分
|
14万円
-
|
2ヶ月 / なし
1ヶ月
|
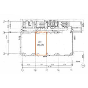
53.00m²
16.03坪/0.8733万円
|
貸店舗・事務所
2003年7月(築22年6ヶ月)
|
|
間取図
|
|
その他の画像
|
| 交通 | 湘南新宿ライン(前橋〜小田原) 前橋駅 徒歩4分 |
|---|
| その他の交通 | JR両毛線 前橋駅 徒歩4分 上毛電鉄 中央前橋駅 徒歩15分 |
| 所在地 |
群馬県前橋市表町2丁目
|
| 物件種目 |
貸店舗・事務所 |
| 賃料 |
14万円 |
管理費等 |
- |
| 敷金 / 保証金 |
2ヶ月 / なし |
礼金 |
1ヶ月 |
| 敷引 |
- |
坪単価 |
0.8733万円 |
| 保証金償却 |
- |
権利金 |
- |
| 造作譲渡 |
- |
その他一時金 |
- |
| 維持費等 |
- |
保険等 |
要 3年 火災 |
| 使用部分面積 |
53.00m² |
坪数 |
16.03坪 |
| 築年月 |
2003年7月(築22年6ヶ月)
|
階建 / 階 |
地上8階地下1階建 / 7階 |
| 駐車場 |
有 11,000円/月(空き8台) |
バイク置き場 |
無 |
| 駐輪場 |
有 無料 |
土地面積 |
424.54m²(公簿) |
| 接道状況 |
北 22.0m 公道
・
東 6.0m 公道
・
二方道路
|
用途地域 |
商業地域 |
| 間取り |
ワンルーム |
建物構造 |
鉄骨造 |
| 建物名・部屋番号 |
駅前ハーモニービル |
| リフォーム履歴 |
- |
| リノベーション履歴 |
- |
| 特記事項 |
24時間利用可、土日・祝日利用可、駐車場3台分以上 |
| 備考 |
賃貸保証等:利用可(ジェイリース 初回保証料は月額賃料の100%、継続保証料は毎年月額賃料の10%)
管理形態/管理員の勤務形態:-/-
主要採光面:東向き
飲食店不可。占有床面積概算になります。月々の電気料、水道料金は使用分を別途お支払いいただきます。
|
| エネルギー消費性能 |
- |
| 断熱性能 |
- |
| 目安光熱費 |
- |
| バス・トイレ |
共用部分に男女別トイレあり |
| キッチン |
- |
| 設備・サービス |
空調機あり
ビルトインエアコン、火災警報器(報知機)、インターネット対応 |
| その他 |
エレベーター2基以上、内廊下 |
| 契約期間 |
3年 |
条件等 |
- |
| 引渡可能時期 |
指定有り2025年11月10日 |
現況 |
使用中 |
| 仲介手数料 |
1ヶ月 |
適格請求書発行 |
可
|
| 更新料 |
新賃料 1ヶ月 |
物件番号 |
6987004184 |
| 情報公開日 |
2025年11月21日 |
次回更新予定日 |
2025年12月5日 |
| ケータイ用バーコード |
- スマートフォンでこの物件を見る
- スマートフォンからもこの物件をご覧になれます。
|
※「-」と表示されている項目については、情報提供会社にご確認ください。
ここから簡単にお問い合わせをすることができます。
(SSLでの暗号化での送信を希望されるお客さまは
こちら
よりお問い合わせください)
お問い合わせを行う前に
「個人情報の取り扱いについて」を必ずお読みください。
「個人情報の取り扱いについて」に同意いただいた場合は「上記にご同意の上 確認画面へ進む」のボタンをクリックしてください。
個人情報の取り扱いについて
皆さまが送付された個人情報はアットホーム(株)のサーバを経由し、お問い合わせ先の不動産会社にメールまたはFAXにて転送されるためアットホーム(株)にも保管されます。アットホーム(株)で保管された個人情報の取り扱いについては、【こちら】をご覧ください。
また、本画面でご記入いただいた個人情報は、お問い合わせ先の不動産会社でも保管します。 お問い合わせ先の不動産会社が保管する個人情報の取り扱いについては、不動産会社に直接お問い合わせください。
群馬県知事免許(1)第7903号 |
|---|
- 交通:
- JR高崎線/高崎駅
- 群馬県高崎市寺尾町1501番地7
- TEL:
- 027-326-1800
- FAX:
- 027-386-6736
- 所属団体:
- (一社)群馬県宅地建物取引業協会会員(公社)首都圏不動産公正取引協議会加盟
取引態様:仲介  - 00276016
|
- スマートフォンで
この不動産会社を見る

|
- 提携サイト等より掲載されている物件情報につきましては、不動産会社詳細情報にリンクされていないものがあります。
- 物件に関するお問合せは、物件詳細ページの「情報提供会社」に表示されている不動産会社へ直接お願いいたします。
- 間取図は、現況を優先させていただきます。
- 映像は物件の一部を撮影したものです。物件の契約にあたっての最終判断はご自身の判断に基づいて行ってください。
- 仲介手数料について

アットホームは物件情報の適正化に努めております。
内容に誤りがある場合にはこちらへご連絡ください。