愛知県名古屋市中村区名駅3丁目(名古屋駅)の貸店舗:物件詳細
交通 所在地 |
駅徒歩 |
賃料 管理費等 |
敷金/保証金 礼金 |
使用部分面積 坪数/坪単価 |
物件種目 築年月 |
名古屋市東山線/名古屋
愛知県名古屋市中村区名駅3丁目
|
6分
|
115.9928万円
82,852円
|
なし / 8ヶ月
なし
|
124.49m²
37.65坪/3.0802万円
|
貸店舗・事務所
2025年12月(新築)
|
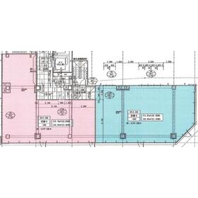
間取図
|
|
その他の画像
|
交通 | 名古屋市東山線 名古屋駅 徒歩6分 |
---|
その他の交通 | 名古屋市桜通線 国際センター駅 徒歩8分 東海道本線 名古屋駅 徒歩9分 |
所在地 |
愛知県名古屋市中村区名駅3丁目
|
物件種目 |
貸店舗・事務所 |
賃料 |
115.9928万円 |
管理費等 |
82,852円 |
敷金 / 保証金 |
なし / 8ヶ月 |
礼金 |
なし |
敷引 |
- |
坪単価 |
3.0802万円 |
保証金償却 |
解約時50% 償却消費税:契約時 |
権利金 |
- |
造作譲渡 |
- |
その他一時金 |
- |
維持費等 |
アリサポ費:770円/月 |
保険等 |
要 火災 |
使用部分面積 |
124.49m² |
坪数 |
37.65坪 |
築年月 |
2025年12月(新築)
|
階建 / 階 |
8階建 / 2階 |
駐車場 |
- |
バイク置き場 |
- |
駐輪場 |
- |
土地面積 |
- |
接道状況 |
-
|
用途地域 |
- |
間取り |
- |
建物構造 |
鉄骨造 |
建物名・部屋番号 |
ブルームーン名駅ビル 2-4 |
リフォーム履歴 |
- |
リノベーション履歴 |
- |
特記事項 |
土曜日利用可、土日・祝日利用可、飲食店可 |
備考 |
賃貸保証等:加入要(全保連)
管理形態/管理員の勤務形態:-/-
・坪単価 賃料:28,000円 共益費:2,000円
・坪数 37.66坪
・2025年12竣工予定
・電気水道基本料金、防災費、看板使用料、町費、電気保安料、アリサポ費(かけつけサービス)、ゴミ処理費等雑費有り
・初回看板作成費有り
※現在建築中につき、随時入居お申込み受付中!(先着順ではございません。)
|
エネルギー消費性能 |
- |
断熱性能 |
- |
目安光熱費 |
- |
バス・トイレ |
トイレ |
キッチン |
- |
設備・サービス |
- |
その他 |
エレベーター |
契約期間 |
2年 |
条件等 |
- |
引渡可能時期 |
相談 |
現況 |
未完成 |
更新料 |
なし |
物件番号 |
6987034847 |
情報公開日 |
2025年7月17日 |
次回更新予定日 |
2025年10月29日 |
ケータイ用バーコード |
- スマートフォンでこの物件を見る
- スマートフォンからもこの物件をご覧になれます。
|
※「-」と表示されている項目については、情報提供会社にご確認ください。
周辺施設 |
三菱UFJ銀行名古屋駅前支店 |
距離 |
365m |
周辺施設 |
ミッドランドスクエアシネマ |
距離 |
574m |
周辺施設 |
エムテック名駅パーキング |
距離 |
186m |
ここから簡単にお問い合わせをすることができます。
(SSLでの暗号化での送信を希望されるお客さまは
こちら
よりお問い合わせください)
お問い合わせを行う前に
「個人情報の取り扱いについて」を必ずお読みください。
「個人情報の取り扱いについて」に同意いただいた場合は「上記にご同意の上 確認画面へ進む」のボタンをクリックしてください。
個人情報の取り扱いについて
皆さまが送付された個人情報はアットホーム(株)のサーバを経由し、お問い合わせ先の不動産会社にメールまたはFAXにて転送されるためアットホーム(株)にも保管されます。アットホーム(株)で保管された個人情報の取り扱いについては、【こちら】をご覧ください。
また、本画面でご記入いただいた個人情報は、お問い合わせ先の不動産会社でも保管します。 お問い合わせ先の不動産会社が保管する個人情報の取り扱いについては、不動産会社に直接お問い合わせください。
愛知県知事免許(3)第22279号 |
---|
- 交通:
- 名古屋市桜通線/久屋大通駅 徒歩2分
- 愛知県名古屋市中区錦3丁目2-32 錦アクシスビル3F
- TEL:
- 052-961-2080
- FAX:
- 052-961-2014
- 所属団体:
- (公社)全日本不動産協会会員東海不動産公正取引協議会加盟
取引態様:代理  - 40004051
|
- スマートフォンで
この不動産会社を見る

|
- 提携サイト等より掲載されている物件情報につきましては、不動産会社詳細情報にリンクされていないものがあります。
- 物件に関するお問合せは、物件詳細ページの「情報提供会社」に表示されている不動産会社へ直接お願いいたします。
- 間取図は、現況を優先させていただきます。
- 映像は物件の一部を撮影したものです。物件の契約にあたっての最終判断はご自身の判断に基づいて行ってください。
- 仲介手数料について

アットホームは物件情報の適正化に努めております。
内容に誤りがある場合にはこちらへご連絡ください。