岐阜県岐阜市金宝町1丁目(名鉄岐阜駅)の貸店舗:物件詳細
交通 所在地 |
駅徒歩 |
賃料 管理費等 |
敷金/保証金 礼金 |
使用部分面積 坪数/坪単価 |
物件種目 築年月 |
|
名鉄各務原線/名鉄岐阜
岐阜県岐阜市金宝町1丁目
|
7分
|
78.606万円
-
|
4ヶ月 / なし
なし
|
262.50m²
79.40坪/0.99万円
|
貸店舗・事務所
1979年12月(築46年1ヶ月)
|
|
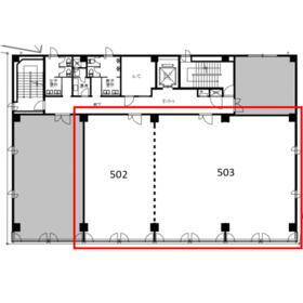
間取図
|
|
その他の画像
|
| 交通 | 名鉄各務原線 名鉄岐阜駅 徒歩7分 |
|---|
| その他の交通 | 東海道本線 岐阜駅 徒歩10分 名鉄名古屋本線 加納駅 徒歩19分 |
| 所在地 |
岐阜県岐阜市金宝町1丁目
|
| 物件種目 |
貸店舗・事務所 |
| 賃料 |
78.606万円 |
管理費等 |
- |
| 敷金 / 保証金 |
4ヶ月 / なし |
礼金 |
なし |
| 敷引 |
- |
坪単価 |
0.99万円 |
| 保証金償却 |
- |
権利金 |
- |
| 造作譲渡 |
- |
その他一時金 |
- |
| 維持費等 |
- |
保険等 |
- |
| 使用部分面積 |
262.50m² |
坪数 |
79.40坪 |
| 築年月 |
1979年12月(築46年1ヶ月)
|
階建 / 階 |
地上9階地下1階建 / 5階 |
| 駐車場 |
有 16,500円/月(空き1台) 機械式全20台、長5.05m×幅1.85m×高1.6m,重量1.6t(タイヤ外幅1.72m以下、最低地上高110mm以上),敷1 |
バイク置き場 |
- |
| 駐輪場 |
有 無料 |
土地面積 |
- |
| 接道状況 |
-
|
用途地域 |
- |
| 間取り |
- |
建物構造 |
SRC |
| アピールポイント |
2026年改修工事実施予定!綺麗になります!! 24時間利用可。 |
| 建物名・部屋番号 |
|
| リフォーム履歴 |
- |
| リノベーション履歴 |
- |
| 特記事項 |
24時間利用可、飲食店不可、フリーレント、角部屋、IT重説対応物件 |
| 備考 |
管理形態/管理員の勤務形態:-/-
フリーレント:6ヶ月(フリーレント付与の場合、2年以内の解約で違約金が発生します。)
IT重説対応物件
光熱費:ビル側より請求。耐震補強実施済。
専有部内蛍光灯の交換等は実費の負担要。
エントランス8~19時※時間外は通用口からセキュリティカードにて入館。
専有部防犯(全館警備)。
契約時セキュリティーカード2枚、シリンダーキー2本無償貸与
※追加発行は、セキュリティカード1枚2,200円、シリンダーキー1本1,650円。
館銘板作成費用テナント負担。
共用部の清掃代なし※専有部清掃は別途契約要。
ゴミ処理費用なし。
解約予告6ヶ月前。
事務所仕様にて引渡し。敷金は内容により4〜6ヶ月。
|
| エネルギー消費性能 |
- |
| 断熱性能 |
- |
| 目安光熱費 |
- |
| バス・トイレ |
共用部分に男女別トイレあり |
| キッチン |
- |
| 設備・サービス |
個別空調 |
| その他 |
エレベーター |
| 契約期間 |
2年 |
条件等 |
- |
| 引渡可能時期 |
即時 |
現況 |
空 |
| 更新料 |
なし |
物件番号 |
6987054329 |
| 情報公開日 |
2025年7月18日 |
次回更新予定日 |
2025年12月9日 |
| ケータイ用バーコード |
- スマートフォンでこの物件を見る
- スマートフォンからもこの物件をご覧になれます。
|
※「-」と表示されている項目については、情報提供会社にご確認ください。
| 周辺施設 |
セブンイレブン岐阜長良橋通店 |
| 距離 |
64m |
| 周辺施設 |
SUIT SELECT GIFU |
| 距離 |
291m |
ここから簡単にお問い合わせをすることができます。
(SSLでの暗号化での送信を希望されるお客さまは
こちら
よりお問い合わせください)
お問い合わせを行う前に
「個人情報の取り扱いについて」を必ずお読みください。
「個人情報の取り扱いについて」に同意いただいた場合は「上記にご同意の上 確認画面へ進む」のボタンをクリックしてください。
個人情報の取り扱いについて
皆さまが送付された個人情報はアットホーム(株)のサーバを経由し、お問い合わせ先の不動産会社にメールまたはFAXにて転送されるためアットホーム(株)にも保管されます。アットホーム(株)で保管された個人情報の取り扱いについては、【こちら】をご覧ください。
また、本画面でご記入いただいた個人情報は、お問い合わせ先の不動産会社でも保管します。 お問い合わせ先の不動産会社が保管する個人情報の取り扱いについては、不動産会社に直接お問い合わせください。
神奈川県知事免許(1)第32580号 |
|---|
- 交通:
- ブルーライン/吉野町駅 徒歩3分
- 神奈川県横浜市南区日枝町5丁目137-4
- TEL:
- 045-341-3337
- FAX:
- 045-341-3338
- 所属団体:
- (公社)神奈川県宅地建物取引業協会会員(公社)首都圏不動産公正取引協議会加盟
取引態様:仲介  - 00278575
|
- スマートフォンで
この不動産会社を見る

|
- 提携サイト等より掲載されている物件情報につきましては、不動産会社詳細情報にリンクされていないものがあります。
- 物件に関するお問合せは、物件詳細ページの「情報提供会社」に表示されている不動産会社へ直接お願いいたします。
- 間取図は、現況を優先させていただきます。
- 映像は物件の一部を撮影したものです。物件の契約にあたっての最終判断はご自身の判断に基づいて行ってください。
- 仲介手数料について

アットホームは物件情報の適正化に努めております。
内容に誤りがある場合にはこちらへご連絡ください。