大阪府吹田市垂水町3丁目(江坂駅)の貸店舗:物件詳細
交通 所在地 |
駅徒歩 |
賃料 管理費等 |
敷金/保証金 礼金 |
使用部分面積 坪数/坪単価 |
物件種目 築年月 |
地下鉄御堂筋線/江坂
大阪府吹田市垂水町3丁目
|
3分
|
25.41万円
60,060円
|
3ヶ月 / なし
3ヶ月
|
69.40m²
20.99坪/1.2104万円
|
貸店舗
1990年4月(築35年7ヶ月)
|
|
その他の画像
|
交通 | 地下鉄御堂筋線 江坂駅 徒歩3分 |
---|
その他の交通 | 阪急千里線 豊津駅 徒歩17分 JRおおさか東線 南吹田駅 徒歩27分 |
所在地 |
大阪府吹田市垂水町3丁目
|
物件種目 |
貸店舗 |
賃料 |
25.41万円 |
管理費等 |
60,060円 |
敷金 / 保証金 |
3ヶ月 / なし |
礼金 |
3ヶ月 |
敷引 |
- |
坪単価 |
1.2104万円 |
保証金償却 |
- |
権利金 |
- |
造作譲渡 |
造作譲渡無償 |
その他一時金 |
鍵交換代:33,000円、クリーニング代:66,000円 |
維持費等 |
ゴミ代:6,600円/月、看板代:11,000円/月、電気基本料:23,100円/月、水道基本料:3,245円/月 |
保険等 |
- |
クレジットカード決済 |
初期費用可 |
使用部分面積 |
69.40m² |
坪数 |
20.99坪 |
築年月 |
1990年4月(築35年7ヶ月)
|
階建 / 階 |
地上4階地下1階建 / 3階 |
駐車場 |
- |
バイク置き場 |
- |
駐輪場 |
- |
土地面積 |
- |
接道状況 |
-
|
用途地域 |
- |
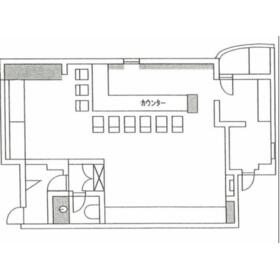
間取り |
- |
建物構造 |
RC |
建物名・部屋番号 |
|
リフォーム履歴 |
- |
リノベーション履歴 |
- |
特記事項 |
居抜き、24時間利用可、土曜日利用可、土日・祝日利用可、飲食店可、IT重説対応物件 |
備考 |
賃貸保証等:加入要(総賃料の100%)
管理形態/管理員の勤務形態:-/-
IT重説対応物件
|
エネルギー消費性能 |
- |
断熱性能 |
- |
目安光熱費 |
- |
バス・トイレ |
トイレ |
キッチン |
オープンキッチン |
設備・サービス |
空調機あり、換気口あり、厨房防水あり、排水設備あり 、防音処理あり
収納スペース、給湯、都市ガス、エアコン、暖房、冷房、インターネット対応、光ファイバー |
その他 |
エレベーター |
契約期間 |
2年 |
条件等 |
- |
引渡可能時期 |
即時 |
現況 |
空 |
適格請求書発行 |
可
|
更新料 |
- |
物件番号 |
6987091621 |
情報公開日 |
2025年10月22日 |
次回更新予定日 |
2025年11月5日 |
ケータイ用バーコード |
- スマートフォンでこの物件を見る
- スマートフォンからもこの物件をご覧になれます。
|
※「-」と表示されている項目については、情報提供会社にご確認ください。
周辺施設 |
セブンイレブン江坂公園前店 |
距離 |
24m |
周辺施設 |
特定医療法人ダイワ会大和病院 |
距離 |
516m |
周辺施設 |
京都中央信用金庫江坂支店 |
距離 |
157m |
周辺施設 |
メディアカフェポパイ江坂店 |
距離 |
508m |
周辺施設 |
キャットミュージックカレッジ専門学校 |
距離 |
189m |
ここから簡単にお問い合わせをすることができます。
(SSLでの暗号化での送信を希望されるお客さまは
こちら
よりお問い合わせください)
お問い合わせを行う前に
「個人情報の取り扱いについて」を必ずお読みください。
「個人情報の取り扱いについて」に同意いただいた場合は「上記にご同意の上 確認画面へ進む」のボタンをクリックしてください。
個人情報の取り扱いについて
皆さまが送付された個人情報はアットホーム(株)のサーバを経由し、お問い合わせ先の不動産会社にメールまたはFAXにて転送されるためアットホーム(株)にも保管されます。アットホーム(株)で保管された個人情報の取り扱いについては、【こちら】をご覧ください。
また、本画面でご記入いただいた個人情報は、お問い合わせ先の不動産会社でも保管します。 お問い合わせ先の不動産会社が保管する個人情報の取り扱いについては、不動産会社に直接お問い合わせください。
大阪府知事免許(1)第65088号 |
---|
- 交通:
- 地下鉄谷町線/東梅田駅 徒歩6分
- 大阪府大阪市北区兎我野町5-9 梅田UKビル8階
- TEL:
- 06-6585-0001
- FAX:
- 06-7730-9753
- 所属団体:
- (一社)大阪府宅地建物取引業協会会員(公社)近畿地区不動産公正取引協議会加盟
取引態様:仲介  - 50109846
|
- スマートフォンで
この不動産会社を見る

|
- 提携サイト等より掲載されている物件情報につきましては、不動産会社詳細情報にリンクされていないものがあります。
- 物件に関するお問合せは、物件詳細ページの「情報提供会社」に表示されている不動産会社へ直接お願いいたします。
- 間取図は、現況を優先させていただきます。
- 映像は物件の一部を撮影したものです。物件の契約にあたっての最終判断はご自身の判断に基づいて行ってください。
- 仲介手数料について

アットホームは物件情報の適正化に努めております。
内容に誤りがある場合にはこちらへご連絡ください。