東京都文京区本郷3丁目(御茶ノ水駅)の貸店舗:物件詳細
交通 所在地 |
駅徒歩 |
賃料 管理費等 |
敷金/保証金 礼金 |
使用部分面積 坪数/坪単価 |
物件種目 築年月 |
|
JR中央線/御茶ノ水
東京都文京区本郷3丁目
|
4分
|
24.06万円
31,383円
|
なし / 5ヶ月
なし
|
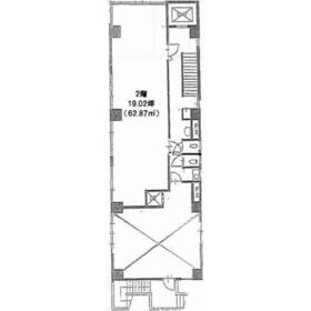
62.87m²
19.01坪/1.2652万円
|
貸店舗・事務所
1986年6月(築39年10ヶ月)
|
| 交通 | JR中央線 御茶ノ水駅 徒歩4分 |
|---|
| その他の交通 | 東京メトロ丸ノ内線 本郷三丁目駅 徒歩7分 東京メトロ千代田線 新御茶ノ水駅 徒歩8分 |
| 所在地 |
東京都文京区本郷3丁目
|
| 物件種目 |
貸店舗・事務所 |
| 賃料 |
24.06万円 |
管理費等 |
31,383円 |
| 敷金 / 保証金 |
なし / 5ヶ月 |
礼金 |
なし |
| 敷引 |
- |
坪単価 |
1.2652万円 |
| 保証金償却 |
解約時1ヶ月 |
権利金 |
- |
| 造作譲渡 |
- |
その他一時金 |
- |
| 維持費等 |
水道代:2,000円/月 |
保険等 |
要 |
| 使用部分面積 |
62.87m² |
坪数 |
19.01坪 |
| 築年月 |
1986年6月(築39年10ヶ月)
|
階建 / 階 |
8階建 / 2階 |
| 駐車場 |
- |
バイク置き場 |
- |
| 駐輪場 |
- |
土地面積 |
- |
| 接道状況 |
-
|
用途地域 |
- |
| 間取り |
- |
建物構造 |
SRC |
| アピールポイント |
ご希望物件のご提案から現地へのご案内、ご契約まで、業務に精通したスタッフがきめ細かく対応いたします!何なりとご相談ください! |
| 建物名・部屋番号 |
NCKビル 2F表 |
| リフォーム履歴 |
- |
| リノベーション履歴 |
- |
| 特記事項 |
土曜日利用可、飲食店不可、耐震構造(新耐震基準) |
| 備考 |
賃貸保証等:加入要(初回保証料:月額固定費の1ヶ月分(更新有))
管理形態/管理員の勤務形態:-/-
坪数:19.02坪
目安賃料坪単価:@11,500円(税抜)
目安共益費坪単価:@1,500円(税抜)
※使用時間:応相談(日・祝日の利用応相談)
※サービス店舗可(業種要相談)
※エアコン、照明、トイレ入替え済み
※保証会社(SFビルサポート)
※水回りの引込不可
|
| エネルギー消費性能 |
- |
| 断熱性能 |
- |
| 目安光熱費 |
- |
| バス・トイレ |
共用部分に男女別トイレあり |
| キッチン |
- |
| 設備・サービス |
空調機あり
個別空調、エアコン2台以上、給湯、エアコン、暖房、冷房、光ファイバー |
| その他 |
エレベーター |
| 契約期間 |
2年 |
条件等 |
定期借家 |
| 引渡可能時期 |
即時 |
現況 |
空 |
| 仲介手数料 |
不要 |
|
|
| 更新料 |
新賃料 1ヶ月 |
物件番号 |
6987103538 |
| 情報公開日 |
2026年2月13日 |
次回更新予定日 |
2026年3月17日 |
| ケータイ用バーコード |
- スマートフォンでこの物件を見る
- スマートフォンからもこの物件をご覧になれます。
|
※「-」と表示されている項目については、情報提供会社にご確認ください。
ここから簡単にお問い合わせをすることができます。
(SSLでの暗号化での送信を希望されるお客さまは
こちら
よりお問い合わせください)
お問い合わせを行う前に
「個人情報の取り扱いについて」を必ずお読みください。
「個人情報の取り扱いについて」に同意いただいた場合は「上記にご同意の上 確認画面へ進む」のボタンをクリックしてください。
個人情報の取り扱いについて
皆さまが送付された個人情報はアットホーム(株)のサーバを経由し、お問い合わせ先の不動産会社にメールまたはFAXにて転送されるためアットホーム(株)にも保管されます。アットホーム(株)で保管された個人情報の取り扱いについては、【こちら】をご覧ください。
また、本画面でご記入いただいた個人情報は、お問い合わせ先の不動産会社でも保管します。 お問い合わせ先の不動産会社が保管する個人情報の取り扱いについては、不動産会社に直接お問い合わせください。
東京都知事免許(1)第107657号 |
|---|
- 交通:
- 都営三田線/御成門駅 徒歩3分
- 東京都港区新橋5丁目35-6 大平ビル3F
- TEL:
- 03-5843-8823
- FAX:
- 03-5843-8824
- 所属団体:
- (一社)不動産協会会員(公社)全日本不動産協会会員(公社)首都圏不動産公正取引協議会加盟
取引態様:仲介  - 00272226
|
- スマートフォンで
この不動産会社を見る

|
- 提携サイト等より掲載されている物件情報につきましては、不動産会社詳細情報にリンクされていないものがあります。
- 物件に関するお問合せは、物件詳細ページの「情報提供会社」に表示されている不動産会社へ直接お願いいたします。
- 間取図は、現況を優先させていただきます。
- 映像は物件の一部を撮影したものです。物件の契約にあたっての最終判断はご自身の判断に基づいて行ってください。
- 仲介手数料について

アットホームは物件情報の適正化に努めております。
内容に誤りがある場合にはこちらへご連絡ください。