兵庫県神戸市中央区元町通1丁目(旧居留地・大丸前駅)の貸店舗:物件詳細
交通 所在地 |
駅徒歩 |
賃料 管理費等 |
敷金/保証金 礼金 |
使用部分面積 坪数/坪単価 |
物件種目 築年月 |
地下鉄海岸線/旧居留地・大丸前
兵庫県神戸市中央区元町通1丁目
|
1分
|
151.2885万円
-
|
12ヶ月 / なし
なし
|
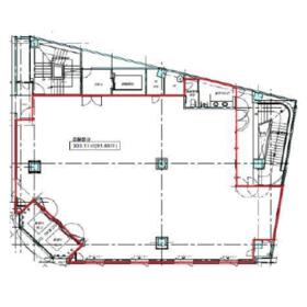
303.10m²
91.68坪/1.6501万円
|
貸店舗
2001年8月(築24年3ヶ月)
|
交通 | 地下鉄海岸線 旧居留地・大丸前駅 徒歩1分 |
---|
その他の交通 | 阪神本線 元町駅 徒歩2分 地下鉄西神・山手線 県庁前駅 徒歩6分 |
所在地 |
兵庫県神戸市中央区元町通1丁目
|
物件種目 |
貸店舗 |
賃料 |
151.2885万円 |
管理費等 |
- |
敷金 / 保証金 |
12ヶ月 / なし |
礼金 |
なし |
敷引 |
- |
坪単価 |
1.6501万円 |
保証金償却 |
- |
権利金 |
- |
造作譲渡 |
- |
その他一時金 |
- |
維持費等 |
- |
保険等 |
要 |
使用部分面積 |
303.10m² |
坪数 |
91.68坪 |
築年月 |
2001年8月(築24年3ヶ月)
|
階建 / 階 |
地上9階地下1階建 / 3階 |
駐車場 |
- |
バイク置き場 |
- |
駐輪場 |
- |
土地面積 |
- |
接道状況 |
-
|
用途地域 |
- |
間取り |
- |
建物構造 |
SRC |
アピールポイント |
大通り沿いで繁華街入り口のVEGAビル3階のご紹介です!!立地良し〇見た目良し〇目立つのでご案内のアナウンスも楽々です。他のお部屋もご案内可能!是非お問い合わせください!! |
建物名・部屋番号 |
VEGAビル 3階 |
リフォーム履歴 |
- |
リノベーション履歴 |
- |
特記事項 |
スケルトン、土曜日利用可、土日・祝日利用可、飲食店不可、1フロア1テナント、24時間セキュリティー、耐震構造(新耐震基準)、24時間換気システム、都道府県道沿いに面する |
備考 |
賃貸保証等:加入要(借主指定)
管理形態/管理員の勤務形態:-/-
|
エネルギー消費性能 |
- |
断熱性能 |
- |
目安光熱費 |
- |
バス・トイレ |
男女別トイレ、トイレ |
キッチン |
- |
設備・サービス |
看板取付スペースあり
個別空調、エアコン2台以上、防犯カメラ、ビルトインエアコン、エアコン、火災警報器(報知機)、インターネット対応、光ファイバー |
その他 |
施設内喫煙所、エレベーター2基以上、エレベーター |
契約期間 |
2年 |
条件等 |
定期借家 |
引渡可能時期 |
即時 |
現況 |
空 |
更新料 |
- |
物件番号 |
6987115437 |
情報公開日 |
2025年7月24日 |
次回更新予定日 |
2025年10月30日 |
ケータイ用バーコード |
- スマートフォンでこの物件を見る
- スマートフォンからもこの物件をご覧になれます。
|
※「-」と表示されている項目については、情報提供会社にご確認ください。
周辺施設 |
セブンイレブン神戸元町通1丁目店 |
距離 |
70m |
周辺施設 |
はなまるうどん元町1番街店 |
距離 |
53m |
周辺施設 |
ドトールコーヒーショップ元町鯉川筋店 |
距離 |
119m |
周辺施設 |
医療法人社団純心会パルモア病院 |
距離 |
503m |
周辺施設 |
三菱UFJ信託銀行神戸支店 |
距離 |
92m |
ここから簡単にお問い合わせをすることができます。
(SSLでの暗号化での送信を希望されるお客さまは
こちら
よりお問い合わせください)
お問い合わせを行う前に
「個人情報の取り扱いについて」を必ずお読みください。
「個人情報の取り扱いについて」に同意いただいた場合は「上記にご同意の上 確認画面へ進む」のボタンをクリックしてください。
個人情報の取り扱いについて
皆さまが送付された個人情報はアットホーム(株)のサーバを経由し、お問い合わせ先の不動産会社にメールまたはFAXにて転送されるためアットホーム(株)にも保管されます。アットホーム(株)で保管された個人情報の取り扱いについては、【こちら】をご覧ください。
また、本画面でご記入いただいた個人情報は、お問い合わせ先の不動産会社でも保管します。 お問い合わせ先の不動産会社が保管する個人情報の取り扱いについては、不動産会社に直接お問い合わせください。
国土交通大臣免許(1)第10868号 |
---|
- 交通:
- 地下鉄御堂筋線/本町駅 徒歩3分
- 大阪府大阪市中央区久太郎町2丁目5-31 関電不動産船場ビル12階
- TEL:
- 06-4256-1755
- FAX:
- 06-4256-0761
- 所属団体:
- (一社)大阪府宅地建物取引業協会会員(公社)近畿地区不動産公正取引協議会加盟
取引態様:仲介  - 50110973
|
- スマートフォンで
この不動産会社を見る

|
- 提携サイト等より掲載されている物件情報につきましては、不動産会社詳細情報にリンクされていないものがあります。
- 物件に関するお問合せは、物件詳細ページの「情報提供会社」に表示されている不動産会社へ直接お願いいたします。
- 間取図は、現況を優先させていただきます。
- 映像は物件の一部を撮影したものです。物件の契約にあたっての最終判断はご自身の判断に基づいて行ってください。
- 仲介手数料について

アットホームは物件情報の適正化に努めております。
内容に誤りがある場合にはこちらへご連絡ください。