埼玉県久喜市久喜中央1丁目(久喜駅)の貸店舗:物件詳細
交通 所在地 |
駅徒歩 |
賃料 管理費等 |
敷金/保証金 礼金 |
使用部分面積 坪数/坪単価 |
物件種目 築年月 |
|
JR東北本線/久喜
埼玉県久喜市久喜中央1丁目
|
3分
|
36.89万円
-
|
6ヶ月 / なし
1.1ヶ月
|
92.40m²
27.95坪/1.3199万円
|
貸店舗
1982年2月(築44年3ヶ月)
|
|
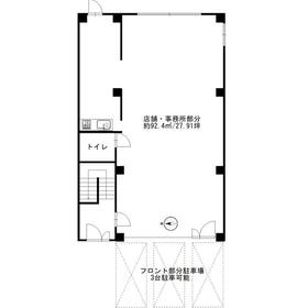
間取図
|
外観
|
<
その他の画像
>
|
| 交通 | JR東北本線 久喜駅 徒歩3分 |
|---|
| その他の交通 | 東武伊勢崎線 久喜駅 徒歩3分 |
| 所在地 |
埼玉県久喜市久喜中央1丁目
|
| 物件種目 |
貸店舗 |
| 賃料 |
36.89万円 |
管理費等 |
- |
| 敷金 / 保証金 |
6ヶ月 / なし |
礼金 |
1.1ヶ月 |
| 敷引 |
- |
坪単価 |
1.3199万円 |
| 保証金償却 |
- |
権利金 |
- |
| 造作譲渡 |
- |
その他一時金 |
- |
| 維持費等 |
- |
保険等 |
要 3年 |
| 使用部分面積 |
92.40m² |
坪数 |
27.95坪 |
| 築年月 |
1982年2月(築44年3ヶ月)
|
階建 / 階 |
4階建 / 1階 |
| 駐車場 |
有 無料(空き3台) |
バイク置き場 |
無 |
| 駐輪場 |
無 |
土地面積 |
- |
| 接道状況 |
南西
|
用途地域 |
商業地域 |
| 間取り |
- |
建物構造 |
RC |
| アピールポイント |
人気の久喜西口の事務所・店舗。駐車場3台完備。 |
| 建物名・部屋番号 |
ミスズ第一ビル |
| リフォーム履歴 |
- |
| リノベーション履歴 |
- |
| 特記事項 |
駐車場3台分以上 |
| 備考 |
賃貸保証等:加入要(初回保証料賃料等の1.1ヶ月分・年次保証料年14,000円)
管理形態/管理員の勤務形態:-/-
主要採光面:南西向き
|
| エネルギー消費性能 |
- |
| 断熱性能 |
- |
| 目安光熱費 |
- |
| バス・トイレ |
トイレ |
| キッチン |
- |
| 設備・サービス |
エアコン2台以上 |
| その他 |
- |
| 契約期間 |
3年 |
条件等 |
- |
| 引渡可能時期 |
指定有り2026年5月15日 |
現況 |
居住中 |
| 仲介手数料 |
1.1ヶ月 |
適格請求書発行 |
不可
|
| 更新料 |
新賃料 1.1ヶ月 |
物件番号 |
6987133404 |
| 情報公開日 |
2026年4月4日 |
次回更新予定日 |
2026年5月9日 |
| ケータイ用バーコード |
- スマートフォンでこの物件を見る
- スマートフォンからもこの物件をご覧になれます。
|
※「-」と表示されている項目については、情報提供会社にご確認ください。
| 周辺施設 |
クッキープラザ |
| 距離 |
93m |
写真を見る |
| 周辺施設 |
イトーヨーカドー久喜店 |
| 距離 |
496m |
写真を見る |
| 周辺施設 |
デイリーヤマザキ久喜駅西口店 |
| 距離 |
104m |
写真を見る |
| 周辺施設 |
セブンイレブン久喜駅西口店 |
| 距離 |
236m |
写真を見る |
ここから簡単にお問い合わせをすることができます。
(SSLでの暗号化での送信を希望されるお客さまは
こちら
よりお問い合わせください)
お問い合わせを行う前に
「個人情報の取り扱いについて」を必ずお読みください。
「個人情報の取り扱いについて」に同意いただいた場合は「上記にご同意の上 確認画面へ進む」のボタンをクリックしてください。
個人情報の取り扱いについて
皆さまが送付された個人情報はアットホーム(株)のサーバを経由し、お問い合わせ先の不動産会社にメールまたはFAXにて転送されるためアットホーム(株)にも保管されます。アットホーム(株)で保管された個人情報の取り扱いについては、【こちら】をご覧ください。
また、本画面でご記入いただいた個人情報は、お問い合わせ先の不動産会社でも保管します。 お問い合わせ先の不動産会社が保管する個人情報の取り扱いについては、不動産会社に直接お問い合わせください。
埼玉県知事免許(14)第6191号 |
|---|
- 交通:
- JR東北本線/久喜駅 徒歩2分
- 埼玉県久喜市久喜中央1丁目2-31 長島ビル1階
- TEL:
- 0480-23-2222
- FAX:
- 0480-23-1010
- 所属団体:
- (公社)埼玉県宅地建物取引業協会会員(公社)首都圏不動産公正取引協議会加盟
取引態様:仲介  - 00111209
|
- スマートフォンで
この不動産会社を見る

|
- 提携サイト等より掲載されている物件情報につきましては、不動産会社詳細情報にリンクされていないものがあります。
- 物件に関するお問合せは、物件詳細ページの「情報提供会社」に表示されている不動産会社へ直接お願いいたします。
- 間取図は、現況を優先させていただきます。
- 映像は物件の一部を撮影したものです。物件の契約にあたっての最終判断はご自身の判断に基づいて行ってください。
- 仲介手数料について

アットホームは物件情報の適正化に努めております。
内容に誤りがある場合にはこちらへご連絡ください。