大阪府大阪市北区曾根崎新地2丁目(西梅田駅)の貸店舗:物件詳細
交通 所在地 |
駅徒歩 |
賃料 管理費等 |
敷金/保証金 礼金 |
使用部分面積 坪数/坪単価 |
物件種目 築年月 |
|
地下鉄四つ橋線/西梅田
大阪府大阪市北区曾根崎新地2丁目
|
4分
|
54.9945万円
189,981円
|
なし / 306.7875万円
なし
|
150.24m²
45.44坪/1.2101万円
|
貸店舗・事務所
1998年2月(築27年11ヶ月)
|
|
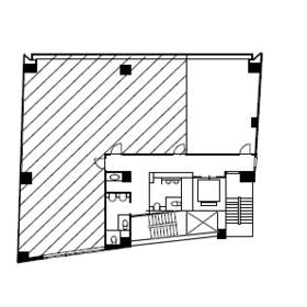
間取図
|
外観
|
<
その他の画像
>
|
| 交通 | 地下鉄四つ橋線 西梅田駅 徒歩4分 |
|---|
| その他の交通 | JR東西線 北新地駅 徒歩5分 京阪中之島線 渡辺橋駅 徒歩6分 |
| 所在地 |
大阪府大阪市北区曾根崎新地2丁目
|
| 物件種目 |
貸店舗・事務所 |
| 賃料 |
54.9945万円 |
管理費等 |
189,981円 |
| 敷金 / 保証金 |
なし / 306.7875万円 |
礼金 |
なし |
| 敷引 |
- |
坪単価 |
1.2101万円 |
| 保証金償却 |
- |
権利金 |
- |
| 造作譲渡 |
- |
その他一時金 |
- |
| 維持費等 |
- |
保険等 |
要 |
| 使用部分面積 |
150.24m² |
坪数 |
45.44坪 |
| 築年月 |
1998年2月(築27年11ヶ月)
|
階建 / 階 |
10階建 / 8階 |
| 駐車場 |
- |
バイク置き場 |
- |
| 駐輪場 |
- |
土地面積 |
- |
| 接道状況 |
-
|
用途地域 |
- |
| 間取り |
- |
建物構造 |
鉄骨造 |
| アピールポイント |
新耐震基準をクリアした外装もガラスカーテンウォールのハイグレード物件!毎日、定期的に常駐管理人が巡回し、管理も行き届いており、快適にお仕事頂けること間違いありません。ぜひお問い合わせください! |
| 建物名・部屋番号 |
MF桜橋ビル 8階 |
| リフォーム履歴 |
- |
| リノベーション履歴 |
- |
| 特記事項 |
24時間利用可、土曜日利用可、土日・祝日利用可、有人警備、飲食店不可、1フロア1テナント、24時間セキュリティー、耐震構造(新耐震基準)、国道沿いに面する |
| 備考 |
賃貸保証等:加入要(貸主指定:賃共の1ヶ月分/2年目以降1年毎:月額賃共の10%)
管理形態/管理員の勤務形態:-/-
■保証金半額プラン適用
■ようやく空きが出ましたば人気ビルば
■大手・上場企業が多いビジネスの中心地
■ガラスカーテンウォールのハイグレードビル
|
| エネルギー消費性能 |
- |
| 断熱性能 |
- |
| 目安光熱費 |
- |
| バス・トイレ |
共用部分に男女別トイレあり |
| キッチン |
- |
| 設備・サービス |
個別空調、無線LAN、オートロック、防犯カメラ、給湯、都市ガス、ビルトインエアコン、エアコン、暖房、冷房、火災警報器(報知機)、インターネット対応、光ファイバー、三層複層ガラス |
| その他 |
エレベーター |
| 契約期間 |
2年 |
条件等 |
定期借家 |
| 引渡可能時期 |
相談 |
現況 |
空 |
| 更新料 |
- |
物件番号 |
6987159525 |
| 情報公開日 |
2025年9月5日 |
次回更新予定日 |
2025年12月17日 |
| ケータイ用バーコード |
- スマートフォンでこの物件を見る
- スマートフォンからもこの物件をご覧になれます。
|
※「-」と表示されている項目については、情報提供会社にご確認ください。
| 周辺施設 |
タリーズコーヒーJRWD堂島タワー店 |
| 距離 |
275m |
| 周辺施設 |
医療法人伯鳳会大阪中央病院 |
| 距離 |
330m |
ここから簡単にお問い合わせをすることができます。
(SSLでの暗号化での送信を希望されるお客さまは
こちら
よりお問い合わせください)
お問い合わせを行う前に
「個人情報の取り扱いについて」を必ずお読みください。
「個人情報の取り扱いについて」に同意いただいた場合は「上記にご同意の上 確認画面へ進む」のボタンをクリックしてください。
個人情報の取り扱いについて
皆さまが送付された個人情報はアットホーム(株)のサーバを経由し、お問い合わせ先の不動産会社にメールまたはFAXにて転送されるためアットホーム(株)にも保管されます。アットホーム(株)で保管された個人情報の取り扱いについては、【こちら】をご覧ください。
また、本画面でご記入いただいた個人情報は、お問い合わせ先の不動産会社でも保管します。 お問い合わせ先の不動産会社が保管する個人情報の取り扱いについては、不動産会社に直接お問い合わせください。
国土交通大臣免許(1)第10868号 |
|---|
- 交通:
- 地下鉄御堂筋線/本町駅 徒歩3分
- 大阪府大阪市中央区久太郎町2丁目5-31 関電不動産船場ビル12階
- TEL:
- 06-4256-1755
- FAX:
- 06-4256-0761
- 所属団体:
- (一社)大阪府宅地建物取引業協会会員(公社)近畿地区不動産公正取引協議会加盟
取引態様:仲介  - 50110973
|
- スマートフォンで
この不動産会社を見る

|
- 提携サイト等より掲載されている物件情報につきましては、不動産会社詳細情報にリンクされていないものがあります。
- 物件に関するお問合せは、物件詳細ページの「情報提供会社」に表示されている不動産会社へ直接お願いいたします。
- 間取図は、現況を優先させていただきます。
- 映像は物件の一部を撮影したものです。物件の契約にあたっての最終判断はご自身の判断に基づいて行ってください。
- 仲介手数料について

アットホームは物件情報の適正化に努めております。
内容に誤りがある場合にはこちらへご連絡ください。