東京都中央区銀座1丁目(銀座一丁目駅)の貸店舗:物件詳細
交通 所在地 |
駅徒歩 |
賃料 管理費等 |
敷金/保証金 礼金 |
使用部分面積 坪数/坪単価 |
物件種目 築年月 |
|
東京メトロ有楽町線/銀座一丁目
東京都中央区銀座1丁目
|
2分
|
63.549万円
-
|
なし / 10ヶ月
なし
|
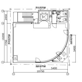
86.82m²
26.26坪/2.4198万円
|
貸店舗・事務所
1988年10月(築37年5ヶ月)
|
|
間取図
|
|
<
その他の画像
>
|
| 交通 | 東京メトロ有楽町線 銀座一丁目駅 徒歩2分 |
|---|
| その他の交通 | 東京メトロ銀座線 京橋駅 徒歩3分 東京メトロ銀座線 銀座駅 徒歩4分 |
| 所在地 |
東京都中央区銀座1丁目
|
| 物件種目 |
貸店舗・事務所 |
| 賃料 |
63.549万円 |
管理費等 |
- |
| 敷金 / 保証金 |
なし / 10ヶ月 |
礼金 |
なし |
| 敷引 |
- |
坪単価 |
2.4198万円 |
| 保証金償却 |
解約時1ヶ月 |
権利金 |
- |
| 造作譲渡 |
- |
その他一時金 |
- |
| 維持費等 |
- |
保険等 |
- |
| 使用部分面積 |
86.82m² |
坪数 |
26.26坪 |
| 築年月 |
1988年10月(築37年5ヶ月)
|
階建 / 階 |
地上9階地下1階建 / 4階 |
| 駐車場 |
- |
バイク置き場 |
- |
| 駐輪場 |
- |
土地面積 |
- |
| 接道状況 |
-
|
用途地域 |
- |
| 間取り |
- |
建物構造 |
SRC |
| 建物名・部屋番号 |
KHビル 4階 |
| リフォーム履歴 |
■水回り:2023年10月 トイレ、洗面所、給湯器 ※実施年月は最も古い履歴を表示 |
| リノベーション履歴 |
- |
| 特記事項 |
24時間利用可、土日・祝日利用可、OAフロア、1フロア1テナント、角部屋、24時間セキュリティー、耐震構造(新耐震基準) |
| 備考 |
賃貸保証等:加入要(初回保証委託料)
管理形態/管理員の勤務形態:-/-
多路線利用可能好立地!★男女別トイレ★水回り設備全て新規入替え済み!クリニック等ご相談ください!
|
| エネルギー消費性能 |
- |
| 断熱性能 |
- |
| 目安光熱費 |
- |
| バス・トイレ |
専有部分に男女別トイレあり |
| キッチン |
- |
| 設備・サービス |
エアコン2台以上、給湯、ビルトインエアコン |
| その他 |
- |
| 契約期間 |
3年 |
条件等 |
定期借家 |
| 引渡可能時期 |
即時 |
現況 |
空 |
| 更新料 |
- |
物件番号 |
6987194992 |
| 情報公開日 |
2026年1月7日 |
次回更新予定日 |
2026年2月6日 |
| ケータイ用バーコード |
- スマートフォンでこの物件を見る
- スマートフォンからもこの物件をご覧になれます。
|
※「-」と表示されている項目については、情報提供会社にご確認ください。
ここから簡単にお問い合わせをすることができます。
(SSLでの暗号化での送信を希望されるお客さまは
こちら
よりお問い合わせください)
お問い合わせを行う前に
「個人情報の取り扱いについて」を必ずお読みください。
「個人情報の取り扱いについて」に同意いただいた場合は「上記にご同意の上 確認画面へ進む」のボタンをクリックしてください。
個人情報の取り扱いについて
皆さまが送付された個人情報はアットホーム(株)のサーバを経由し、お問い合わせ先の不動産会社にメールまたはFAXにて転送されるためアットホーム(株)にも保管されます。アットホーム(株)で保管された個人情報の取り扱いについては、【こちら】をご覧ください。
また、本画面でご記入いただいた個人情報は、お問い合わせ先の不動産会社でも保管します。 お問い合わせ先の不動産会社が保管する個人情報の取り扱いについては、不動産会社に直接お問い合わせください。
東京都知事免許(16)第6616号 |
|---|
- 交通:
- 東京メトロ銀座線/京橋駅 徒歩2分
- 東京都中央区銀座1丁目8-1 銀座池田園ビル6F
- TEL:
- 03-3562-0701
- FAX:
- 03-3562-0709
- 所属団体:
- (公社)東京都宅地建物取引業協会会員(公社)首都圏不動産公正取引協議会加盟
取引態様:仲介  - 00120520
|
- スマートフォンで
この不動産会社を見る

|
- 提携サイト等より掲載されている物件情報につきましては、不動産会社詳細情報にリンクされていないものがあります。
- 物件に関するお問合せは、物件詳細ページの「情報提供会社」に表示されている不動産会社へ直接お願いいたします。
- 間取図は、現況を優先させていただきます。
- 映像は物件の一部を撮影したものです。物件の契約にあたっての最終判断はご自身の判断に基づいて行ってください。
- 仲介手数料について

アットホームは物件情報の適正化に努めております。
内容に誤りがある場合にはこちらへご連絡ください。