東京都武蔵野市吉祥寺本町2丁目(吉祥寺駅)の貸店舗:物件詳細
交通 所在地 |
駅徒歩 |
賃料 管理費等 |
敷金/保証金 礼金 |
使用部分面積 坪数/坪単価 |
物件種目 築年月 |
JR中央線/吉祥寺
東京都武蔵野市吉祥寺本町2丁目
|
5分
|
46.2万円
33,000円
|
6ヶ月 / なし
1ヶ月
|
67.98m²
20.56坪/2.2467万円
|
貸店舗・事務所
1989年3月(築36年8ヶ月)
|
交通 | JR中央線 吉祥寺駅 徒歩5分 |
---|
その他の交通 | JR総武線 吉祥寺駅 徒歩5分 京王井の頭線 吉祥寺駅 徒歩5分 |
所在地 |
東京都武蔵野市吉祥寺本町2丁目
|
物件種目 |
貸店舗・事務所 |
賃料 |
46.2万円 |
管理費等 |
33,000円 |
敷金 / 保証金 |
6ヶ月 / なし |
礼金 |
1ヶ月 |
敷引 |
- |
坪単価 |
2.2467万円 |
保証金償却 |
解約時2ヶ月 |
権利金 |
- |
造作譲渡 |
- |
その他一時金 |
- |
維持費等 |
- |
保険等 |
要 |
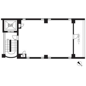
使用部分面積 |
67.98m² |
坪数 |
20.56坪 |
築年月 |
1989年3月(築36年8ヶ月)
|
階建 / 階 |
地上5階地下1階建 / 3階 |
駐車場 |
- |
バイク置き場 |
- |
駐輪場 |
- |
土地面積 |
- |
接道状況 |
-
|
用途地域 |
- |
間取り |
- |
建物構造 |
RC |
アピールポイント |
・JR中央線「吉祥寺」駅北口より徒歩約5分の好立地で、来客の多い業種にも最適
・カフェや雑貨店、セレクトショップが立ち並ぶ人気エリアで、トレンド感ある周辺環境
・清掃が行き届いたエントランス・共用部で、来訪者に好印象を与える管理体制
・人通りの多いエリアに位置し、視認性も良好なため、飲食・物販店舗として集客力◎ |
建物名・部屋番号 |
フォーラム2ビル 3F |
リフォーム履歴 |
- |
リノベーション履歴 |
- |
特記事項 |
スケルトン、飲食店可 |
備考 |
賃貸保証等:加入要(ジェイリース:初回100%年10%)
管理形態/管理員の勤務形態:-/-
<現在入居中テナント>
4-5階 ダイニングバー
2階 美容室
1階 定食屋さん
B1階 和食(魚)料理店
※キュービクル
※解約時現状回復義務有り
※スケルトン引渡し
※ゴミ処理指定業者有り(別途ゴミ処理代負担)
|
エネルギー消費性能 |
- |
断熱性能 |
- |
目安光熱費 |
- |
バス・トイレ |
- |
キッチン |
- |
設備・サービス |
- |
その他 |
エレベーター |
契約期間 |
3年 |
条件等 |
- |
引渡可能時期 |
即時 |
現況 |
空 |
更新料 |
新賃料 1ヶ月 |
物件番号 |
6987198517 |
情報公開日 |
2025年8月1日 |
次回更新予定日 |
2025年11月3日 |
ケータイ用バーコード |
- スマートフォンでこの物件を見る
- スマートフォンからもこの物件をご覧になれます。
|
※「-」と表示されている項目については、情報提供会社にご確認ください。
周辺施設 |
セブンイレブン吉祥寺大正通り店 |
距離 |
39m |
写真を見る |
周辺施設 |
ファミリーマート吉祥寺公園通り店 |
距離 |
100m |
周辺施設 |
スターバックスコーヒー吉祥寺東急店 |
距離 |
140m |
周辺施設 |
武蔵野消防署吉祥寺出張所 |
距離 |
290m |
ここから簡単にお問い合わせをすることができます。
(SSLでの暗号化での送信を希望されるお客さまは
こちら
よりお問い合わせください)
お問い合わせを行う前に
「個人情報の取り扱いについて」を必ずお読みください。
「個人情報の取り扱いについて」に同意いただいた場合は「上記にご同意の上 確認画面へ進む」のボタンをクリックしてください。
個人情報の取り扱いについて
皆さまが送付された個人情報はアットホーム(株)のサーバを経由し、お問い合わせ先の不動産会社にメールまたはFAXにて転送されるためアットホーム(株)にも保管されます。アットホーム(株)で保管された個人情報の取り扱いについては、【こちら】をご覧ください。
また、本画面でご記入いただいた個人情報は、お問い合わせ先の不動産会社でも保管します。 お問い合わせ先の不動産会社が保管する個人情報の取り扱いについては、不動産会社に直接お問い合わせください。
東京都知事免許(8)第59768号 |
---|
- 交通:
- 東京メトロ南北線/白金台駅 徒歩7分
- 東京都港区白金台5丁目5-16-102
- TEL:
- 03-5447-2701
- FAX:
- 03-3280-6203
- 所属団体:
- (公社)東京都宅地建物取引業協会会員(公社)首都圏不動産公正取引協議会加盟
取引態様:仲介  - 00611705
|
- スマートフォンで
この不動産会社を見る

|
- 提携サイト等より掲載されている物件情報につきましては、不動産会社詳細情報にリンクされていないものがあります。
- 物件に関するお問合せは、物件詳細ページの「情報提供会社」に表示されている不動産会社へ直接お願いいたします。
- 間取図は、現況を優先させていただきます。
- 映像は物件の一部を撮影したものです。物件の契約にあたっての最終判断はご自身の判断に基づいて行ってください。
- 仲介手数料について

アットホームは物件情報の適正化に努めております。
内容に誤りがある場合にはこちらへご連絡ください。