神奈川県横浜市都筑区見花山(都筑ふれあいの丘駅)の貸店舗:物件詳細
交通 所在地 |
駅徒歩 |
賃料 管理費等 |
敷金/保証金 礼金 |
使用部分面積 坪数/坪単価 |
物件種目 築年月 |
|
グリーンライン/都筑ふれあいの丘
神奈川県横浜市都筑区見花山
|
15分
|
143万円
-
|
なし / 10ヶ月
1ヶ月
|
373.71m²
113.04坪/1.265万円
|
貸店舗・事務所
1988年3月(築38年)
|
|
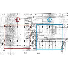
間取図
1階 平面図(赤)・駐車場(青)
|
外観
|
<
その他の画像
>
|
| 交通 | グリーンライン 都筑ふれあいの丘駅 徒歩15分 |
|---|
| その他の交通 | 東急田園都市線 市が尾駅 徒歩25分 グリーンライン 川和町駅 徒歩23分 |
| 所在地 |
神奈川県横浜市都筑区見花山
|
| 物件種目 |
貸店舗・事務所 |
| 賃料 |
143万円 |
管理費等 |
- |
| 敷金 / 保証金 |
なし / 10ヶ月 |
礼金 |
1ヶ月 |
| 敷引 |
- |
坪単価 |
1.265万円 |
| 保証金償却 |
- |
権利金 |
- |
| 造作譲渡 |
- |
その他一時金 |
- |
| 維持費等 |
- |
保険等 |
要 |
| 使用部分面積 |
373.71m² |
坪数 |
113.04坪 |
| 築年月 |
1988年3月(築38年)
|
階建 / 階 |
7階建 / 1階 |
| 駐車場 |
- |
バイク置き場 |
- |
| 駐輪場 |
- |
土地面積 |
- |
| 接道状況 |
-
|
用途地域 |
準住居 |
| 間取り |
- |
建物構造 |
RC |
| アピールポイント |
駐輪場天井高:2,023mm、駐輪場間口:5,460mm |
| 建物名・部屋番号 |
|
| リフォーム履歴 |
- |
| リノベーション履歴 |
- |
| 特記事項 |
スケルトン、24時間利用可、土日・祝日利用可、1フロア1テナント、駐車場3台分以上 |
| 備考 |
賃貸保証等:加入要(初回保証委託料:賃料等100%、年間保証委託料:賃料等10%(最低保証料:2万円))
管理形態/管理員の勤務形態:-/-
駐輪場:料金 月額250,800円(税込)/14台、看板料:月額66,000円(税込)スケルトン引き渡し、天井高:2,500mm、赤枠:店舗区画・青枠:駐輪場区画、引き渡し時期:2026年6月以降
|
| エネルギー消費性能 |
- |
| 断熱性能 |
- |
| 目安光熱費 |
- |
| バス・トイレ |
- |
| キッチン |
- |
| 設備・サービス |
- |
| その他 |
- |
| 契約期間 |
15年 |
条件等 |
定期借家 |
| 引渡可能時期 |
相談 |
現況 |
使用中 |
| 仲介手数料 |
1ヶ月 |
|
|
| 更新料 |
- |
物件番号 |
6987240174 |
| 情報公開日 |
2025年8月19日 |
次回更新予定日 |
2026年2月16日 |
| ケータイ用バーコード |
- スマートフォンでこの物件を見る
- スマートフォンからもこの物件をご覧になれます。
|
※「-」と表示されている項目については、情報提供会社にご確認ください。
| 周辺施設 |
都筑ふれあいの丘郵便局 |
| 距離 |
1166m |
ここから簡単にお問い合わせをすることができます。
(SSLでの暗号化での送信を希望されるお客さまは
こちら
よりお問い合わせください)
お問い合わせを行う前に
「個人情報の取り扱いについて」を必ずお読みください。
「個人情報の取り扱いについて」に同意いただいた場合は「上記にご同意の上 確認画面へ進む」のボタンをクリックしてください。
個人情報の取り扱いについて
皆さまが送付された個人情報はアットホーム(株)のサーバを経由し、お問い合わせ先の不動産会社にメールまたはFAXにて転送されるためアットホーム(株)にも保管されます。アットホーム(株)で保管された個人情報の取り扱いについては、【こちら】をご覧ください。
また、本画面でご記入いただいた個人情報は、お問い合わせ先の不動産会社でも保管します。 お問い合わせ先の不動産会社が保管する個人情報の取り扱いについては、不動産会社に直接お問い合わせください。
(株)エイブル 東日本テナント営業部国土交通大臣免許(7)第5338号 |
|---|
- 交通:
- 東京メトロ銀座線/赤坂見附駅 徒歩2分
- 東京都港区元赤坂1丁目5-5 元赤坂SFビル3階
- TEL:
- 03-5414-0650
- FAX:
- 03-5414-0659
- 所属団体:
- (一社)不動産流通経営協会会員(公社)首都圏不動産公正取引協議会加盟
取引態様:仲介 |
- 提携サイト等より掲載されている物件情報につきましては、不動産会社詳細情報にリンクされていないものがあります。
- 物件に関するお問合せは、物件詳細ページの「情報提供会社」に表示されている不動産会社へ直接お願いいたします。
- 間取図は、現況を優先させていただきます。
- 映像は物件の一部を撮影したものです。物件の契約にあたっての最終判断はご自身の判断に基づいて行ってください。
- 仲介手数料について

アットホームは物件情報の適正化に努めております。
内容に誤りがある場合にはこちらへご連絡ください。