愛知県名古屋市中区栄1丁目(伏見駅)の貸店舗:物件詳細
交通 所在地 |
駅徒歩 |
賃料 管理費等 |
敷金/保証金 礼金 |
使用部分面積 坪数/坪単価 |
物件種目 築年月 |
|
名古屋市鶴舞線/伏見
愛知県名古屋市中区栄1丁目
|
11分
|
33.6996万円
-
|
3ヶ月 / なし
なし
|
84.42m²
25.53坪/1.3197万円
|
貸店舗・事務所
1974年10月(築51年3ヶ月)
|
|
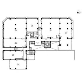
間取図
|
|
<
その他の画像
>
|
| 交通 | 名古屋市鶴舞線 伏見駅 徒歩11分 |
|---|
| その他の交通 | 名古屋市鶴舞線 大須観音駅 徒歩12分 名古屋市東山線 伏見駅 徒歩12分 |
| 所在地 |
愛知県名古屋市中区栄1丁目
|
| 物件種目 |
貸店舗・事務所 |
| 賃料 |
33.6996万円 |
管理費等 |
- |
| 敷金 / 保証金 |
3ヶ月 / なし |
礼金 |
なし |
| 敷引 |
- |
坪単価 |
1.3197万円 |
| 保証金償却 |
- |
権利金 |
- |
| 造作譲渡 |
- |
その他一時金 |
- |
| 維持費等 |
- |
保険等 |
要 1年 借家人賠償責任保険付火災保険 |
| 使用部分面積 |
84.42m² |
坪数 |
25.53坪 |
| 築年月 |
1974年10月(築51年3ヶ月)
|
階建 / 階 |
14階建 / 2階 |
| 駐車場 |
無 |
バイク置き場 |
無 |
| 駐輪場 |
有 300円/月 |
土地面積 |
- |
| 接道状況 |
-
|
用途地域 |
商業地域 |
| 間取り |
- |
建物構造 |
SRC |
| アピールポイント |
【融資・物件・準備までワンストップ対応!】
新規出店や移転をご検討の方へ!
当社は、事務所・飲食店・美容室・物販店・福祉施設はもちろん、倉庫や工場など、幅広い事業用不動産の仲介実績があります。
また、金融機関出身のファイナンシャルプランナー(FP)が複数名在籍し、金融機関時代は事業性融資をメインに担当。
資金計画や融資のご相談、金融機関との対応もすべてお任せください!
物件探しだけでなく、BGM・インターネット・電気・ガスなどのライフライン手配、店舗に強いリフォーム業者のご紹介など、出店や事業開始に必要な準備をワンストップでサポートします。
「何から始めればいいかわからない」そんな方も安心してお気軽にご相談ください。 |
| 建物名・部屋番号 |
ハイツサンライズ 2B |
| リフォーム履歴 |
- |
| リノベーション履歴 |
- |
| 特記事項 |
居抜き、土曜日利用可、土日・祝日利用可、飲食店不可、IT重説対応物件 |
| 備考 |
賃貸保証等:加入要(初回契約時:65%、更新時:10%、過去1年間の賃料滞納回数が1回以下なら年間保証委託料(10%)が無料)
管理形態/管理員の勤務形態:-/-
IT重説対応物件
|
| エネルギー消費性能 |
- |
| 断熱性能 |
- |
| 目安光熱費 |
- |
| バス・トイレ |
共用部分に男女別トイレあり |
| キッチン |
- |
| 設備・サービス |
空調機あり
エアコン |
| その他 |
エレベーター2基以上、エレベーター |
| 契約期間 |
2年 |
条件等 |
- |
| 引渡可能時期 |
即時 |
現況 |
空 |
| 仲介手数料 |
1ヶ月 |
|
|
| 更新料 |
- |
物件番号 |
6987241979 |
| 情報公開日 |
2025年8月5日 |
次回更新予定日 |
2025年12月16日 |
| ケータイ用バーコード |
- スマートフォンでこの物件を見る
- スマートフォンからもこの物件をご覧になれます。
|
※「-」と表示されている項目については、情報提供会社にご確認ください。
ここから簡単にお問い合わせをすることができます。
(SSLでの暗号化での送信を希望されるお客さまは
こちら
よりお問い合わせください)
お問い合わせを行う前に
「個人情報の取り扱いについて」を必ずお読みください。
「個人情報の取り扱いについて」に同意いただいた場合は「上記にご同意の上 確認画面へ進む」のボタンをクリックしてください。
個人情報の取り扱いについて
皆さまが送付された個人情報はアットホーム(株)のサーバを経由し、お問い合わせ先の不動産会社にメールまたはFAXにて転送されるためアットホーム(株)にも保管されます。アットホーム(株)で保管された個人情報の取り扱いについては、【こちら】をご覧ください。
また、本画面でご記入いただいた個人情報は、お問い合わせ先の不動産会社でも保管します。 お問い合わせ先の不動産会社が保管する個人情報の取り扱いについては、不動産会社に直接お問い合わせください。
愛知県知事免許(1)第26022号 |
|---|
- 交通:
- 名古屋市東山線/栄駅 徒歩8分
- 愛知県名古屋市中区栄3丁目12-3
- TEL:
- 052-253-9888
- FAX:
- 052-253-9878
- 所属団体:
- (公社)愛知県宅地建物取引業協会会員東海不動産公正取引協議会加盟
取引態様:仲介  - 40412155
|
- スマートフォンで
この不動産会社を見る

|
- 提携サイト等より掲載されている物件情報につきましては、不動産会社詳細情報にリンクされていないものがあります。
- 物件に関するお問合せは、物件詳細ページの「情報提供会社」に表示されている不動産会社へ直接お願いいたします。
- 間取図は、現況を優先させていただきます。
- 映像は物件の一部を撮影したものです。物件の契約にあたっての最終判断はご自身の判断に基づいて行ってください。
- 仲介手数料について

アットホームは物件情報の適正化に努めております。
内容に誤りがある場合にはこちらへご連絡ください。