東京都新宿区西新宿1丁目(新宿西口駅)の貸店舗:物件詳細
交通 所在地 |
駅徒歩 |
賃料 管理費等 |
敷金/保証金 礼金 |
使用部分面積 坪数/坪単価 |
物件種目 築年月 |
|
都営大江戸線/新宿西口
東京都新宿区西新宿1丁目
|
3分
|
325.55万円
-
|
なし / 8ヶ月
なし
|
279.54m²
84.56坪/3.85万円
|
貸店舗
1988年1月(築37年10ヶ月)
|
|
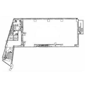
間取図
|
|
その他の画像
|
| 交通 | 都営大江戸線 新宿西口駅 徒歩3分 |
|---|
| その他の交通 | 東京メトロ丸ノ内線 新宿駅 徒歩3分 西武新宿線 西武新宿駅 徒歩8分 |
| 所在地 |
東京都新宿区西新宿1丁目
|
| 物件種目 |
貸店舗 |
| 賃料 |
325.55万円 |
管理費等 |
- |
| 敷金 / 保証金 |
なし / 8ヶ月 |
礼金 |
なし |
| 敷引 |
- |
坪単価 |
3.85万円 |
| 保証金償却 |
- |
権利金 |
- |
| 造作譲渡 |
- |
その他一時金 |
- |
| 維持費等 |
- |
保険等 |
- |
| 使用部分面積 |
279.54m² |
坪数 |
84.56坪 |
| 築年月 |
1988年1月(築37年10ヶ月)
|
階建 / 階 |
地上9階地下1階建 / 5階 |
| 駐車場 |
- |
バイク置き場 |
- |
| 駐輪場 |
- |
土地面積 |
- |
| 接道状況 |
-
|
用途地域 |
- |
| 間取り |
- |
建物構造 |
SRC |
| アピールポイント |
新宿駅西口エリア、**5階ワンフロア・279.54㎡(約84.55坪)**の大型区画。
駅至近でアクセス良好、オフィス・商業施設が集まる利便性の高い立地です。
事務所利用のほか、スクール・クリニック・ショールーム・サービス店舗など多用途でご相談可能。
EVあり/空調あり/視認性も確保されたフロア構成です。
※飲食不可。その他、業種・条件はお気軽にご相談ください。 |
| 建物名・部屋番号 |
新宿三葉ビル 5階 |
| リフォーム履歴 |
- |
| リノベーション履歴 |
- |
| 特記事項 |
飲食店不可 |
| 備考 |
管理形態/管理員の勤務形態:-/-
|
| エネルギー消費性能 |
- |
| 断熱性能 |
- |
| 目安光熱費 |
- |
| バス・トイレ |
- |
| キッチン |
- |
| 設備・サービス |
- |
| その他 |
- |
| 契約期間 |
2年 |
条件等 |
- |
| 引渡可能時期 |
2025年10月中旬予定 |
現況 |
使用中 |
| 更新料 |
- |
物件番号 |
6987243572 |
| 情報公開日 |
2025年8月5日 |
次回更新予定日 |
2025年11月4日 |
| ケータイ用バーコード |
- スマートフォンでこの物件を見る
- スマートフォンからもこの物件をご覧になれます。
|
※「-」と表示されている項目については、情報提供会社にご確認ください。
| 周辺施設 |
喫茶室ルノアール新宿ハルク横店 |
| 距離 |
1m |
| 周辺施設 |
MEIDI-YA STORE新宿西口ストアー |
| 距離 |
37m |
| 周辺施設 |
BEAMS GOLF小田急百貨店新宿店 |
| 距離 |
170m |
| 周辺施設 |
有賀園ゴルフ小田急百貨店新宿店 |
| 距離 |
170m |
| 周辺施設 |
ワイモバイルビックカメラ新宿西口店 |
| 距離 |
170m |
ここから簡単にお問い合わせをすることができます。
(SSLでの暗号化での送信を希望されるお客さまは
こちら
よりお問い合わせください)
お問い合わせを行う前に
「個人情報の取り扱いについて」を必ずお読みください。
「個人情報の取り扱いについて」に同意いただいた場合は「上記にご同意の上 確認画面へ進む」のボタンをクリックしてください。
個人情報の取り扱いについて
皆さまが送付された個人情報はアットホーム(株)のサーバを経由し、お問い合わせ先の不動産会社にメールまたはFAXにて転送されるためアットホーム(株)にも保管されます。アットホーム(株)で保管された個人情報の取り扱いについては、【こちら】をご覧ください。
また、本画面でご記入いただいた個人情報は、お問い合わせ先の不動産会社でも保管します。 お問い合わせ先の不動産会社が保管する個人情報の取り扱いについては、不動産会社に直接お問い合わせください。
東京都知事免許(1)第110168号 |
|---|
- 交通:
- 都営大江戸線/大門駅 徒歩4分
- 東京都港区浜松町1丁目10-13 福岡ビル1階
- TEL:
- 03-6803-4825
- FAX:
- 03-6332-9371
- 所属団体:
- (公社)東京都宅地建物取引業協会会員(公社)首都圏不動産公正取引協議会加盟
取引態様:仲介  - 00277207
|
- スマートフォンで
この不動産会社を見る

|
- 提携サイト等より掲載されている物件情報につきましては、不動産会社詳細情報にリンクされていないものがあります。
- 物件に関するお問合せは、物件詳細ページの「情報提供会社」に表示されている不動産会社へ直接お願いいたします。
- 間取図は、現況を優先させていただきます。
- 映像は物件の一部を撮影したものです。物件の契約にあたっての最終判断はご自身の判断に基づいて行ってください。
- 仲介手数料について

アットホームは物件情報の適正化に努めております。
内容に誤りがある場合にはこちらへご連絡ください。