静岡県静岡市葵区常磐町1丁目(静岡駅)の貸店舗:物件詳細
交通 所在地 |
駅徒歩 |
賃料 管理費等 |
敷金/保証金 礼金 |
使用部分面積 坪数/坪単価 |
物件種目 築年月 |
|
東海道本線/静岡
静岡県静岡市葵区常磐町1丁目
|
10分
|
14.59万円
25,366円
|
6ヶ月 / なし
なし
|
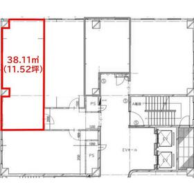
38.11m²
11.52坪/1.2656万円
|
貸店舗
1988年10月(築37年3ヶ月)
|
|
間取図
|
外観
|
その他の画像
|
| 交通 | 東海道本線 静岡駅 徒歩10分 |
|---|
| その他の交通 | 東海道新幹線 静岡駅 徒歩10分 静岡鉄道静岡清水線 新静岡駅 徒歩10分 |
| 所在地 |
静岡県静岡市葵区常磐町1丁目
|
| 物件種目 |
貸店舗 |
| 賃料 |
14.59万円 |
管理費等 |
25,366円 |
| 敷金 / 保証金 |
6ヶ月 / なし |
礼金 |
なし |
| 敷引 |
- |
坪単価 |
1.2656万円 |
| 保証金償却 |
- |
権利金 |
- |
| 造作譲渡 |
造作譲渡無償 |
その他一時金 |
- |
| 維持費等 |
町内会費:700円/月 |
保険等 |
- |
| 使用部分面積 |
38.11m² |
坪数 |
11.52坪 |
| 築年月 |
1988年10月(築37年3ヶ月)
|
階建 / 階 |
6階建 / 6階 |
| 駐車場 |
- |
バイク置き場 |
- |
| 駐輪場 |
- |
土地面積 |
- |
| 接道状況 |
-
|
用途地域 |
商業地域 |
| 間取り |
- |
建物構造 |
RC |
| アピールポイント |
『地域密着型オフィス・テナント専門店』★★★★★
静岡駅前・中心地・商店街・繁華街のオフィス・テナントなら【株式会社 オチアイ】へ
【株式会社オチアイ】は、静岡駅前・中心市街地の事業用不動産の取り扱いに特化しております。
大型オフィス・店舗からコンパクトな事務所・テナントまで、多種多様な物件を的確にご紹介差し上げることが可能です。
非公開情報も多数!!
直接お電話くださっても大丈夫です!
054-251-8808
~ご来店時はご予約ください~
★JR静岡駅★新静岡駅★紺屋町地下街★静岡駅前★静岡中心地★静岡中心市街地★商店街★繁華街★静岡紺屋町名店街★静岡呉服町名店街★しずおか御幸町発展会★静岡市葵区★居抜き★事業用★店舗探し★事務所探し★オフィス★テナント★飲食店★カフェ★和食★フレンチ★イタリアン★居酒屋★バル★BAR★ラウンジ★キャバクラ★アパレル★服飾★雑貨★ブティック★美容室★エステサロン★ネイルサロン★まつ毛サロン★マッサージ★整体★フィットネスジム★パーソナルジム★ドラッグストア★クリニック★病院★各種スクール★コンビニ★スーパー★カラオケ★テイクアウト★他 |
| 建物名・部屋番号 |
|
| リフォーム履歴 |
- |
| リノベーション履歴 |
- |
| 特記事項 |
24時間利用可、土日・祝日利用可、飲食店可、最上階、耐震構造(新耐震基準) |
| 備考 |
管理形態/管理員の勤務形態:-/-
※表示賃料は消費税込です。
|
| エネルギー消費性能 |
- |
| 断熱性能 |
- |
| 目安光熱費 |
- |
| バス・トイレ |
- |
| キッチン |
- |
| 設備・サービス |
看板取付スペースあり、シャッター付き
防犯カメラ、シャッター雨戸 |
| その他 |
エレベーター2基以上 |
| 契約期間 |
2年 |
条件等 |
- |
| 引渡可能時期 |
即時 |
現況 |
空 |
| 仲介手数料 |
1ヶ月 |
|
|
| 更新料 |
- |
物件番号 |
6987249504 |
| 情報公開日 |
2025年8月6日 |
次回更新予定日 |
2025年12月12日 |
| ケータイ用バーコード |
- スマートフォンでこの物件を見る
- スマートフォンからもこの物件をご覧になれます。
|
※「-」と表示されている項目については、情報提供会社にご確認ください。
ここから簡単にお問い合わせをすることができます。
(SSLでの暗号化での送信を希望されるお客さまは
こちら
よりお問い合わせください)
お問い合わせを行う前に
「個人情報の取り扱いについて」を必ずお読みください。
「個人情報の取り扱いについて」に同意いただいた場合は「上記にご同意の上 確認画面へ進む」のボタンをクリックしてください。
個人情報の取り扱いについて
皆さまが送付された個人情報はアットホーム(株)のサーバを経由し、お問い合わせ先の不動産会社にメールまたはFAXにて転送されるためアットホーム(株)にも保管されます。アットホーム(株)で保管された個人情報の取り扱いについては、【こちら】をご覧ください。
また、本画面でご記入いただいた個人情報は、お問い合わせ先の不動産会社でも保管します。 お問い合わせ先の不動産会社が保管する個人情報の取り扱いについては、不動産会社に直接お問い合わせください。
静岡県知事免許(3)第13384号 |
|---|
- 交通:
- 東海道新幹線/静岡駅 徒歩3分
- 静岡県静岡市葵区紺屋町11-1 浮月ビル2階
- TEL:
- 054-251-8808
- FAX:
- 054-251-8803
- 所属団体:
- (公社)静岡県宅地建物取引業協会会員(一社)全国賃貸不動産管理業協会会員東海不動産公正取引協議会加盟
取引態様:仲介  - 40403186
|
- スマートフォンで
この不動産会社を見る

|
- 提携サイト等より掲載されている物件情報につきましては、不動産会社詳細情報にリンクされていないものがあります。
- 物件に関するお問合せは、物件詳細ページの「情報提供会社」に表示されている不動産会社へ直接お願いいたします。
- 間取図は、現況を優先させていただきます。
- 映像は物件の一部を撮影したものです。物件の契約にあたっての最終判断はご自身の判断に基づいて行ってください。
- 仲介手数料について

アットホームは物件情報の適正化に努めております。
内容に誤りがある場合にはこちらへご連絡ください。