茨城県水戸市中央1丁目(水戸駅)の貸店舗:物件詳細
交通 所在地 |
駅徒歩 |
賃料 管理費等 |
敷金/保証金 礼金 |
使用部分面積 坪数/坪単価 |
物件種目 築年月 |
|
JR常磐線/水戸
茨城県水戸市中央1丁目
|
10分
|
44.6627万円
-
|
6ヶ月 / なし
なし
|
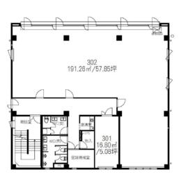
208.06m²
62.93坪/0.7097万円
|
貸店舗・事務所
1986年2月(築39年11ヶ月)
|
|
間取図
|
外観
建物外観
|
<
その他の画像
>
|
| 交通 | JR常磐線 水戸駅 徒歩10分 |
|---|
| その他の交通 | 鹿島臨海鉄道 水戸駅 徒歩10分 |
| 所在地 |
茨城県水戸市中央1丁目
|
| 物件種目 |
貸店舗・事務所 |
| 賃料 |
44.6627万円 |
管理費等 |
- |
| 敷金 / 保証金 |
6ヶ月 / なし |
礼金 |
なし |
| 敷引 |
- |
坪単価 |
0.7097万円 |
| 保証金償却 |
- |
権利金 |
- |
| 造作譲渡 |
- |
その他一時金 |
- |
| 維持費等 |
- |
保険等 |
要 |
| 使用部分面積 |
208.06m² |
坪数 |
62.93坪 |
| 築年月 |
1986年2月(築39年11ヶ月)
|
階建 / 階 |
4階建 / 3階 |
| 駐車場 |
無 |
バイク置き場 |
- |
| 駐輪場 |
- |
土地面積 |
- |
| 接道状況 |
北
・
東
|
用途地域 |
商業地域 |
| 間取り |
- |
建物構造 |
RC |
| アピールポイント |
事業用賃貸専門店のテナントセレクトです♪
貸店舗・事務所・倉庫・工場etcなど賃貸テナントに特化した専門店になります☆
JR宇都宮駅の西口と東口に1店舗ずつ、宇都宮西口店と宇都宮東口店の2店舗展開させて頂いております♪
専門店ならではの豊富な物件情報はもちろん、専門的な知識と経験をもったスタッフが対応させて頂きますので、安心して物件をお探し出来ます!
また貸テナントを所有されているオーナー様もお気軽にお問合せ下さい☆
テナントにあった入居者探しのお手伝いをさせて頂きます♪
テナントのことなら「テナントセレクト」にお任せ!!
皆様からのご連絡お待ちしております☆ |
| 建物名・部屋番号 |
|
| リフォーム履歴 |
■内装:2025年4月 内装全面(床・壁・天井・建具) ※実施年月は最も古い履歴を表示 |
| リノベーション履歴 |
- |
| 特記事項 |
24時間利用可、土曜日利用可、土日・祝日利用可、飲食店不可、1フロア1テナント、耐震構造(新耐震基準) |
| 備考 |
賃貸保証等:加入要(お問い合わせください。)
管理形態/管理員の勤務形態:-/-
※解約予告6か月前
|
| エネルギー消費性能 |
- |
| 断熱性能 |
- |
| 目安光熱費 |
- |
| バス・トイレ |
共用部分に男女別トイレあり |
| キッチン |
- |
| 設備・サービス |
個別空調、動力あり、ビルトインエアコン、光ファイバー |
| その他 |
- |
| 契約期間 |
2年 |
条件等 |
- |
| 引渡可能時期 |
即時 |
現況 |
空 |
| 仲介手数料 |
1.1ヶ月 |
|
|
| 更新料 |
- |
物件番号 |
6987307823 |
| 情報公開日 |
2025年8月11日 |
次回更新予定日 |
2025年12月17日 |
| ケータイ用バーコード |
- スマートフォンでこの物件を見る
- スマートフォンからもこの物件をご覧になれます。
|
※「-」と表示されている項目については、情報提供会社にご確認ください。
| 周辺施設 |
ローソン水戸桜川一丁目店 |
| 距離 |
217m |
写真を見る |
| 周辺施設 |
ガスト水戸駅南店(から好し取扱店) |
| 距離 |
171m |
写真を見る |
| 周辺施設 |
カワチ薬品CAWACHI水戸オーパ店 |
| 距離 |
620m |
写真を見る |
| 周辺施設 |
水戸市立第二中学校 |
| 距離 |
1819m |
写真を見る |
| 周辺施設 |
水戸市立千波中学校 |
| 距離 |
1481m |
写真を見る |
| 周辺施設 |
茨城県厚生連総合病院水戸協同病院 |
| 距離 |
1015m |
写真を見る |
| 周辺施設 |
水戸市役所前郵便局 |
| 距離 |
262m |
写真を見る |
ここから簡単にお問い合わせをすることができます。
(SSLでの暗号化での送信を希望されるお客さまは
こちら
よりお問い合わせください)
お問い合わせを行う前に
「個人情報の取り扱いについて」を必ずお読みください。
「個人情報の取り扱いについて」に同意いただいた場合は「上記にご同意の上 確認画面へ進む」のボタンをクリックしてください。
個人情報の取り扱いについて
皆さまが送付された個人情報はアットホーム(株)のサーバを経由し、お問い合わせ先の不動産会社にメールまたはFAXにて転送されるためアットホーム(株)にも保管されます。アットホーム(株)で保管された個人情報の取り扱いについては、【こちら】をご覧ください。
また、本画面でご記入いただいた個人情報は、お問い合わせ先の不動産会社でも保管します。 お問い合わせ先の不動産会社が保管する個人情報の取り扱いについては、不動産会社に直接お問い合わせください。
栃木県知事免許(2)第5194号 |
|---|
- 交通:
- JR東北本線/宇都宮駅 徒歩10分
- 栃木県宇都宮市元今泉3丁目9-8 元今泉高橋コーポ第2 105
- TEL:
- 028-678-5779
- FAX:
- 028-678-5789
- 所属団体:
- (公社)栃木県宅地建物取引業協会会員(公社)首都圏不動産公正取引協議会加盟
取引態様:仲介  - 00276051
|
- スマートフォンで
この不動産会社を見る

|
- 提携サイト等より掲載されている物件情報につきましては、不動産会社詳細情報にリンクされていないものがあります。
- 物件に関するお問合せは、物件詳細ページの「情報提供会社」に表示されている不動産会社へ直接お願いいたします。
- 間取図は、現況を優先させていただきます。
- 映像は物件の一部を撮影したものです。物件の契約にあたっての最終判断はご自身の判断に基づいて行ってください。
- 仲介手数料について

アットホームは物件情報の適正化に努めております。
内容に誤りがある場合にはこちらへご連絡ください。