愛知県名古屋市中村区牛田通2丁目(烏森駅)の貸店舗:物件詳細
交通 所在地 |
駅徒歩 |
賃料 管理費等 |
敷金/保証金 礼金 |
使用部分面積 坪数/坪単価 |
物件種目 築年月 |
|
近鉄名古屋線/烏森
愛知県名古屋市中村区牛田通2丁目
|
4分
|
39万円
-
|
なし / 117万円
なし
|
273.72m²
82.79坪/0.4711万円
|
貸店舗
1977年2月(築48年11ヶ月)
|
|
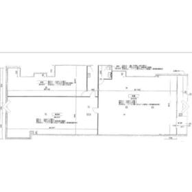
間取図
|
|
<
その他の画像
>
|
| 交通 | 近鉄名古屋線 烏森駅 徒歩4分 |
|---|
| その他の交通 | 近鉄名古屋線 黄金駅 徒歩9分 あおなみ線 小本駅 徒歩12分 |
| 所在地 |
愛知県名古屋市中村区牛田通2丁目
|
| 物件種目 |
貸店舗 |
| 賃料 |
39万円 |
管理費等 |
- |
| 敷金 / 保証金 |
なし / 117万円 |
礼金 |
なし |
| 敷引 |
- |
坪単価 |
0.4711万円 |
| 保証金償却 |
解約時39万円 2年未満:100%・2年以上:39万円 |
権利金 |
- |
| 造作譲渡 |
- |
その他一時金 |
- |
| 維持費等 |
- |
保険等 |
- |
| 使用部分面積 |
273.72m² |
坪数 |
82.79坪 |
| 築年月 |
1977年2月(築48年11ヶ月)
|
階建 / 階 |
2階建 / 1階 |
| 駐車場 |
有 8,800円/月(空き4台) |
バイク置き場 |
- |
| 駐輪場 |
- |
土地面積 |
- |
| 接道状況 |
-
|
用途地域 |
- |
| 間取り |
- |
建物構造 |
鉄骨造 |
| アピールポイント |
中村区をはじめ、名古屋で店舗・事務所をお探しの方は日建コーポレーションへ!
長年の実績と経験で、あなたにピッタリの物件をお探しします。
アットホームに掲載しきれない物件も多数ご紹介できます。
出店するエリアはどこがいいの?広さはどれくらい必要?お家賃の相場は?というようなお悩み相談も承ります◎
お電話・メール・LINEにてお気軽にお問い合わせください。 |
| 建物名・部屋番号 |
中村区牛田通貸店舗 1階 |
| リフォーム履歴 |
- |
| リノベーション履歴 |
- |
| 特記事項 |
土日・祝日利用可、飲食店不可、1フロア1テナント、駐車場3台分以上、都道府県道沿いに面する |
| 備考 |
管理形態/管理員の勤務形態:-/-
主要採光面:東向き
・24時間フィットネス等、夜音が出る業種は不可です
・来客のない弁当製造・セントラルキッチン等はご相談ください
|
| エネルギー消費性能 |
- |
| 断熱性能 |
- |
| 目安光熱費 |
- |
| バス・トイレ |
- |
| キッチン |
- |
| 設備・サービス |
看板取付スペースあり、シャッター付き
エアコン |
| その他 |
- |
| 契約期間 |
2年 |
条件等 |
- |
| 引渡可能時期 |
相談 |
現況 |
使用中 |
| 更新料 |
- |
物件番号 |
6987381329 |
| 情報公開日 |
2025年8月21日 |
次回更新予定日 |
2025年12月12日 |
| ケータイ用バーコード |
- スマートフォンでこの物件を見る
- スマートフォンからもこの物件をご覧になれます。
|
※「-」と表示されている項目については、情報提供会社にご確認ください。
| 周辺施設 |
セブンイレブン名古屋牛田通店 |
| 距離 |
31m |
ここから簡単にお問い合わせをすることができます。
(SSLでの暗号化での送信を希望されるお客さまは
こちら
よりお問い合わせください)
お問い合わせを行う前に
「個人情報の取り扱いについて」を必ずお読みください。
「個人情報の取り扱いについて」に同意いただいた場合は「上記にご同意の上 確認画面へ進む」のボタンをクリックしてください。
個人情報の取り扱いについて
皆さまが送付された個人情報はアットホーム(株)のサーバを経由し、お問い合わせ先の不動産会社にメールまたはFAXにて転送されるためアットホーム(株)にも保管されます。アットホーム(株)で保管された個人情報の取り扱いについては、【こちら】をご覧ください。
また、本画面でご記入いただいた個人情報は、お問い合わせ先の不動産会社でも保管します。 お問い合わせ先の不動産会社が保管する個人情報の取り扱いについては、不動産会社に直接お問い合わせください。
愛知県知事免許(7)第17196号 |
|---|
- 交通:
- 名古屋市東山線/伏見駅 徒歩8分
- 愛知県名古屋市中区栄1丁目17番16号 藤和シティコープ栄1F
- TEL:
- 052-228-6770
- FAX:
- 052-228-6771
- 所属団体:
- (公社)愛知県宅地建物取引業協会会員東海不動産公正取引協議会加盟
取引態様:仲介  - 40004505
|
- スマートフォンで
この不動産会社を見る

|
- 提携サイト等より掲載されている物件情報につきましては、不動産会社詳細情報にリンクされていないものがあります。
- 物件に関するお問合せは、物件詳細ページの「情報提供会社」に表示されている不動産会社へ直接お願いいたします。
- 間取図は、現況を優先させていただきます。
- 映像は物件の一部を撮影したものです。物件の契約にあたっての最終判断はご自身の判断に基づいて行ってください。
- 仲介手数料について

アットホームは物件情報の適正化に努めております。
内容に誤りがある場合にはこちらへご連絡ください。