神奈川県相模原市南区南台5丁目(小田急相模原駅)の貸店舗:物件詳細
交通 所在地 |
駅徒歩 |
賃料 管理費等 |
敷金/保証金 礼金 |
使用部分面積 坪数/坪単価 |
物件種目 築年月 |
|
小田急小田原線/小田急相模原
神奈川県相模原市南区南台5丁目
|
2分
|
19万円
なし
|
1ヶ月 / なし
1ヶ月
|
47.70m²
14.42坪/1.3168万円
|
貸店舗・事務所
2013年10月(築12年3ヶ月)
|
|
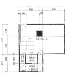
間取図
|
間取図
ペアナードオダサガ3F全体図面
|
<
その他の画像
>
|
| 交通 | 小田急小田原線 小田急相模原駅 徒歩2分 |
| 所在地 |
神奈川県相模原市南区南台5丁目
|
| 物件種目 |
貸店舗・事務所 |
| 賃料 |
19万円 |
管理費等 |
なし |
| 敷金 / 保証金 |
1ヶ月 / なし |
礼金 |
1ヶ月 |
| 敷引 |
- |
坪単価 |
1.3168万円 |
| 保証金償却 |
- |
権利金 |
- |
| 造作譲渡 |
- |
その他一時金 |
- |
| 維持費等 |
- |
保険等 |
- |
| クレジットカード決済 |
初期費用可 クレジット可能条件等:オリコカード、VISA、マスター・電子マネー利用可。カード手数料3.3%かかります。 |
| 使用部分面積 |
47.70m² |
坪数 |
14.42坪 |
| 築年月 |
2013年10月(築12年3ヶ月)
|
階建 / 階 |
地上29階地下1階建 / 3階 |
| 駐車場 |
- |
バイク置き場 |
- |
| 駐輪場 |
- |
土地面積 |
- |
| 接道状況 |
-
|
用途地域 |
- |
| 間取り |
1 |
建物構造 |
SRC |
| アピールポイント |
ペアナードオダサガ クリニックモール区画03(はやしクリニック)の一部分(スタッフルーム、ロッカールーム、給湯室、WC)の間貸しになります。スタッフルームに専用入口有。残置物ご相談できます。心理カウンセラー等に最適です。 |
| 建物名・部屋番号 |
ペアナードオダサガ 3F 302 間貸し |
| リフォーム履歴 |
- |
| リノベーション履歴 |
- |
| 特記事項 |
土日・祝日利用可、飲食店不可、国道沿いに面する |
| 備考 |
賃貸保証等:加入要(初回月額総賃料100%)
管理形態/管理員の勤務形態:-/-
ペアナードオダサガ3F クリニックモール区画03(はやしクリニック)の一部分(スタッフルーム、ロッカールーム、給湯室、WC)の間貸しになります。専用入口有。
残置物ご相談できます。
|
| エネルギー消費性能 |
- |
| 断熱性能 |
- |
| 目安光熱費 |
- |
| バス・トイレ |
トイレ |
| キッチン |
- |
| 設備・サービス |
看板取付スペースあり、空調機あり
収納スペース、ビルトインエアコン |
| その他 |
荷積みスペース、エレベーター |
| 契約期間 |
2年 |
条件等 |
- |
| 引渡可能時期 |
相談 |
現況 |
使用中 |
| 更新料 |
新賃料 1.1ヶ月 |
物件番号 |
6987414706 |
| 情報公開日 |
2025年11月16日 |
次回更新予定日 |
2025年12月28日 |
| ケータイ用バーコード |
- スマートフォンでこの物件を見る
- スマートフォンからもこの物件をご覧になれます。
|
※「-」と表示されている項目については、情報提供会社にご確認ください。
| 周辺施設 |
OdakyuOX相模原店 |
| 距離 |
141m |
| 周辺施設 |
ファミリーマートよろづやペアナード店 |
| 距離 |
3m |
| 周辺施設 |
サイゼリヤ小田急相模原駅前店 |
| 距離 |
18m |
| 周辺施設 |
ドラッグセイムス小田急相模原駅前店 |
| 距離 |
18m |
ここから簡単にお問い合わせをすることができます。
(SSLでの暗号化での送信を希望されるお客さまは
こちら
よりお問い合わせください)
お問い合わせを行う前に
「個人情報の取り扱いについて」を必ずお読みください。
「個人情報の取り扱いについて」に同意いただいた場合は「上記にご同意の上 確認画面へ進む」のボタンをクリックしてください。
個人情報の取り扱いについて
皆さまが送付された個人情報はアットホーム(株)のサーバを経由し、お問い合わせ先の不動産会社にメールまたはFAXにて転送されるためアットホーム(株)にも保管されます。アットホーム(株)で保管された個人情報の取り扱いについては、【こちら】をご覧ください。
また、本画面でご記入いただいた個人情報は、お問い合わせ先の不動産会社でも保管します。 お問い合わせ先の不動産会社が保管する個人情報の取り扱いについては、不動産会社に直接お問い合わせください。
神奈川県知事免許(7)第21600号 |
|---|
- 交通:
- 小田急小田原線/小田急相模原駅 徒歩2分
- 神奈川県相模原市南区松が枝町24-5
- TEL:
- 042-705-3215
- FAX:
- 042-705-4440
- 所属団体:
- (公社)神奈川県宅地建物取引業協会会員(公社)首都圏不動産公正取引協議会加盟
取引態様:仲介  - 00210377
|
- スマートフォンで
この不動産会社を見る

|
- 提携サイト等より掲載されている物件情報につきましては、不動産会社詳細情報にリンクされていないものがあります。
- 物件に関するお問合せは、物件詳細ページの「情報提供会社」に表示されている不動産会社へ直接お願いいたします。
- 間取図は、現況を優先させていただきます。
- 映像は物件の一部を撮影したものです。物件の契約にあたっての最終判断はご自身の判断に基づいて行ってください。
- 仲介手数料について

アットホームは物件情報の適正化に努めております。
内容に誤りがある場合にはこちらへご連絡ください。