東京都武蔵野市境4丁目(武蔵境駅)の貸店舗:物件詳細
交通 所在地 |
駅徒歩 |
賃料 管理費等 |
敷金/保証金 礼金 |
使用部分面積 坪数/坪単価 |
物件種目 築年月 |
|
JR中央線/武蔵境
東京都武蔵野市境4丁目
|
10分
|
24.86万円
11,000円
|
なし / 6ヶ月
なし
|
84.20m²
25.47坪/0.9761万円
|
貸店舗・事務所
1974年1月(築52年3ヶ月)
|
|
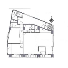
間取図
|
|
<
その他の画像
>
|
| 交通 | JR中央線 武蔵境駅 徒歩10分 |
| 所在地 |
東京都武蔵野市境4丁目
|
| 物件種目 |
貸店舗・事務所 |
| 賃料 |
24.86万円 |
管理費等 |
11,000円 |
| 敷金 / 保証金 |
なし / 6ヶ月 |
礼金 |
なし |
| 敷引 |
- |
坪単価 |
0.9761万円 |
| 保証金償却 |
解約時1ヶ月 |
権利金 |
- |
| 造作譲渡 |
- |
その他一時金 |
- |
| 維持費等 |
- |
保険等 |
要 借家人賠償 |
| 使用部分面積 |
84.20m² |
坪数 |
25.47坪 |
| 築年月 |
1974年1月(築52年3ヶ月)
|
階建 / 階 |
5階建 / 1階 |
| 駐車場 |
- |
バイク置き場 |
- |
| 駐輪場 |
- |
土地面積 |
- |
| 接道状況 |
-
|
用途地域 |
- |
| 間取り |
- |
建物構造 |
RC |
| アピールポイント |
【事務所・店舗専門の不動産屋さん】
三鷹駅より徒歩数分の利便性を生かし、事務所や店舗を多く取り扱っております!
物件仲介に長年携わり、多くの方々から信頼を得たベテランスタッフが、女性ならではの細やかさで対応致します☆
事務所開業・移転または事業の新規開業・拡大の方を応援いたします!
掲載中の物件以外も多数ご紹介できますので、お気軽にご相談下さい♪ |
| 建物名・部屋番号 |
|
| リフォーム履歴 |
- |
| リノベーション履歴 |
- |
| 特記事項 |
土曜日利用可、土日・祝日利用可、飲食店不可 |
| 備考 |
賃貸保証等:加入要(初回保証料・継続保証料あり)
管理形態/管理員の勤務形態:-/-
|
| エネルギー消費性能 |
- |
| 断熱性能 |
- |
| 目安光熱費 |
- |
| バス・トイレ |
トイレ2ヶ所、専有部分に男女別トイレあり |
| キッチン |
- |
| 設備・サービス |
エアコン2台以上、給湯、都市ガス、エアコン、インターネット対応 |
| その他 |
- |
| 契約期間 |
2年 |
条件等 |
定期借家 |
| 引渡可能時期 |
相談 |
現況 |
空 |
| 仲介手数料 |
1ヶ月 |
|
|
| 更新料 |
新賃料 1ヶ月 |
物件番号 |
6987428455 |
| 情報公開日 |
2026年3月8日 |
次回更新予定日 |
2026年3月22日 |
| ケータイ用バーコード |
- スマートフォンでこの物件を見る
- スマートフォンからもこの物件をご覧になれます。
|
※「-」と表示されている項目については、情報提供会社にご確認ください。
ここから簡単にお問い合わせをすることができます。
(SSLでの暗号化での送信を希望されるお客さまは
こちら
よりお問い合わせください)
お問い合わせを行う前に
「個人情報の取り扱いについて」を必ずお読みください。
「個人情報の取り扱いについて」に同意いただいた場合は「上記にご同意の上 確認画面へ進む」のボタンをクリックしてください。
個人情報の取り扱いについて
皆さまが送付された個人情報はアットホーム(株)のサーバを経由し、お問い合わせ先の不動産会社にメールまたはFAXにて転送されるためアットホーム(株)にも保管されます。アットホーム(株)で保管された個人情報の取り扱いについては、【こちら】をご覧ください。
また、本画面でご記入いただいた個人情報は、お問い合わせ先の不動産会社でも保管します。 お問い合わせ先の不動産会社が保管する個人情報の取り扱いについては、不動産会社に直接お問い合わせください。
東京都知事免許(4)第87158号 |
|---|
- 交通:
- JR中央線/三鷹駅 徒歩3分
- 東京都三鷹市下連雀3丁目34-2 エミネンスイン三鷹404
- TEL:
- 0422-40-2808
- FAX:
- 0422-40-2805
- 所属団体:
- (公社)全日本不動産協会会員(公社)首都圏不動産公正取引協議会加盟
取引態様:仲介  - 00988571
|
- スマートフォンで
この不動産会社を見る

|
- 提携サイト等より掲載されている物件情報につきましては、不動産会社詳細情報にリンクされていないものがあります。
- 物件に関するお問合せは、物件詳細ページの「情報提供会社」に表示されている不動産会社へ直接お願いいたします。
- 間取図は、現況を優先させていただきます。
- 映像は物件の一部を撮影したものです。物件の契約にあたっての最終判断はご自身の判断に基づいて行ってください。
- 仲介手数料について

アットホームは物件情報の適正化に努めております。
内容に誤りがある場合にはこちらへご連絡ください。