東京都新宿区西新宿8丁目(西新宿駅)の貸店舗:物件詳細
交通 所在地 |
駅徒歩 |
賃料 管理費等 |
敷金/保証金 礼金 |
使用部分面積 坪数/坪単価 |
物件種目 築年月 |
|
東京メトロ丸ノ内線/西新宿
東京都新宿区西新宿8丁目
|
1分
|
26.4万円
6,600円
|
なし / 6ヶ月
1ヶ月
|
54.00m²
16.33坪/1.6162万円
|
貸店舗
1970年4月(築55年9ヶ月)
|
|
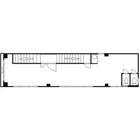
間取図
|
外観
|
<
その他の画像
>
|
| 交通 | 東京メトロ丸ノ内線 西新宿駅 徒歩1分 |
|---|
| その他の交通 | 都営大江戸線 都庁前駅 徒歩9分 JR山手線 新宿駅 徒歩10分 |
| 所在地 |
東京都新宿区西新宿8丁目
|
| 物件種目 |
貸店舗 |
| 賃料 |
26.4万円 |
管理費等 |
6,600円 |
| 敷金 / 保証金 |
なし / 6ヶ月 |
礼金 |
1ヶ月 |
| 敷引 |
- |
坪単価 |
1.6162万円 |
| 保証金償却 |
- |
権利金 |
- |
| 造作譲渡 |
- |
その他一時金 |
- |
| 維持費等 |
- |
保険等 |
要 |
| 使用部分面積 |
54.00m² |
坪数 |
16.33坪 |
| 築年月 |
1970年4月(築55年9ヶ月)
|
階建 / 階 |
4階建 / 2階 |
| 駐車場 |
- |
バイク置き場 |
- |
| 駐輪場 |
- |
土地面積 |
- |
| 接道状況 |
-
|
用途地域 |
- |
| 間取り |
- |
建物構造 |
RC |
| アピールポイント |
西新宿駅至近の物件!新宿駅も徒歩圏内です。お気軽にお問い合わせください! |
| 建物名・部屋番号 |
信栄ビル 2階 |
| リフォーム履歴 |
- |
| リノベーション履歴 |
- |
| 特記事項 |
飲食店不可 |
| 備考 |
賃貸保証等:加入要(当社指定保証会社加入必須(別途保証委託料要))
管理形態/管理員の勤務形態:-/-
【税率10%算出。税率変動に準ず】
※店舗の場合:保証金相談(記載の6ヶ月は目安となります)
水回り大幅に工事する業態は不可(美容室等)
※事務所の場合:賃料月額231,000円(税込)
※再契約料:1ヶ月分
※鍵交換等諸費用別途負担有
※セコム加入必須(別途費用負担有)
※水道・電気代別途負担有
|
| エネルギー消費性能 |
- |
| 断熱性能 |
- |
| 目安光熱費 |
- |
| バス・トイレ |
- |
| キッチン |
- |
| 設備・サービス |
個別空調、エアコン、暖房、冷房 |
| その他 |
- |
| 契約期間 |
2年 |
条件等 |
定期借家 |
| 引渡可能時期 |
指定有り2026年1月16日 |
現況 |
使用中 |
| 仲介手数料 |
1ヶ月 |
|
|
| 更新料 |
- |
物件番号 |
6987443778 |
| 情報公開日 |
2025年8月26日 |
次回更新予定日 |
2025年12月17日 |
| ケータイ用バーコード |
- スマートフォンでこの物件を見る
- スマートフォンからもこの物件をご覧になれます。
|
※「-」と表示されている項目については、情報提供会社にご確認ください。
| 周辺施設 |
まいばすけっと西新宿8丁目店 |
| 距離 |
53m |
写真を見る |
| 周辺施設 |
ファミリーマート西新宿八丁目店 |
| 距離 |
122m |
写真を見る |
| 周辺施設 |
ジョナサン西新宿店 |
| 距離 |
67m |
写真を見る |
| 周辺施設 |
タリーズコーヒー西新宿駅前店 |
| 距離 |
126m |
写真を見る |
| 周辺施設 |
松屋西新宿8丁目店 |
| 距離 |
85m |
写真を見る |
| 周辺施設 |
スギ薬局西新宿医大前店 |
| 距離 |
95m |
写真を見る |
| 周辺施設 |
新宿アイランド郵便局 |
| 距離 |
305m |
写真を見る |
| 周辺施設 |
静岡銀行新宿支店 |
| 距離 |
191m |
写真を見る |
ここから簡単にお問い合わせをすることができます。
(SSLでの暗号化での送信を希望されるお客さまは
こちら
よりお問い合わせください)
お問い合わせを行う前に
「個人情報の取り扱いについて」を必ずお読みください。
「個人情報の取り扱いについて」に同意いただいた場合は「上記にご同意の上 確認画面へ進む」のボタンをクリックしてください。
個人情報の取り扱いについて
皆さまが送付された個人情報はアットホーム(株)のサーバを経由し、お問い合わせ先の不動産会社にメールまたはFAXにて転送されるためアットホーム(株)にも保管されます。アットホーム(株)で保管された個人情報の取り扱いについては、【こちら】をご覧ください。
また、本画面でご記入いただいた個人情報は、お問い合わせ先の不動産会社でも保管します。 お問い合わせ先の不動産会社が保管する個人情報の取り扱いについては、不動産会社に直接お問い合わせください。
東京都知事免許(5)第79601号 |
|---|
- 交通:
- JR総武線/新宿駅 徒歩5分
- 東京都渋谷区代々木2丁目13-6 YU-WAビル2階
- TEL:
- 03-5308-4666
- FAX:
- 03-5308-4667
- 所属団体:
- (公社)全日本不動産協会会員(公社)首都圏不動産公正取引協議会加盟
取引態様:仲介  - 00275533
|
- スマートフォンで
この不動産会社を見る

|
- 提携サイト等より掲載されている物件情報につきましては、不動産会社詳細情報にリンクされていないものがあります。
- 物件に関するお問合せは、物件詳細ページの「情報提供会社」に表示されている不動産会社へ直接お願いいたします。
- 間取図は、現況を優先させていただきます。
- 映像は物件の一部を撮影したものです。物件の契約にあたっての最終判断はご自身の判断に基づいて行ってください。
- 仲介手数料について

アットホームは物件情報の適正化に努めております。
内容に誤りがある場合にはこちらへご連絡ください。