石川県野々市市押野6丁目(押野駅)の貸店舗:物件詳細
交通 所在地 |
駅徒歩 |
賃料 管理費等 |
敷金/保証金 礼金 |
使用部分面積 坪数/坪単価 |
物件種目 築年月 |
|
北陸鉄道石川線/押野
石川県野々市市押野6丁目
|
10分
|
20万円
-
|
2ヶ月 / なし
1ヶ月
|
88.01m²
26.62坪/0.7513万円
|
貸店舗
2003年8月(築22年5ヶ月)
|
|
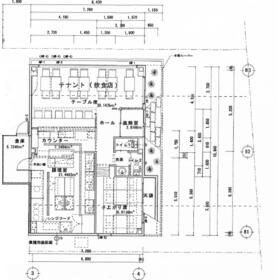
間取図
|
|
<
その他の画像
>
|
| 交通 | 北陸鉄道石川線 押野駅 徒歩10分 |
| 所在地 |
石川県野々市市押野6丁目
|
| 物件種目 |
貸店舗 |
| 賃料 |
20万円 |
管理費等 |
- |
| 敷金 / 保証金 |
2ヶ月 / なし |
礼金 |
1ヶ月 |
| 敷引 |
- |
坪単価 |
0.7513万円 |
| 保証金償却 |
- |
権利金 |
- |
| 造作譲渡 |
- |
その他一時金 |
- |
| 維持費等 |
- |
保険等 |
- |
| 使用部分面積 |
88.01m² |
坪数 |
26.62坪 |
| 築年月 |
2003年8月(築22年5ヶ月)
|
階建 / 階 |
3階建 / 1階 |
| 駐車場 |
有 無料(空き5台) |
バイク置き場 |
- |
| 駐輪場 |
- |
土地面積 |
- |
| 接道状況 |
-
|
用途地域 |
1種住居 |
| 間取り |
- |
建物構造 |
鉄骨造 |
| アピールポイント |
『マルエー』『キリン堂』『ゲンキー』『星乃珈琲店』に囲まれた好立地で、お客様にもご案内しやすい分かりやすい場所です。
駐車場は前面に5台分を確保。客席はカウンター6席に加え、子上がりの掘りごたつ席24席をご用意しており、厨房は約6.5坪と広く、ゆとりある調理スペースが魅力です。トイレは男女別で2か所完備しています。
なお、外壁などの構造部分を除き、エアコン・照明・トイレ・厨房機器等の故障に伴う修理費用は借主様のご負担となります。引渡し状態についてはご相談に応じます。 |
| 建物名・部屋番号 |
|
| リフォーム履歴 |
- |
| リノベーション履歴 |
- |
| 特記事項 |
飲食店可 |
| 備考 |
賃貸保証等:加入要(初回保証料:月額賃料等の100%、月額保証料:月額賃料等の1%、更新保証料(1年毎):月額賃料等の10%)
管理形態/管理員の勤務形態:-/-
|
| エネルギー消費性能 |
- |
| 断熱性能 |
- |
| 目安光熱費 |
- |
| バス・トイレ |
- |
| キッチン |
- |
| 設備・サービス |
- |
| その他 |
- |
| 契約期間 |
2年 |
条件等 |
- |
| 引渡可能時期 |
相談 |
現況 |
使用中 |
| 適格請求書発行 |
不可
|
| 更新料 |
- |
物件番号 |
6987463034 |
| 情報公開日 |
2025年8月28日 |
次回更新予定日 |
2025年12月12日 |
| ケータイ用バーコード |
- スマートフォンでこの物件を見る
- スマートフォンからもこの物件をご覧になれます。
|
※「-」と表示されている項目については、情報提供会社にご確認ください。
ここから簡単にお問い合わせをすることができます。
(SSLでの暗号化での送信を希望されるお客さまは
こちら
よりお問い合わせください)
お問い合わせを行う前に
「個人情報の取り扱いについて」を必ずお読みください。
「個人情報の取り扱いについて」に同意いただいた場合は「上記にご同意の上 確認画面へ進む」のボタンをクリックしてください。
個人情報の取り扱いについて
皆さまが送付された個人情報はアットホーム(株)のサーバを経由し、お問い合わせ先の不動産会社にメールまたはFAXにて転送されるためアットホーム(株)にも保管されます。アットホーム(株)で保管された個人情報の取り扱いについては、【こちら】をご覧ください。
また、本画面でご記入いただいた個人情報は、お問い合わせ先の不動産会社でも保管します。 お問い合わせ先の不動産会社が保管する個人情報の取り扱いについては、不動産会社に直接お問い合わせください。
国土交通大臣免許(3)第8818号 |
|---|
- 交通:
- IRいしかわ鉄道/金沢駅 【バス】3分 駅西合庁前 停歩3分
- 石川県金沢市西念4丁目24-21
- TEL:
- 076-222-1001
- FAX:
- 076-233-3080
- 所属団体:
- (公社)石川県宅地建物取引業協会会員北陸不動産公正取引協議会加盟
取引態様:代理  - 40403337
|
- スマートフォンで
この不動産会社を見る

|
- 提携サイト等より掲載されている物件情報につきましては、不動産会社詳細情報にリンクされていないものがあります。
- 物件に関するお問合せは、物件詳細ページの「情報提供会社」に表示されている不動産会社へ直接お願いいたします。
- 間取図は、現況を優先させていただきます。
- 映像は物件の一部を撮影したものです。物件の契約にあたっての最終判断はご自身の判断に基づいて行ってください。
- 仲介手数料について

アットホームは物件情報の適正化に努めております。
内容に誤りがある場合にはこちらへご連絡ください。