千葉県習志野市鷺沼2丁目(京成津田沼駅)の貸店舗:物件詳細
交通 所在地 |
駅徒歩 |
賃料 管理費等 |
敷金/保証金 礼金 |
使用部分面積 坪数/坪単価 |
物件種目 築年月 |
京成本線/京成津田沼
千葉県習志野市鷺沼2丁目
|
12分
|
12.1万円
なし
|
2ヶ月 / なし
1ヶ月
|
49.66m²
15.02坪/0.8055万円
|
住居付き貸店舗(一括)
1995年1月(築30年10ヶ月)
|
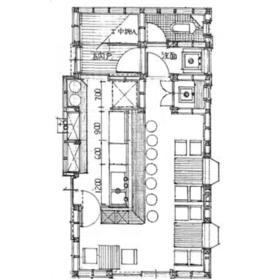
間取図
平面図見やすくしました。現地の現況優先でお願いします。
|
外観
|
<
その他の画像
>
|
交通 | 京成本線 京成津田沼駅 徒歩12分 |
---|
その他の交通 | 京成松戸線 新津田沼駅 徒歩22分 京成千葉線 京成幕張本郷駅 徒歩27分 |
所在地 |
千葉県習志野市鷺沼2丁目
|
物件種目 |
住居付き貸店舗(一括) |
賃料 |
12.1万円 |
管理費等 |
なし |
敷金 / 保証金 |
2ヶ月 / なし |
礼金 |
1ヶ月 |
敷引 |
- |
坪単価 |
0.8055万円 |
保証金償却 |
- |
権利金 |
- |
造作譲渡 |
- |
その他一時金 |
家賃債務保証料:60,500円、鍵交換費用:22,000円 |
維持費等 |
更新保証料:10,000円/年、引落手数料:440円/月 |
保険等 |
要 3年 |
使用部分面積 |
49.66m² |
坪数 |
15.02坪 |
築年月 |
1995年1月(築30年10ヶ月)
|
階建 / 階 |
2階建 |
駐車場 |
無 |
バイク置き場 |
無 |
駐輪場 |
無 |
土地面積 |
- |
接道状況 |
南西 6.0m 公道
|
用途地域 |
1種住居 |
間取り |
- |
建物構造 |
木造 |
アピールポイント |
定食屋さん居ぬき物件です。第1種住居地域内につき深夜営業ご予定の方はご注意ください。 |
建物名・部屋番号 |
荒川亭 |
リフォーム履歴 |
- |
リノベーション履歴 |
- |
特記事項 |
飲食店可、都道府県道沿いに面する |
備考 |
賃貸保証等:加入要(日本セーフティーとの保証契約必須)
管理形態/管理員の勤務形態:-/-
主要採光面:南西向き
1階店舗部分・2階居住部分のまとめ貸しとなります。
3年間の定期借家契約となります。再契約は貸主と借主の双方が同意した場合に限り可能となります。
|
エネルギー消費性能 |
- |
断熱性能 |
- |
目安光熱費 |
- |
バス・トイレ |
バス・トイレ同室、シャワー |
キッチン |
- |
設備・サービス |
看板取付スペースあり、シャッター付き
エアコン2台以上、収納スペース、室内洗濯機置場、給湯、プロパンガス、エアコン、冷房 |
その他 |
- |
契約期間 |
3年 |
条件等 |
定期借家 |
引渡可能時期 |
相談 |
現況 |
空 |
仲介手数料 |
1ヶ月 |
適格請求書発行 |
不可
|
更新料 |
新賃料 1ヶ月 |
物件番号 |
6987467382 |
情報公開日 |
2025年8月29日 |
次回更新予定日 |
2025年10月23日 |
ケータイ用バーコード |
- スマートフォンでこの物件を見る
- スマートフォンからもこの物件をご覧になれます。
|
※「-」と表示されている項目については、情報提供会社にご確認ください。
周辺施設 |
ファミリーマート習志野鷺沼店 |
距離 |
58m |
周辺施設 |
社会医療法人社団菊田会習志野第一病院 |
距離 |
398m |
ここから簡単にお問い合わせをすることができます。
(SSLでの暗号化での送信を希望されるお客さまは
こちら
よりお問い合わせください)
お問い合わせを行う前に
「個人情報の取り扱いについて」を必ずお読みください。
「個人情報の取り扱いについて」に同意いただいた場合は「上記にご同意の上 確認画面へ進む」のボタンをクリックしてください。
個人情報の取り扱いについて
皆さまが送付された個人情報はアットホーム(株)のサーバを経由し、お問い合わせ先の不動産会社にメールまたはFAXにて転送されるためアットホーム(株)にも保管されます。アットホーム(株)で保管された個人情報の取り扱いについては、【こちら】をご覧ください。
また、本画面でご記入いただいた個人情報は、お問い合わせ先の不動産会社でも保管します。 お問い合わせ先の不動産会社が保管する個人情報の取り扱いについては、不動産会社に直接お問い合わせください。
千葉県知事免許(3)第16696号 |
---|
- 交通:
- JR総武本線/船橋駅 徒歩7分
- 千葉県船橋市本町2丁目2-7 船橋本町プラザビル6F
- TEL:
- 047-401-3030
- FAX:
- 047-401-3031
- 所属団体:
- (一社)千葉県宅地建物取引業協会会員(公社)首都圏不動産公正取引協議会加盟
取引態様:仲介  - 00161232
|
- スマートフォンで
この不動産会社を見る

|
- 提携サイト等より掲載されている物件情報につきましては、不動産会社詳細情報にリンクされていないものがあります。
- 物件に関するお問合せは、物件詳細ページの「情報提供会社」に表示されている不動産会社へ直接お願いいたします。
- 間取図は、現況を優先させていただきます。
- 映像は物件の一部を撮影したものです。物件の契約にあたっての最終判断はご自身の判断に基づいて行ってください。
- 仲介手数料について

アットホームは物件情報の適正化に努めております。
内容に誤りがある場合にはこちらへご連絡ください。