静岡県浜松市中央区和合町(浜松駅)の貸店舗:物件詳細
交通 所在地 |
駅徒歩 |
賃料 管理費等 |
敷金/保証金 礼金 |
使用部分面積 坪数/坪単価 |
物件種目 築年月 |
|
東海道本線/浜松 【バス】15分 聖隷健診センター 停歩3分
静岡県浜松市中央区和合町
|
−
|
44万円
55,000円
|
6ヶ月 / なし
なし
|
165.00m²
49.91坪/0.8816万円
|
貸店舗・事務所
2002年2月(築24年4ヶ月)
|
|
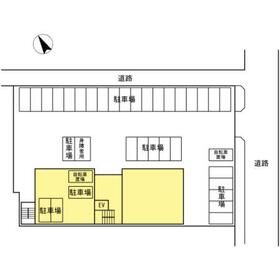
間取図
※間取図等現況と異なる場合は現況優先となります
|
敷地配置図
|
| 交通 | 東海道本線 浜松駅 【バス】 15分 聖隷健診センター 停歩3分 |
| 所在地 |
静岡県浜松市中央区和合町
|
| 物件種目 |
貸店舗・事務所 |
| 賃料 |
44万円 |
管理費等 |
55,000円 |
| 敷金 / 保証金 |
6ヶ月 / なし |
礼金 |
なし |
| 敷引 |
- |
坪単価 |
0.8816万円 |
| 保証金償却 |
- |
権利金 |
- |
| 造作譲渡 |
- |
その他一時金 |
- |
| 維持費等 |
- |
保険等 |
要 |
| 使用部分面積 |
165.00m² |
坪数 |
49.91坪 |
| 築年月 |
2002年2月(築24年4ヶ月)
|
階建 / 階 |
3階建 / 3階 |
| 駐車場 |
- |
バイク置き場 |
- |
| 駐輪場 |
- |
土地面積 |
- |
| 接道状況 |
南東 公道
・
北東 公道
|
用途地域 |
- |
| 間取り |
- |
建物構造 |
鉄骨造 |
| アピールポイント |
更新料がかからない物件なので、継続してご利用頂く際も負担が少なく済むのも嬉しいポイントです。
浜松市中央区和合町
貸テナント
専有面積:約49.91坪
3階
角住戸 |
| 建物名・部屋番号 |
|
| リフォーム履歴 |
- |
| リノベーション履歴 |
- |
| 特記事項 |
スケルトン、飲食店不可、角部屋、最上階、都道府県道沿いに面する |
| 備考 |
賃貸保証等:加入要(保証会社等詳細については募集店にてご確認ください)
管理形態/管理員の勤務形態:-/-
|
| エネルギー消費性能 |
- |
| 断熱性能 |
- |
| 目安光熱費 |
- |
| バス・トイレ |
トイレ2ヶ所、専有部分に男女別トイレあり |
| キッチン |
- |
| 設備・サービス |
- |
| その他 |
- |
| 契約期間 |
5年 |
条件等 |
- |
| 引渡可能時期 |
即時 |
現況 |
空 |
| 仲介手数料 |
1.1ヶ月 |
|
|
| 更新料 |
なし |
物件番号 |
6987471878 |
| 情報公開日 |
2026年5月7日 |
次回更新予定日 |
2026年5月21日 |
| ケータイ用バーコード |
- スマートフォンでこの物件を見る
- スマートフォンからもこの物件をご覧になれます。
|
※「-」と表示されている項目については、情報提供会社にご確認ください。
| 周辺施設 |
エブリィビッグデー高台店 |
| 距離 |
634m |
| 周辺施設 |
セブンイレブン浜松和地山2丁目店 |
| 距離 |
175m |
| 周辺施設 |
ファミリーマート聖隷浜松病院店 |
| 距離 |
573m |
| 周辺施設 |
ファミリーマート浜松住吉店 |
| 距離 |
1021m |
| 周辺施設 |
ローソン浜松住吉2丁目店 |
| 距離 |
877m |
| 周辺施設 |
ガスト浜松住吉店(から好し取扱店) |
| 距離 |
265m |
ここから簡単にお問い合わせをすることができます。
(SSLでの暗号化での送信を希望されるお客さまは
こちら
よりお問い合わせください)
お問い合わせを行う前に
「個人情報の取り扱いについて」を必ずお読みください。
「個人情報の取り扱いについて」に同意いただいた場合は「上記にご同意の上 確認画面へ進む」のボタンをクリックしてください。
個人情報の取り扱いについて
皆さまが送付された個人情報はアットホーム(株)のサーバを経由し、お問い合わせ先の不動産会社にメールまたはFAXにて転送されるためアットホーム(株)にも保管されます。アットホーム(株)で保管された個人情報の取り扱いについては、【こちら】をご覧ください。
また、本画面でご記入いただいた個人情報は、お問い合わせ先の不動産会社でも保管します。 お問い合わせ先の不動産会社が保管する個人情報の取り扱いについては、不動産会社に直接お問い合わせください。
茨城県知事免許(3)第7075号 |
|---|
- 交通:
- つくばエクスプレス/万博記念公園駅 徒歩20分
- 茨城県つくば市島名2926-1 プール・トゥジュール101号室
- TEL:
- 029-883-0118
- FAX:
- 029-883-0119
- 所属団体:
- (公社)茨城県宅地建物取引業協会会員(公社)首都圏不動産公正取引協議会加盟
取引態様:仲介  - 00269238
|
- スマートフォンで
この不動産会社を見る

|
- 提携サイト等より掲載されている物件情報につきましては、不動産会社詳細情報にリンクされていないものがあります。
- 物件に関するお問合せは、物件詳細ページの「情報提供会社」に表示されている不動産会社へ直接お願いいたします。
- 間取図は、現況を優先させていただきます。
- 映像は物件の一部を撮影したものです。物件の契約にあたっての最終判断はご自身の判断に基づいて行ってください。
- 仲介手数料について

アットホームは物件情報の適正化に努めております。
内容に誤りがある場合にはこちらへご連絡ください。