東京都新宿区西新宿1丁目(新宿駅)の貸店舗:物件詳細
交通 所在地 |
駅徒歩 |
賃料 管理費等 |
敷金/保証金 礼金 |
使用部分面積 坪数/坪単価 |
物件種目 築年月 |
|
JR山手線/新宿
東京都新宿区西新宿1丁目
|
3分
|
69.8247万円
-
|
なし / 10ヶ月
なし
|
77.75m²
23.51坪/2.9689万円
|
貸店舗
1992年11月(築33年2ヶ月)
|
| 交通 | JR山手線 新宿駅 徒歩3分 |
|---|
| その他の交通 | 小田急小田原線 新宿駅 徒歩3分 都営新宿線 新宿駅 徒歩4分 |
| 所在地 |
東京都新宿区西新宿1丁目
|
| 物件種目 |
貸店舗 |
| 賃料 |
69.8247万円 |
管理費等 |
- |
| 敷金 / 保証金 |
なし / 10ヶ月 |
礼金 |
なし |
| 敷引 |
- |
坪単価 |
2.9689万円 |
| 保証金償却 |
- |
権利金 |
- |
| 造作譲渡 |
- |
その他一時金 |
- |
| 維持費等 |
- |
保険等 |
- |
| 使用部分面積 |
77.75m² |
坪数 |
23.51坪 |
| 築年月 |
1992年11月(築33年2ヶ月)
|
階建 / 階 |
地上10階地下2階建 / 7階 |
| 駐車場 |
- |
バイク置き場 |
- |
| 駐輪場 |
- |
土地面積 |
- |
| 接道状況 |
-
|
用途地域 |
- |
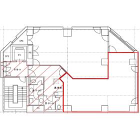
| 間取り |
- |
建物構造 |
SRC |
| アピールポイント |
・新宿区の不動産の事ならお任せください!物件はもちろん、周辺環境やお店の情報などなんでもお尋ねください。
スタッフが親身におこたえします!
・嬉しい【どこよりも安い工務店付き】なので、面倒なリフォーム工事もまとめて施工可能!オンザルームは、どこよりも初期費用お安く出来ます!
・オンザルーム不動産は初期費用全額クレジット決済出来ます!敷金・礼金ゼロ物件や新着物件情報など多数ご用意しておりますので、お気軽にお問合せ下さい(^^)!☆お問い合わせ先はTEL:03-6823-4606☆
・メールやラインだけでラクに早く引越しできます。ご来店が難しいお客様でも、お気軽にお問合せ下さいませ。この物件以外でお部屋をご検討されてる方も大歓迎です!まとめてご案内いたします!★オンライン内見オンライン相談可★ご契約までオンラインで完結可能★電気、ガス、ネット回線、引越しなどもまとめてお得に契約可能★安い工務店があるのでまとめてリフォーム可能★ |
| 建物名・部屋番号 |
TK新都心ビル(ティーケーシントシンビル) 7階 |
| リフォーム履歴 |
- |
| リノベーション履歴 |
- |
| 特記事項 |
有人警備、24時間セキュリティー |
| 備考 |
管理形態/管理員の勤務形態:-/-
・開館時間:平日 7:00~20:00 (年末年始、年次点検日を除く)
|
| エネルギー消費性能 |
- |
| 断熱性能 |
- |
| 目安光熱費 |
- |
| バス・トイレ |
- |
| キッチン |
- |
| 設備・サービス |
個別空調、光ファイバー |
| その他 |
エレベーター |
| 契約期間 |
2年1ヶ月 |
条件等 |
- |
| 引渡可能時期 |
即時 |
現況 |
空 |
| 更新料 |
- |
物件番号 |
6987488056 |
| 情報公開日 |
2025年12月3日 |
次回更新予定日 |
2025年12月17日 |
| ケータイ用バーコード |
- スマートフォンでこの物件を見る
- スマートフォンからもこの物件をご覧になれます。
|
※「-」と表示されている項目については、情報提供会社にご確認ください。
| 周辺施設 |
ナチュラルローソン新宿駅西店 |
| 距離 |
130m |
| 周辺施設 |
ファミリーマートエステック情報ビル店 |
| 距離 |
139m |
| 周辺施設 |
セブンイレブン西新宿1丁目西店 |
| 距離 |
96m |
| 周辺施設 |
コメダ珈琲店新宿ファーストウエスト店 |
| 距離 |
64m |
| 周辺施設 |
ドトールコーヒーショップ西新宿1丁目店 |
| 距離 |
114m |
ここから簡単にお問い合わせをすることができます。
(SSLでの暗号化での送信を希望されるお客さまは
こちら
よりお問い合わせください)
お問い合わせを行う前に
「個人情報の取り扱いについて」を必ずお読みください。
「個人情報の取り扱いについて」に同意いただいた場合は「上記にご同意の上 確認画面へ進む」のボタンをクリックしてください。
個人情報の取り扱いについて
皆さまが送付された個人情報はアットホーム(株)のサーバを経由し、お問い合わせ先の不動産会社にメールまたはFAXにて転送されるためアットホーム(株)にも保管されます。アットホーム(株)で保管された個人情報の取り扱いについては、【こちら】をご覧ください。
また、本画面でご記入いただいた個人情報は、お問い合わせ先の不動産会社でも保管します。 お問い合わせ先の不動産会社が保管する個人情報の取り扱いについては、不動産会社に直接お問い合わせください。
東京都知事免許(1)第110526号 |
|---|
- 交通:
- JR山手線/池袋駅
- 東京都豊島区東池袋2丁目63番地1 東池袋パレス1108号室
- TEL:
- 03-6823-4606
- 所属団体:
- (公社)全日本不動産協会会員(公社)首都圏不動産公正取引協議会加盟
取引態様:仲介  - 00277647
|
- スマートフォンで
この不動産会社を見る

|
- 提携サイト等より掲載されている物件情報につきましては、不動産会社詳細情報にリンクされていないものがあります。
- 物件に関するお問合せは、物件詳細ページの「情報提供会社」に表示されている不動産会社へ直接お願いいたします。
- 間取図は、現況を優先させていただきます。
- 映像は物件の一部を撮影したものです。物件の契約にあたっての最終判断はご自身の判断に基づいて行ってください。
- 仲介手数料について

アットホームは物件情報の適正化に努めております。
内容に誤りがある場合にはこちらへご連絡ください。