京都府京都市東山区祇園町北側(祇園四条駅)の貸店舗:物件詳細
交通 所在地 |
駅徒歩 |
賃料 管理費等 |
敷金/保証金 礼金 |
使用部分面積 坪数/坪単価 |
物件種目 築年月 |
|
京阪本線/祇園四条
京都府京都市東山区祇園町北側
|
7分
|
11万円
-
|
25万円 / なし
なし
|
33.02m²
9.98坪/1.1013万円
|
貸店舗
1975年5月(築51年1ヶ月)
|
| 交通 | 京阪本線 祇園四条駅 徒歩7分 |
|---|
| その他の交通 | 地下鉄東西線 三条京阪駅 徒歩10分 地下鉄東西線 東山駅 徒歩10分 |
| 所在地 |
京都府京都市東山区祇園町北側
|
| 物件種目 |
貸店舗 |
| 賃料 |
11万円 |
管理費等 |
- |
| 敷金 / 保証金 |
25万円 / なし |
礼金 |
なし |
| 敷引 |
- |
坪単価 |
1.1013万円 |
| 保証金償却 |
- |
権利金 |
- |
| 造作譲渡 |
- |
その他一時金 |
- |
| 維持費等 |
- |
保険等 |
- |
| 使用部分面積 |
33.02m² |
坪数 |
9.98坪 |
| 築年月 |
1975年5月(築51年1ヶ月)
|
階建 / 階 |
5階建 / 2階 |
| 駐車場 |
- |
バイク置き場 |
- |
| 駐輪場 |
- |
土地面積 |
- |
| 接道状況 |
-
|
用途地域 |
- |
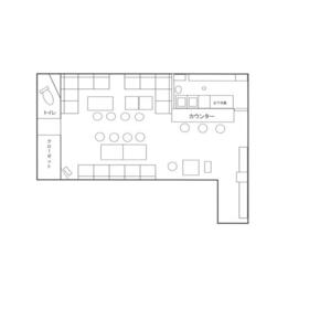
| 間取り |
- |
建物構造 |
鉄骨造 |
| アピールポイント |
BOX席メインでカウンターありの使いやすい物件です!!
お気軽にご相談下さい。 |
| 建物名・部屋番号 |
|
| リフォーム履歴 |
- |
| リノベーション履歴 |
- |
| 特記事項 |
居抜き、24時間利用可、土曜日利用可、土日・祝日利用可、飲食店可 |
| 備考 |
管理形態/管理員の勤務形態:-/-
ボックスメインの落ち着いた雰囲気の物件です!!
|
| エネルギー消費性能 |
- |
| 断熱性能 |
- |
| 目安光熱費 |
- |
| バス・トイレ |
トイレ |
| キッチン |
- |
| 設備・サービス |
看板取付スペースあり
収納スペース、冷蔵庫、給湯、都市ガス、動力あり、エアコン |
| その他 |
エレベーター |
| 契約期間 |
3年 |
条件等 |
- |
| 引渡可能時期 |
即時 |
現況 |
空 |
| 更新料 |
旧賃料 1ヶ月 |
物件番号 |
6987517468 |
| 情報公開日 |
2026年4月27日 |
次回更新予定日 |
2026年5月22日 |
| ケータイ用バーコード |
- スマートフォンでこの物件を見る
- スマートフォンからもこの物件をご覧になれます。
|
※「-」と表示されている項目については、情報提供会社にご確認ください。
ここから簡単にお問い合わせをすることができます。
(SSLでの暗号化での送信を希望されるお客さまは
こちら
よりお問い合わせください)
お問い合わせを行う前に
「個人情報の取り扱いについて」を必ずお読みください。
「個人情報の取り扱いについて」に同意いただいた場合は「上記にご同意の上 確認画面へ進む」のボタンをクリックしてください。
個人情報の取り扱いについて
皆さまが送付された個人情報はアットホーム(株)のサーバを経由し、お問い合わせ先の不動産会社にメールまたはFAXにて転送されるためアットホーム(株)にも保管されます。アットホーム(株)で保管された個人情報の取り扱いについては、【こちら】をご覧ください。
また、本画面でご記入いただいた個人情報は、お問い合わせ先の不動産会社でも保管します。 お問い合わせ先の不動産会社が保管する個人情報の取り扱いについては、不動産会社に直接お問い合わせください。
京都府知事免許(9)第8560号 |
|---|
- 交通:
- 地下鉄東西線/東山駅 徒歩5分
- 京都府京都市東山区新橋通東大路東入3丁目林下町477
- TEL:
- 075-541-6401
- FAX:
- 075-541-0107
- 所属団体:
- (公社)京都府宅地建物取引業協会会員(公社)近畿地区不動産公正取引協議会加盟
取引態様:仲介  - 50102668
|
- スマートフォンで
この不動産会社を見る

|
- 提携サイト等より掲載されている物件情報につきましては、不動産会社詳細情報にリンクされていないものがあります。
- 物件に関するお問合せは、物件詳細ページの「情報提供会社」に表示されている不動産会社へ直接お願いいたします。
- 間取図は、現況を優先させていただきます。
- 映像は物件の一部を撮影したものです。物件の契約にあたっての最終判断はご自身の判断に基づいて行ってください。
- 仲介手数料について

アットホームは物件情報の適正化に努めております。
内容に誤りがある場合にはこちらへご連絡ください。