愛知県一宮市松降通7丁目(尾張一宮駅)の貸店舗:物件詳細
交通 所在地 |
駅徒歩 |
賃料 管理費等 |
敷金/保証金 礼金 |
使用部分面積 坪数/坪単価 |
物件種目 築年月 |
|
東海道本線/尾張一宮 [バス利用可] バス 8分 一宮市民病院前 停歩3分
愛知県一宮市松降通7丁目
|
27分
|
10万円
5,000円
|
1ヶ月 / 3ヶ月
1ヶ月
|
35.00m²
10.58坪/0.9446万円
|
貸店舗
1982年11月(築43年2ヶ月)
|
|
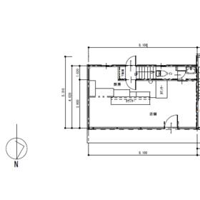
間取図
1階間取り図
|
|
<
その他の画像
>
|
| 交通 | 東海道本線 尾張一宮駅 徒歩27分 [バス利用可] バス 8分 一宮市民病院前 停歩3分 |
|---|
| その他の交通 | 名鉄名古屋本線 名鉄一宮駅 徒歩26分 [バス利用可] バス 8分 一宮市民病院前 停歩3分 名鉄名古屋本線 今伊勢駅 徒歩29分 |
| 所在地 |
愛知県一宮市松降通7丁目
|
| 物件種目 |
貸店舗 |
| 賃料 |
10万円 |
管理費等 |
5,000円 |
| 敷金 / 保証金 |
1ヶ月 / 3ヶ月 |
礼金 |
1ヶ月 |
| 敷引 |
- |
坪単価 |
0.9446万円 |
| 保証金償却 |
- |
権利金 |
- |
| 造作譲渡 |
- |
その他一時金 |
- |
| 維持費等 |
- |
保険等 |
要 1年 借家人賠償 |
| 使用部分面積 |
35.00m² |
坪数 |
10.58坪 |
| 築年月 |
1982年11月(築43年2ヶ月)
|
階建 / 階 |
2階建 / 1階 |
| 駐車場 |
有 無料 共同駐車場を使用できます。 |
バイク置き場 |
有 無料 |
| 駐輪場 |
有 無料 |
土地面積 |
- |
| 接道状況 |
西 12.0m 公道 接面15.0m
|
用途地域 |
- |
| 間取り |
ワンルーム |
建物構造 |
鉄骨造 |
| アピールポイント |
大通り沿いでも、落ち着いた立地なので、教室やサロンなどに向いています。推奨業種(美容系、カフェ系、各種小売系、教育系)業種、改装工事のご要望はご相談下さい。 |
| 建物名・部屋番号 |
松降通7丁目店舗西棟(東)1階 C |
| リフォーム履歴 |
■水回り:2025年11月 トイレ トイレのみ新品交換予定 ※実施年月は最も古い履歴を表示 |
| リノベーション履歴 |
2025年11月 詳細はお問合せ下さい。 ※実施年月は最も古い履歴を表示 |
| 特記事項 |
居抜き、スケルトン、24時間利用可、土曜日利用可、土日・祝日利用可、飲食店可、大型トラック搬入可、駐車場3台分以上、角部屋、保証人不要、都道府県道沿いに面する |
| 備考 |
賃貸保証等:加入要(初回保証料は賃料の1か月分です。以後の継続保証料は賃料の10%で、毎年必要になります。賃貸保証金は、退去時であっても返還されません。ご了承下さい。)
管理形態/管理員の勤務形態:-/-
主要採光面:北向き
一宮市の中心地、県道沿いの視認性の良い好立地に貸店舗が登場しました。一宮市民病院から徒歩3分とアクセスも良く、集客力のあるエリアです。ガラス張りの外観は明るく開放的で、塾や美容系サロン、カフェ、士業事務所など、さまざまな業種にマッチします。内装改装もご相談下さい。自分のこだわりを活かして、理想のお店づくりができます。こじんまりとしたサイズ感は、一人で運営したい方や、初めて独立する方にもぴったり。さらに今なら、同じ建物の2階住居部分(賃料65,000円)も一括で借りることができます。住居兼店舗として利用することでコストを抑えた新しい働き方も実現できます。あなたの夢を、この場所からカタチにしませんか?
内覧ご希望の方はお電話かお問合せボタンにて日時予約をお願いします。
|
| エネルギー消費性能 |
- |
| 断熱性能 |
- |
| 目安光熱費 |
- |
| バス・トイレ |
多機能トイレ |
| キッチン |
- |
| 設備・サービス |
看板取付スペースあり、シャッター付き、換気口あり、排水設備あり 、水道メーター口径13mm
シャッター雨戸、プロパンガス、動力あり、エアコン |
| その他 |
- |
| 契約期間 |
2年 |
条件等 |
- |
| 引渡可能時期 |
相談 |
現況 |
空 |
| 仲介手数料 |
1ヶ月 |
適格請求書発行 |
不可
|
| 更新料 |
- |
物件番号 |
6987535241 |
| 情報公開日 |
2025年11月29日 |
次回更新予定日 |
2025年12月13日 |
| ケータイ用バーコード |
- スマートフォンでこの物件を見る
- スマートフォンからもこの物件をご覧になれます。
|
※「-」と表示されている項目については、情報提供会社にご確認ください。
| 周辺施設 |
一宮市立市民病院 |
| 距離 |
457m |
写真を見る |
| 周辺施設 |
ドラッグスギヤマ松降通店 |
| 距離 |
106m |
写真を見る |
| 周辺施設 |
私立研伸学園一宮研伸大学 |
| 距離 |
443m |
写真を見る |
| 周辺施設 |
一宮市立北部中学校 |
| 距離 |
438m |
写真を見る |
| 周辺施設 |
カネスエ宮西店 |
| 距離 |
396m |
写真を見る |
| 周辺施設 |
愛知県立一宮商業高校 |
| 距離 |
562m |
写真を見る |
| 周辺施設 |
一宮市立貴船小学校 |
| 距離 |
620m |
写真を見る |
| 周辺施設 |
一宮市立貴船保育園 |
| 距離 |
524m |
写真を見る |
ここから簡単にお問い合わせをすることができます。
(SSLでの暗号化での送信を希望されるお客さまは
こちら
よりお問い合わせください)
お問い合わせを行う前に
「個人情報の取り扱いについて」を必ずお読みください。
「個人情報の取り扱いについて」に同意いただいた場合は「上記にご同意の上 確認画面へ進む」のボタンをクリックしてください。
個人情報の取り扱いについて
皆さまが送付された個人情報はアットホーム(株)のサーバを経由し、お問い合わせ先の不動産会社にメールまたはFAXにて転送されるためアットホーム(株)にも保管されます。アットホーム(株)で保管された個人情報の取り扱いについては、【こちら】をご覧ください。
また、本画面でご記入いただいた個人情報は、お問い合わせ先の不動産会社でも保管します。 お問い合わせ先の不動産会社が保管する個人情報の取り扱いについては、不動産会社に直接お問い合わせください。
愛知県知事免許(3)第22918号 |
|---|
- 交通:
- 東海道本線/尾張一宮駅 徒歩15分 【バス】6分 一宮市民病院前・大雄会総合病院前 停歩5分
- 愛知県一宮市桜3丁目13-19
- TEL:
- 0586-73-0740
- FAX:
- 0586-72-5951
- 所属団体:
- (公社)愛知県宅地建物取引業協会会員(一社)全国賃貸不動産管理業協会会員東海不動産公正取引協議会加盟
取引態様:仲介  - 40404907
|
- スマートフォンで
この不動産会社を見る

|
- 提携サイト等より掲載されている物件情報につきましては、不動産会社詳細情報にリンクされていないものがあります。
- 物件に関するお問合せは、物件詳細ページの「情報提供会社」に表示されている不動産会社へ直接お願いいたします。
- 間取図は、現況を優先させていただきます。
- 映像は物件の一部を撮影したものです。物件の契約にあたっての最終判断はご自身の判断に基づいて行ってください。
- 仲介手数料について

アットホームは物件情報の適正化に努めております。
内容に誤りがある場合にはこちらへご連絡ください。