東京都練馬区桜台1丁目(桜台駅)の貸店舗:物件詳細
交通 所在地 |
駅徒歩 |
賃料 管理費等 |
敷金/保証金 礼金 |
使用部分面積 坪数/坪単価 |
物件種目 築年月 |
西武池袋線/桜台
東京都練馬区桜台1丁目
|
1分
|
38.5万円
なし
|
3ヶ月 / なし
1ヶ月
|
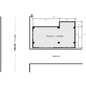
49.24m²
14.89坪/2.5848万円
|
貸店舗・事務所
1990年7月(築35年4ヶ月)
|
間取図
|
外観
|
その他の画像
|
交通 | 西武池袋線 桜台駅 徒歩1分 |
---|
その他の交通 | 西武池袋線 練馬駅 徒歩8分 都営大江戸線 練馬駅 徒歩9分 |
所在地 |
東京都練馬区桜台1丁目
|
物件種目 |
貸店舗・事務所 |
賃料 |
38.5万円 |
管理費等 |
なし |
敷金 / 保証金 |
3ヶ月 / なし |
礼金 |
1ヶ月 |
敷引 |
- |
坪単価 |
2.5848万円 |
保証金償却 |
- |
権利金 |
- |
造作譲渡 |
- |
その他一時金 |
- |
維持費等 |
- |
保険等 |
要 |
使用部分面積 |
49.24m² |
坪数 |
14.89坪 |
築年月 |
1990年7月(築35年4ヶ月)
|
階建 / 階 |
4階建 / 1階 |
駐車場 |
無 |
バイク置き場 |
無 |
駐輪場 |
- |
土地面積 |
- |
接道状況 |
西 8.0m 公道
・
南 4.0m 私道
・
二方道路
|
用途地域 |
商業地域 |
間取り |
- |
建物構造 |
鉄骨造 |
建物名・部屋番号 |
Sera.U 桜台駅前 1F |
リフォーム履歴 |
■外装:2025年6月 外壁、屋根 ■共用部の大規模修繕工事:2025年7月 オートロック・ゴミストッカー新設 ※実施年月は最も古い履歴を表示 |
リノベーション履歴 |
- |
特記事項 |
スケルトン、土曜日利用可、土日・祝日利用可、飲食店可、1フロア1テナント、角部屋、保証人不要 |
備考 |
賃貸保証等:加入要(Casa 初回保証料:総賃料の100% 年間保証料:総賃料の10% 決済手数料:330円/月)
管理形態/管理員の勤務形態:-/-
【内見可能】駅徒歩1分♪1階路面店、桜台通り沿いの好立地♪2方角地、視認性良好!
重飲食相談可!(旧店舗:ラーメン店)
2025年6月外装工事
※解約予告6ヶ月前
※火災保険は借主様の責任にてご加入ください。
※スケルトン渡し
|
エネルギー消費性能 |
- |
断熱性能 |
- |
目安光熱費 |
- |
バス・トイレ |
- |
キッチン |
- |
設備・サービス |
- |
その他 |
- |
契約期間 |
2年 |
条件等 |
- |
引渡可能時期 |
即時 |
現況 |
空 |
更新料 |
新賃料 1ヶ月 |
物件番号 |
6987567346 |
情報公開日 |
2025年9月5日 |
次回更新予定日 |
2025年10月31日 |
ケータイ用バーコード |
- スマートフォンでこの物件を見る
- スマートフォンからもこの物件をご覧になれます。
|
※「-」と表示されている項目については、情報提供会社にご確認ください。
周辺施設 |
チェリーチャイルド保育園分室 |
距離 |
50m |
周辺施設 |
ローソン練馬桜台一丁目店 |
距離 |
108m |
周辺施設 |
三菱UFJ銀行練馬駅前支店 |
距離 |
507m |
ここから簡単にお問い合わせをすることができます。
(SSLでの暗号化での送信を希望されるお客さまは
こちら
よりお問い合わせください)
お問い合わせを行う前に
「個人情報の取り扱いについて」を必ずお読みください。
「個人情報の取り扱いについて」に同意いただいた場合は「上記にご同意の上 確認画面へ進む」のボタンをクリックしてください。
個人情報の取り扱いについて
皆さまが送付された個人情報はアットホーム(株)のサーバを経由し、お問い合わせ先の不動産会社にメールまたはFAXにて転送されるためアットホーム(株)にも保管されます。アットホーム(株)で保管された個人情報の取り扱いについては、【こちら】をご覧ください。
また、本画面でご記入いただいた個人情報は、お問い合わせ先の不動産会社でも保管します。 お問い合わせ先の不動産会社が保管する個人情報の取り扱いについては、不動産会社に直接お問い合わせください。
東京都知事免許(2)第98415号 |
---|
- 交通:
- 東京メトロ丸ノ内線/南阿佐ケ谷駅 徒歩1分
- 東京都杉並区成田東5丁目39-10 畠山ビル4階
- TEL:
- 03-5347-4580
- FAX:
- 03-5347-4581
- 所属団体:
- (公社)全日本不動産協会会員(公社)首都圏不動産公正取引協議会加盟
取引態様:仲介  - 00105278
|
- スマートフォンで
この不動産会社を見る

|
- 提携サイト等より掲載されている物件情報につきましては、不動産会社詳細情報にリンクされていないものがあります。
- 物件に関するお問合せは、物件詳細ページの「情報提供会社」に表示されている不動産会社へ直接お願いいたします。
- 間取図は、現況を優先させていただきます。
- 映像は物件の一部を撮影したものです。物件の契約にあたっての最終判断はご自身の判断に基づいて行ってください。
- 仲介手数料について

アットホームは物件情報の適正化に努めております。
内容に誤りがある場合にはこちらへご連絡ください。