愛知県岡崎市羽根町字北ノ郷(岡崎駅)の貸店舗:物件詳細
交通 所在地 |
駅徒歩 |
賃料 管理費等 |
敷金/保証金 礼金 |
使用部分面積 坪数/坪単価 |
物件種目 築年月 |
|
東海道本線/岡崎
愛知県岡崎市羽根町字北ノ郷
|
9分
|
23.1万円
-
|
なし / 3ヶ月
1ヶ月
|
187.30m²
56.65坪/0.4078万円
|
貸店舗・事務所(一括)
2005年1月(築21年)
|
|
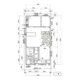
間取図
|
|
<
その他の画像
>
|
| 交通 | 東海道本線 岡崎駅 徒歩9分 |
|---|
| その他の交通 | 愛知環状鉄道 岡崎駅 徒歩8分 愛知環状鉄道 六名駅 徒歩22分 |
| 所在地 |
愛知県岡崎市羽根町字北ノ郷
|
| 物件種目 |
貸店舗・事務所(一括) |
| 賃料 |
23.1万円 |
管理費等 |
- |
| 敷金 / 保証金 |
なし / 3ヶ月 |
礼金 |
1ヶ月 |
| 敷引 |
- |
坪単価 |
0.4078万円 |
| 保証金償却 |
- |
権利金 |
- |
| 造作譲渡 |
- |
その他一時金 |
- |
| 維持費等 |
- |
保険等 |
要 借家人賠償付火災 |
| 使用部分面積 |
187.30m² |
坪数 |
56.65坪 |
| 築年月 |
2005年1月(築21年)
|
階建 / 階 |
3階建 |
| 駐車場 |
有 5,000円/月(空き2台) 従業員駐車場として2台ご用意が御座います |
バイク置き場 |
- |
| 駐輪場 |
- |
土地面積 |
- |
| 接道状況 |
-
|
用途地域 |
- |
| 間取り |
- |
建物構造 |
鉄骨造 |
| アピールポイント |
【株式会社雁正】管理物件 岡崎駅付近の貴重な物件出ました!!業種等はお問い合わせください |
| 建物名・部屋番号 |
岡崎市羽根町北ノ郷 店舗 |
| リフォーム履歴 |
- |
| リノベーション履歴 |
- |
| 特記事項 |
土曜日利用可、土日・祝日利用可、飲食店可 |
| 備考 |
賃貸保証等:加入要(総賃料の約1ヶ月分)
管理形態/管理員の勤務形態:-/-
建物内エレベーター有
残置物は撤去予定です。
業種等お問い合わせください
|
| エネルギー消費性能 |
- |
| 断熱性能 |
- |
| 目安光熱費 |
- |
| バス・トイレ |
- |
| キッチン |
- |
| 設備・サービス |
エアコン2台以上、給湯 |
| その他 |
エレベーター |
| 契約期間 |
2年 |
条件等 |
- |
| 引渡可能時期 |
相談 |
現況 |
空 |
| 仲介手数料 |
1.1ヶ月 |
|
|
| 更新料 |
- |
物件番号 |
6987602125 |
| 情報公開日 |
2025年10月14日 |
次回更新予定日 |
2025年12月11日 |
| ケータイ用バーコード |
- スマートフォンでこの物件を見る
- スマートフォンからもこの物件をご覧になれます。
|
※「-」と表示されている項目については、情報提供会社にご確認ください。
ここから簡単にお問い合わせをすることができます。
(SSLでの暗号化での送信を希望されるお客さまは
こちら
よりお問い合わせください)
お問い合わせを行う前に
「個人情報の取り扱いについて」を必ずお読みください。
「個人情報の取り扱いについて」に同意いただいた場合は「上記にご同意の上 確認画面へ進む」のボタンをクリックしてください。
個人情報の取り扱いについて
皆さまが送付された個人情報はアットホーム(株)のサーバを経由し、お問い合わせ先の不動産会社にメールまたはFAXにて転送されるためアットホーム(株)にも保管されます。アットホーム(株)で保管された個人情報の取り扱いについては、【こちら】をご覧ください。
また、本画面でご記入いただいた個人情報は、お問い合わせ先の不動産会社でも保管します。 お問い合わせ先の不動産会社が保管する個人情報の取り扱いについては、不動産会社に直接お問い合わせください。
愛知県知事免許(1)第25022号 |
|---|
- 交通:
- 名鉄名古屋本線/東岡崎駅
- 愛知県岡崎市明大寺町字山畔18番地1
- TEL:
- 0564-64-5430
- FAX:
- 0564-73-4473
- 所属団体:
- (公社)愛知県宅地建物取引業協会会員東海不動産公正取引協議会加盟
取引態様:仲介  - 40409846
|
- スマートフォンで
この不動産会社を見る

|
- 提携サイト等より掲載されている物件情報につきましては、不動産会社詳細情報にリンクされていないものがあります。
- 物件に関するお問合せは、物件詳細ページの「情報提供会社」に表示されている不動産会社へ直接お願いいたします。
- 間取図は、現況を優先させていただきます。
- 映像は物件の一部を撮影したものです。物件の契約にあたっての最終判断はご自身の判断に基づいて行ってください。
- 仲介手数料について

アットホームは物件情報の適正化に努めております。
内容に誤りがある場合にはこちらへご連絡ください。