埼玉県さいたま市大宮区大成町1丁目(大宮駅)の貸店舗:物件詳細
交通 所在地 |
駅徒歩 |
賃料 管理費等 |
敷金/保証金 礼金 |
使用部分面積 坪数/坪単価 |
物件種目 築年月 |
|
JR埼京線/大宮
埼玉県さいたま市大宮区大成町1丁目
|
11分
|
55万円
50,000円
|
なし / 300万円
1ヶ月
|
164.75m²
49.83坪/1.1037万円
|
貸店舗・事務所
1992年9月(築33年4ヶ月)
|
|
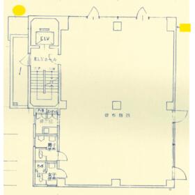
間取図
|
|
その他の画像
|
| 交通 | JR埼京線 大宮駅 徒歩11分 |
| 所在地 |
埼玉県さいたま市大宮区大成町1丁目
|
| 物件種目 |
貸店舗・事務所 |
| 賃料 |
55万円 |
管理費等 |
50,000円 |
| 敷金 / 保証金 |
なし / 300万円 |
礼金 |
1ヶ月 |
| 敷引 |
- |
坪単価 |
1.1037万円 |
| 保証金償却 |
- |
権利金 |
- |
| 造作譲渡 |
- |
その他一時金 |
- |
| 維持費等 |
- |
保険等 |
要 2年 宅建ファミリー共済 |
| 使用部分面積 |
164.75m² |
坪数 |
49.83坪 |
| 築年月 |
1992年9月(築33年4ヶ月)
|
階建 / 階 |
3階建 / 2階 |
| 駐車場 |
有 30,000円/月 |
バイク置き場 |
有 |
| 駐輪場 |
有 |
土地面積 |
- |
| 接道状況 |
-
|
用途地域 |
- |
| 間取り |
- |
建物構造 |
RC |
| 建物名・部屋番号 |
志村ビル |
| リフォーム履歴 |
- |
| リノベーション履歴 |
- |
| 特記事項 |
- |
| 備考 |
賃貸保証等:加入要(日本セーフティー)
管理形態/管理員の勤務形態:-/-
大宮駅徒歩11分テナント、事務所大歓迎連絡お待ちしております。
|
| エネルギー消費性能 |
- |
| 断熱性能 |
- |
| 目安光熱費 |
- |
| バス・トイレ |
トイレ2ヶ所、専有部分に男女別トイレあり |
| キッチン |
- |
| 設備・サービス |
看板取付スペースあり
エアコン2台以上、エアコン |
| その他 |
エレベーター |
| 契約期間 |
2年 |
条件等 |
- |
| 引渡可能時期 |
即時 |
現況 |
空 |
| 更新料 |
新賃料 1ヶ月 |
物件番号 |
6987615655 |
| 情報公開日 |
2025年9月10日 |
次回更新予定日 |
2025年12月19日 |
| ケータイ用バーコード |
- スマートフォンでこの物件を見る
- スマートフォンからもこの物件をご覧になれます。
|
※「-」と表示されている項目については、情報提供会社にご確認ください。
ここから簡単にお問い合わせをすることができます。
(SSLでの暗号化での送信を希望されるお客さまは
こちら
よりお問い合わせください)
お問い合わせを行う前に
「個人情報の取り扱いについて」を必ずお読みください。
「個人情報の取り扱いについて」に同意いただいた場合は「上記にご同意の上 確認画面へ進む」のボタンをクリックしてください。
個人情報の取り扱いについて
皆さまが送付された個人情報はアットホーム(株)のサーバを経由し、お問い合わせ先の不動産会社にメールまたはFAXにて転送されるためアットホーム(株)にも保管されます。アットホーム(株)で保管された個人情報の取り扱いについては、【こちら】をご覧ください。
また、本画面でご記入いただいた個人情報は、お問い合わせ先の不動産会社でも保管します。 お問い合わせ先の不動産会社が保管する個人情報の取り扱いについては、不動産会社に直接お問い合わせください。
埼玉県知事免許(4)第21691号 |
|---|
- 交通:
- 埼玉高速鉄道/南鳩ヶ谷駅 徒歩5分
- 埼玉県川口市南鳩ヶ谷4丁目15番18号
- TEL:
- 048-286-8088
- FAX:
- 048-286-7077
- 所属団体:
- (公社)埼玉県宅地建物取引業協会会員(公社)首都圏不動産公正取引協議会加盟
取引態様:仲介  - 00102440
|
- スマートフォンで
この不動産会社を見る

|
- 提携サイト等より掲載されている物件情報につきましては、不動産会社詳細情報にリンクされていないものがあります。
- 物件に関するお問合せは、物件詳細ページの「情報提供会社」に表示されている不動産会社へ直接お願いいたします。
- 間取図は、現況を優先させていただきます。
- 映像は物件の一部を撮影したものです。物件の契約にあたっての最終判断はご自身の判断に基づいて行ってください。
- 仲介手数料について

アットホームは物件情報の適正化に努めております。
内容に誤りがある場合にはこちらへご連絡ください。