愛知県名古屋市中区大須3丁目(矢場町駅)の貸店舗:物件詳細
交通 所在地 |
駅徒歩 |
賃料 管理費等 |
敷金/保証金 礼金 |
使用部分面積 坪数/坪単価 |
物件種目 築年月 |
名古屋市名城線/矢場町
愛知県名古屋市中区大須3丁目
|
6分
|
71.2961万円
210,210円
|
なし / 10ヶ月
なし
|
210.57m²
63.69坪/1.1193万円
|
貸店舗
2007年9月(築18年2ヶ月)
|
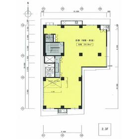
間取図
|
|
その他の画像
|
交通 | 名古屋市名城線 矢場町駅 徒歩6分 |
---|
その他の交通 | 名古屋市名城線 上前津駅 徒歩8分 名古屋市鶴舞線 上前津駅 徒歩7分 |
所在地 |
愛知県名古屋市中区大須3丁目
|
物件種目 |
貸店舗 |
賃料 |
71.2961万円 |
管理費等 |
210,210円 |
敷金 / 保証金 |
なし / 10ヶ月 |
礼金 |
なし |
敷引 |
- |
坪単価 |
1.1193万円 |
保証金償却 |
- |
権利金 |
- |
造作譲渡 |
- |
その他一時金 |
- |
維持費等 |
- |
保険等 |
- |
使用部分面積 |
210.57m² |
坪数 |
63.69坪 |
築年月 |
2007年9月(築18年2ヶ月)
|
階建 / 階 |
地上13階地下1階建 / 2階 |
駐車場 |
- |
バイク置き場 |
- |
駐輪場 |
- |
土地面積 |
- |
接道状況 |
-
|
用途地域 |
- |
間取り |
- |
建物構造 |
SRC |
アピールポイント |
お問合せやご質問は、052-959-2888(株式会社オフィッコス)
原則30分以内に確認をして資料をお送りさせていただきます。
お気軽にお問合せくださいませ。 |
建物名・部屋番号 |
ミュプレ矢場町 2F |
リフォーム履歴 |
- |
リノベーション履歴 |
- |
特記事項 |
24時間利用可、土曜日利用可、土日・祝日利用可、24時間セキュリティー、天井高2.5M以上、IT重説対応物件 |
備考 |
管理形態/管理員の勤務形態:-/-
IT重説対応物件
|
エネルギー消費性能 |
- |
断熱性能 |
- |
目安光熱費 |
- |
バス・トイレ |
- |
キッチン |
- |
設備・サービス |
個別空調、オートロック、エアコン、暖房、冷房、インターネット対応、光ファイバー |
その他 |
エレベーター |
契約期間 |
2年 |
条件等 |
- |
引渡可能時期 |
指定有り2025年9月15日 |
現況 |
使用中 |
更新料 |
- |
物件番号 |
6987615909 |
情報公開日 |
2025年9月10日 |
次回更新予定日 |
2025年10月22日 |
ケータイ用バーコード |
- スマートフォンでこの物件を見る
- スマートフォンからもこの物件をご覧になれます。
|
※「-」と表示されている項目については、情報提供会社にご確認ください。
周辺施設 |
ファミリーマート金山五丁目店 |
距離 |
264m |
周辺施設 |
PARKS PARK名古屋市中区平和2丁目第2 |
距離 |
196m |
周辺施設 |
セブンイレブン名古屋金山5丁目店 |
距離 |
299m |
ここから簡単にお問い合わせをすることができます。
(SSLでの暗号化での送信を希望されるお客さまは
こちら
よりお問い合わせください)
お問い合わせを行う前に
「個人情報の取り扱いについて」を必ずお読みください。
「個人情報の取り扱いについて」に同意いただいた場合は「上記にご同意の上 確認画面へ進む」のボタンをクリックしてください。
個人情報の取り扱いについて
皆さまが送付された個人情報はアットホーム(株)のサーバを経由し、お問い合わせ先の不動産会社にメールまたはFAXにて転送されるためアットホーム(株)にも保管されます。アットホーム(株)で保管された個人情報の取り扱いについては、【こちら】をご覧ください。
また、本画面でご記入いただいた個人情報は、お問い合わせ先の不動産会社でも保管します。 お問い合わせ先の不動産会社が保管する個人情報の取り扱いについては、不動産会社に直接お問い合わせください。
愛知県知事免許(3)第22161号 |
---|
- 交通:
- 名古屋市名城線/久屋大通駅 徒歩2分
- 愛知県名古屋市中区丸の内3丁目18-1 三晃丸の内ビル7F
- TEL:
- 052-959-2888
- FAX:
- 052-959-2890
- 所属団体:
- (公社)全日本不動産協会会員東海不動産公正取引協議会加盟
取引態様:仲介  - 40403414
|
- スマートフォンで
この不動産会社を見る

|
- 提携サイト等より掲載されている物件情報につきましては、不動産会社詳細情報にリンクされていないものがあります。
- 物件に関するお問合せは、物件詳細ページの「情報提供会社」に表示されている不動産会社へ直接お願いいたします。
- 間取図は、現況を優先させていただきます。
- 映像は物件の一部を撮影したものです。物件の契約にあたっての最終判断はご自身の判断に基づいて行ってください。
- 仲介手数料について

アットホームは物件情報の適正化に努めております。
内容に誤りがある場合にはこちらへご連絡ください。