栃木県宇都宮市峰4丁目(陽東3丁目駅)の貸店舗:物件詳細
交通 所在地 |
駅徒歩 |
賃料 管理費等 |
敷金/保証金 礼金 |
使用部分面積 坪数/坪単価 |
物件種目 築年月 |
|
宇都宮芳賀ライトレール線/陽東3丁目
栃木県宇都宮市峰4丁目
|
10分
|
19.1万円
なし
|
2ヶ月 / なし
2ヶ月
|
52.50m²
15.88坪/1.2027万円
|
貸店舗・事務所
2026年3月(新築)
|
| 交通 | 宇都宮芳賀ライトレール線 陽東3丁目駅 徒歩10分 |
| 所在地 |
栃木県宇都宮市峰4丁目
|
| 物件種目 |
貸店舗・事務所 |
| 賃料 |
19.1万円 |
管理費等 |
なし |
| 敷金 / 保証金 |
2ヶ月 / なし |
礼金 |
2ヶ月 |
| 敷引 |
- |
坪単価 |
1.2027万円 |
| 保証金償却 |
- |
権利金 |
- |
| 造作譲渡 |
- |
その他一時金 |
- |
| 維持費等 |
- |
保険等 |
要 2年 入居者賠償 |
| 使用部分面積 |
52.50m² |
坪数 |
15.88坪 |
| 築年月 |
2026年3月(新築)
|
階建 / 階 |
5階建 / 1階 |
| 駐車場 |
有 5,500円/月 |
バイク置き場 |
有 2,500円/月 |
| 駐輪場 |
有 無料 |
土地面積 |
- |
| 接道状況 |
東 25.0m 公道
・
南 6.0m 公道
・
二方道路
|
用途地域 |
1種住居 |
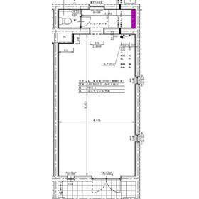
| 間取り |
- |
建物構造 |
RC |
| アピールポイント |
JR 宇都宮駅車10分2.7km/巡回管理/北海道仕様の高気密・高断熱住戸(床・壁)、エアコン1台付(2台目設置可)、給湯器1台付、天井照明付き、温水洗浄便座付トイレ付(手洗いキャビネット付)、
固定電話契約可、敷地内バイク駐車場あり(1台月額2500円)、敷地内駐輪場あり(無料)、南東側前面道路拡幅予定あり(歩道あり4車線へ)、 |
| 建物名・部屋番号 |
リュクス ドゥ ミネ -LUXE DE MINE- 101 |
| リフォーム履歴 |
- |
| リノベーション履歴 |
- |
| 特記事項 |
土曜日利用可、土日・祝日利用可、角部屋、天井高2.5M以上 |
| 備考 |
賃貸保証等:利用可(USENテナント家賃保証:初回保証料100%)
管理形態/管理員の勤務形態:-/-
主要採光面:南東向き
|
| エネルギー消費性能 |
- |
| 断熱性能 |
- |
| 目安光熱費 |
- |
| バス・トイレ |
専有部分にトイレあり、多機能トイレ |
| キッチン |
- |
| 設備・サービス |
看板取付スペースあり、天井高3.2m、建物間口5m、電気容量(電灯)60KVA
収納スペース、給湯、エアコン、インターネット対応 |
| その他 |
- |
| 契約期間 |
6年 |
条件等 |
- |
| 引渡可能時期 |
2026年3月上旬予定 |
現況 |
未完成 |
| 仲介手数料 |
1.1ヶ月 |
|
|
| 更新料 |
新賃料 1ヶ月 |
物件番号 |
6987624332 |
| 情報公開日 |
2025年10月27日 |
次回更新予定日 |
2025年11月10日 |
| ケータイ用バーコード |
- スマートフォンでこの物件を見る
- スマートフォンからもこの物件をご覧になれます。
|
※「-」と表示されている項目については、情報提供会社にご確認ください。
| 周辺施設 |
セブンイレブン宇都宮東峰町店 |
| 距離 |
607m |
| 周辺施設 |
ローソン宇都宮石井町内野店 |
| 距離 |
798m |
| 周辺施設 |
一般社団法人巨樹の会新宇都宮リハビリテーション病院 |
| 距離 |
1060m |
ここから簡単にお問い合わせをすることができます。
(SSLでの暗号化での送信を希望されるお客さまは
こちら
よりお問い合わせください)
お問い合わせを行う前に
「個人情報の取り扱いについて」を必ずお読みください。
「個人情報の取り扱いについて」に同意いただいた場合は「上記にご同意の上 確認画面へ進む」のボタンをクリックしてください。
個人情報の取り扱いについて
皆さまが送付された個人情報はアットホーム(株)のサーバを経由し、お問い合わせ先の不動産会社にメールまたはFAXにて転送されるためアットホーム(株)にも保管されます。アットホーム(株)で保管された個人情報の取り扱いについては、【こちら】をご覧ください。
また、本画面でご記入いただいた個人情報は、お問い合わせ先の不動産会社でも保管します。 お問い合わせ先の不動産会社が保管する個人情報の取り扱いについては、不動産会社に直接お問い合わせください。
栃木県知事免許(5)第4351号 |
|---|
- 交通:
- 宇都宮芳賀ライトレール線/陽東3丁目駅 徒歩5分
- 栃木県宇都宮市陽東3丁目26-4
- TEL:
- 028-664-0915
- FAX:
- 028-664-0948
- 所属団体:
- (公社)栃木県宅地建物取引業協会会員(公社)首都圏不動産公正取引協議会加盟
取引態様:仲介  - 00102756
|
- スマートフォンで
この不動産会社を見る

|
- 提携サイト等より掲載されている物件情報につきましては、不動産会社詳細情報にリンクされていないものがあります。
- 物件に関するお問合せは、物件詳細ページの「情報提供会社」に表示されている不動産会社へ直接お願いいたします。
- 間取図は、現況を優先させていただきます。
- 映像は物件の一部を撮影したものです。物件の契約にあたっての最終判断はご自身の判断に基づいて行ってください。
- 仲介手数料について

アットホームは物件情報の適正化に努めております。
内容に誤りがある場合にはこちらへご連絡ください。