福岡県糟屋郡志免町別府3丁目(福岡空港駅)の貸店舗:物件詳細
交通 所在地 |
駅徒歩 |
賃料 管理費等 |
敷金/保証金 礼金 |
使用部分面積 坪数/坪単価 |
物件種目 築年月 |
|
地下鉄空港線/福岡空港
福岡県糟屋郡志免町別府3丁目
|
19分
|
12.1万円
-
|
1ヶ月 / なし
4ヶ月
|
51.20m²
15.48坪/0.7813万円
|
貸店舗・事務所
2006年12月(築19年4ヶ月)
|
|
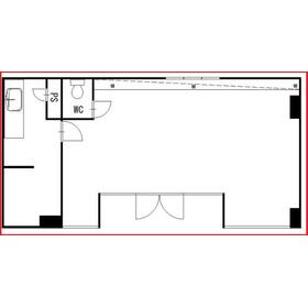
間取図
|
外観
|
その他の画像
|
| 交通 | 地下鉄空港線 福岡空港駅 徒歩19分 |
|---|
| その他の交通 | JR篠栗線 柚須駅 徒歩23分 JR篠栗線 原町駅 徒歩26分 |
| 所在地 |
福岡県糟屋郡志免町別府3丁目
|
| 物件種目 |
貸店舗・事務所 |
| 賃料 |
12.1万円 |
管理費等 |
- |
| 敷金 / 保証金 |
1ヶ月 / なし |
礼金 |
4ヶ月 |
| 敷引 |
- |
坪単価 |
0.7813万円 |
| 保証金償却 |
- |
権利金 |
- |
| 造作譲渡 |
- |
その他一時金 |
- |
| 維持費等 |
Rサポート:1,100円/月 |
保険等 |
要 テナント火災 |
| 使用部分面積 |
51.20m² |
坪数 |
15.48坪 |
| 築年月 |
2006年12月(築19年4ヶ月)
|
階建 / 階 |
3階建 / 1階 |
| 駐車場 |
有 6,600円/月(空き1台) |
バイク置き場 |
- |
| 駐輪場 |
- |
土地面積 |
- |
| 接道状況 |
-
|
用途地域 |
- |
| 間取り |
- |
建物構造 |
RC |
| アピールポイント |
不動産の事ならお任せください!
物件はもちろん、周辺環境やお店の情報などなんでもお尋ねください。
スタッフが親身におこたえします!
地域とともに!事務所・店舗・倉庫・居抜き物件 テナント探しならプランニング・ジョイ不動産へおまかせください!
新鮮で豊富な物件情報と丁寧な応対でお客様をお迎えしています。 |
| 建物名・部屋番号 |
ステイブル空港東 1階 |
| リフォーム履歴 |
- |
| リノベーション履歴 |
- |
| 特記事項 |
飲食店不可、1フロア1テナント |
| 備考 |
賃貸保証等:加入要(各種賃貸保証会社)
管理形態/管理員の勤務形態:-/-
サービス設置品:エアコン・照明器具・キッチン
|
| エネルギー消費性能 |
- |
| 断熱性能 |
- |
| 目安光熱費 |
- |
| バス・トイレ |
専有部分にトイレあり |
| キッチン |
- |
| 設備・サービス |
エアコン |
| その他 |
- |
| 契約期間 |
2年 |
条件等 |
- |
| 引渡可能時期 |
相談 |
現況 |
居住中 |
| 更新料 |
22,000円 |
物件番号 |
6987633873 |
| 情報公開日 |
2025年9月11日 |
次回更新予定日 |
2026年4月6日 |
| ケータイ用バーコード |
- スマートフォンでこの物件を見る
- スマートフォンからもこの物件をご覧になれます。
|
※「-」と表示されている項目については、情報提供会社にご確認ください。
| 周辺施設 |
スーパーセンタートライアル福岡空港店 |
| 距離 |
204m |
| 周辺施設 |
アポロステーションセルフ福岡空港東SS |
| 距離 |
203m |
| 周辺施設 |
ダイソービッグ福岡空港東店 |
| 距離 |
303m |
| 周辺施設 |
ガスト福岡志免店(から好し取扱店) |
| 距離 |
437m |
ここから簡単にお問い合わせをすることができます。
(SSLでの暗号化での送信を希望されるお客さまは
こちら
よりお問い合わせください)
お問い合わせを行う前に
「個人情報の取り扱いについて」を必ずお読みください。
「個人情報の取り扱いについて」に同意いただいた場合は「上記にご同意の上 確認画面へ進む」のボタンをクリックしてください。
個人情報の取り扱いについて
皆さまが送付された個人情報はアットホーム(株)のサーバを経由し、お問い合わせ先の不動産会社にメールまたはFAXにて転送されるためアットホーム(株)にも保管されます。アットホーム(株)で保管された個人情報の取り扱いについては、【こちら】をご覧ください。
また、本画面でご記入いただいた個人情報は、お問い合わせ先の不動産会社でも保管します。 お問い合わせ先の不動産会社が保管する個人情報の取り扱いについては、不動産会社に直接お問い合わせください。
福岡県知事免許(2)第18516号 |
|---|
- 交通:
- 西鉄天神大牟田線/高宮駅 徒歩21分 【バス】10分 宮の下 停歩1分
- 福岡県福岡市南区若久1丁目23-17-1-1階 若久ビル1階
- TEL:
- 092-710-2572
- FAX:
- 092-710-2573
- 所属団体:
- (公社)福岡県宅地建物取引業協会会員(一社)九州不動産公正取引協議会加盟
取引態様:仲介  - 80503942
|
- スマートフォンで
この不動産会社を見る

|
- 提携サイト等より掲載されている物件情報につきましては、不動産会社詳細情報にリンクされていないものがあります。
- 物件に関するお問合せは、物件詳細ページの「情報提供会社」に表示されている不動産会社へ直接お願いいたします。
- 間取図は、現況を優先させていただきます。
- 映像は物件の一部を撮影したものです。物件の契約にあたっての最終判断はご自身の判断に基づいて行ってください。
- 仲介手数料について

アットホームは物件情報の適正化に努めております。
内容に誤りがある場合にはこちらへご連絡ください。