熊本県熊本市北区武蔵ケ丘1丁目(武蔵塚駅)の貸店舗:物件詳細
交通 所在地 |
駅徒歩 |
賃料 管理費等 |
敷金/保証金 礼金 |
使用部分面積 坪数/坪単価 |
物件種目 築年月 |
|
JR豊肥本線/武蔵塚
熊本県熊本市北区武蔵ケ丘1丁目
|
1分
|
27.5万円
-
|
3ヶ月 / なし
なし
|
68.00m²
20.56坪/1.337万円
|
貸店舗・事務所
2025年12月(新築)
|
|
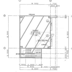
間取図
|
|
その他の画像
|
| 交通 | JR豊肥本線 武蔵塚駅 徒歩1分 |
|---|
| その他の交通 | JR豊肥本線 光の森駅 徒歩23分 |
| 所在地 |
熊本県熊本市北区武蔵ケ丘1丁目
|
| 物件種目 |
貸店舗・事務所 |
| 賃料 |
27.5万円 |
管理費等 |
- |
| 敷金 / 保証金 |
3ヶ月 / なし |
礼金 |
なし |
| 敷引 |
- |
坪単価 |
1.337万円 |
| 保証金償却 |
- |
権利金 |
- |
| 造作譲渡 |
- |
その他一時金 |
- |
| 維持費等 |
- |
保険等 |
要 |
| 使用部分面積 |
68.00m² |
坪数 |
20.56坪 |
| 築年月 |
2025年12月(新築)
|
階建 / 階 |
3階建 / 1階 |
| 駐車場 |
有 無料(空き2台) 駐車場2台分無料。 |
バイク置き場 |
- |
| 駐輪場 |
- |
土地面積 |
- |
| 接道状況 |
-
|
用途地域 |
- |
| 間取り |
- |
建物構造 |
鉄骨造 |
| 建物名・部屋番号 |
SQURARE武蔵塚駅前 |
| リフォーム履歴 |
- |
| リノベーション履歴 |
- |
| 特記事項 |
飲食店可 |
| 備考 |
賃貸保証等:加入要(オリコフォレントインシュア 初回保証料賃料総額の100% 月額保証料賃料総額の1%)
管理形態/管理員の勤務形態:-/-
主要採光面:北東向き
1階、2階、3階共通の**共用通路の電灯(暗くなったら点灯し、0時に消灯)および階段部分の電灯(24時間点灯)**にかかる電気料金は、1階ご契約者様のご負担となります。
|
| エネルギー消費性能 |
- |
| 断熱性能 |
- |
| 目安光熱費 |
- |
| バス・トイレ |
- |
| キッチン |
- |
| 設備・サービス |
- |
| その他 |
- |
| 契約期間 |
2年 |
条件等 |
- |
| 引渡可能時期 |
即時 |
現況 |
完成済 |
| 更新料 |
16,500円 |
物件番号 |
6987652240 |
| 情報公開日 |
2025年9月13日 |
次回更新予定日 |
2025年12月24日 |
| ケータイ用バーコード |
- スマートフォンでこの物件を見る
- スマートフォンからもこの物件をご覧になれます。
|
※「-」と表示されている項目については、情報提供会社にご確認ください。
| 周辺施設 |
ファミリーマートJR武蔵塚駅前店 |
| 距離 |
84m |
| 周辺施設 |
ジョリーパスタ熊本武蔵ケ丘店 |
| 距離 |
445m |
ここから簡単にお問い合わせをすることができます。
(SSLでの暗号化での送信を希望されるお客さまは
こちら
よりお問い合わせください)
お問い合わせを行う前に
「個人情報の取り扱いについて」を必ずお読みください。
「個人情報の取り扱いについて」に同意いただいた場合は「上記にご同意の上 確認画面へ進む」のボタンをクリックしてください。
個人情報の取り扱いについて
皆さまが送付された個人情報はアットホーム(株)のサーバを経由し、お問い合わせ先の不動産会社にメールまたはFAXにて転送されるためアットホーム(株)にも保管されます。アットホーム(株)で保管された個人情報の取り扱いについては、【こちら】をご覧ください。
また、本画面でご記入いただいた個人情報は、お問い合わせ先の不動産会社でも保管します。 お問い合わせ先の不動産会社が保管する個人情報の取り扱いについては、不動産会社に直接お問い合わせください。
熊本県知事免許(8)第3227号 |
|---|
- 交通:
- JR豊肥本線/原水駅 徒歩20分
- 熊本県菊池郡菊陽町大字津久礼158-19
- TEL:
- 0120-345-351
- 所属団体:
- (公社)熊本県宅地建物取引業協会会員(一社)九州不動産公正取引協議会加盟
取引態様:仲介  - 80501391
|
- スマートフォンで
この不動産会社を見る

|
- 提携サイト等より掲載されている物件情報につきましては、不動産会社詳細情報にリンクされていないものがあります。
- 物件に関するお問合せは、物件詳細ページの「情報提供会社」に表示されている不動産会社へ直接お願いいたします。
- 間取図は、現況を優先させていただきます。
- 映像は物件の一部を撮影したものです。物件の契約にあたっての最終判断はご自身の判断に基づいて行ってください。
- 仲介手数料について

アットホームは物件情報の適正化に努めております。
内容に誤りがある場合にはこちらへご連絡ください。