石川県金沢市西念3丁目(上諸江駅)の貸店舗:物件詳細
交通 所在地 |
駅徒歩 |
賃料 管理費等 |
敷金/保証金 礼金 |
使用部分面積 坪数/坪単価 |
物件種目 築年月 |
|
北陸鉄道浅野川線/上諸江
石川県金沢市西念3丁目
|
15分
|
13.2万円
16,500円
|
36万円 / なし
26.4万円
|
41.83m²
12.65坪/1.0432万円
|
貸店舗・事務所
2022年7月(築3年8ヶ月)
|
|
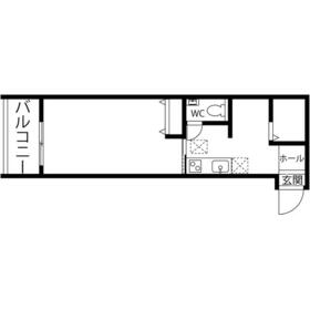
間取図
|
外観
|
その他の画像
|
| 交通 | 北陸鉄道浅野川線 上諸江駅 徒歩15分 |
| 所在地 |
石川県金沢市西念3丁目
|
| 物件種目 |
貸店舗・事務所 |
| 賃料 |
13.2万円 |
管理費等 |
16,500円 |
| 敷金 / 保証金 |
36万円 / なし |
礼金 |
26.4万円 |
| 敷引 |
- |
坪単価 |
1.0432万円 |
| 保証金償却 |
- |
権利金 |
- |
| 造作譲渡 |
- |
その他一時金 |
- |
| 維持費等 |
- |
保険等 |
要 借家人賠償付火災 |
| 使用部分面積 |
41.83m² |
坪数 |
12.65坪 |
| 築年月 |
2022年7月(築3年8ヶ月)
|
階建 / 階 |
3階建 / 2階 |
| 駐車場 |
有 15,400円/月(空き2台) 2台で15,400円 |
バイク置き場 |
- |
| 駐輪場 |
- |
土地面積 |
- |
| 接道状況 |
-
|
用途地域 |
1種住居 |
| 間取り |
- |
建物構造 |
木造 |
| アピールポイント |
8号線へもアクセスの良い駅西エリアの物件。近くにクスリのアオキさんもあり便利。光熱費も共益費に含まれているので、経費計算もしやすいですね。1Fはコンクリートで仕上げており、とても素敵な外観の築3年の物件です。内廊下なので清潔感もあり、予約制エステサロン等にも向いてますよ。駐車場も2台契約可能です。 |
| 建物名・部屋番号 |
西念3丁目Nテナント 2F一部 |
| リフォーム履歴 |
- |
| リノベーション履歴 |
- |
| 特記事項 |
飲食店不可、角部屋 |
| 備考 |
賃貸保証等:加入要(初回保証料月額総額100% 1年更新10% 口座振替手数料330円)
管理形態/管理員の勤務形態:-/-
共益費に水道・電気代・ゴミ処理費が含まれております。室内のクロスや床はこれからの仕上げとなります。室内の照明器具の設置は借主様のご負担となります。
|
| エネルギー消費性能 |
- |
| 断熱性能 |
- |
| 目安光熱費 |
- |
| バス・トイレ |
専有部分にトイレあり |
| キッチン |
- |
| 設備・サービス |
収納スペース、オートロック、プロパンガス、エアコン |
| その他 |
- |
| 契約期間 |
2年 |
条件等 |
- |
| 引渡可能時期 |
相談 |
現況 |
空 |
| 仲介手数料 |
1ヶ月 |
適格請求書発行 |
不可
|
| 更新料 |
- |
物件番号 |
6987655710 |
| 情報公開日 |
2025年9月20日 |
次回更新予定日 |
2026年2月20日 |
| ケータイ用バーコード |
- スマートフォンでこの物件を見る
- スマートフォンからもこの物件をご覧になれます。
|
※「-」と表示されている項目については、情報提供会社にご確認ください。
ここから簡単にお問い合わせをすることができます。
(SSLでの暗号化での送信を希望されるお客さまは
こちら
よりお問い合わせください)
お問い合わせを行う前に
「個人情報の取り扱いについて」を必ずお読みください。
「個人情報の取り扱いについて」に同意いただいた場合は「上記にご同意の上 確認画面へ進む」のボタンをクリックしてください。
個人情報の取り扱いについて
皆さまが送付された個人情報はアットホーム(株)のサーバを経由し、お問い合わせ先の不動産会社にメールまたはFAXにて転送されるためアットホーム(株)にも保管されます。アットホーム(株)で保管された個人情報の取り扱いについては、【こちら】をご覧ください。
また、本画面でご記入いただいた個人情報は、お問い合わせ先の不動産会社でも保管します。 お問い合わせ先の不動産会社が保管する個人情報の取り扱いについては、不動産会社に直接お問い合わせください。
石川県知事免許(2)第4174号 |
|---|
- 交通:
- IRいしかわ鉄道/金沢駅 【バス】20分 県庁前 停歩8分
- 石川県金沢市藤江北4丁目260
- TEL:
- 076-255-2561
- FAX:
- 076-255-2571
- 所属団体:
- (公社)石川県宅地建物取引業協会会員北陸不動産公正取引協議会加盟
取引態様:仲介  - 40406569
|
- スマートフォンで
この不動産会社を見る

|
- 提携サイト等より掲載されている物件情報につきましては、不動産会社詳細情報にリンクされていないものがあります。
- 物件に関するお問合せは、物件詳細ページの「情報提供会社」に表示されている不動産会社へ直接お願いいたします。
- 間取図は、現況を優先させていただきます。
- 映像は物件の一部を撮影したものです。物件の契約にあたっての最終判断はご自身の判断に基づいて行ってください。
- 仲介手数料について

アットホームは物件情報の適正化に努めております。
内容に誤りがある場合にはこちらへご連絡ください。