神奈川県横浜市鶴見区下末吉4丁目(鶴見市場駅)の貸店舗:物件詳細
交通 所在地 |
駅徒歩 |
賃料 管理費等 |
敷金/保証金 礼金 |
使用部分面積 坪数/坪単価 |
物件種目 築年月 |
|
京急本線/鶴見市場
神奈川県横浜市鶴見区下末吉4丁目
|
27分
|
33.66万円
5,500円
|
3ヶ月 / なし
1ヶ月
|
111.81m²
33.82坪/0.9952万円
|
貸店舗
1988年11月(築37年1ヶ月)
|
|
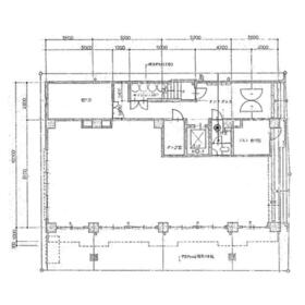
間取図
111.81㎡(33.82坪)スケルトン渡しとなります。
|
1階ロードサイドテナントのご紹介となります。目立ちます。
|
その他の画像
|
| 交通 | 京急本線 鶴見市場駅 徒歩27分 |
|---|
| その他の交通 | JR南武線 尻手駅 徒歩23分 JR京浜東北線 鶴見駅 徒歩22分 |
| 所在地 |
神奈川県横浜市鶴見区下末吉4丁目
|
| 物件種目 |
貸店舗 |
| 賃料 |
33.66万円 |
管理費等 |
5,500円 |
| 敷金 / 保証金 |
3ヶ月 / なし |
礼金 |
1ヶ月 |
| 敷引 |
1ヶ月 |
坪単価 |
0.9952万円 |
| 保証金償却 |
- |
権利金 |
- |
| 造作譲渡 |
- |
その他一時金 |
- |
| 維持費等 |
- |
保険等 |
- |
| 使用部分面積 |
111.81m² |
坪数 |
33.82坪 |
| 築年月 |
1988年11月(築37年1ヶ月)
|
階建 / 階 |
5階建 / 1階 |
| 駐車場 |
- |
バイク置き場 |
- |
| 駐輪場 |
- |
土地面積 |
- |
| 接道状況 |
東 12.0m
|
用途地域 |
近隣商業 |
| 間取り |
ワンルーム |
建物構造 |
SRC |
| アピールポイント |
1階ロードサイドテナントのご紹介となります。以前は介護サービス事業がご入居!1階ロードサイドテナントですので目立ちます。また飲食店も可能です。周辺一種低層地域多く、集客性◎まずはお気軽にお問合せ下さい |
| 建物名・部屋番号 |
|
| リフォーム履歴 |
- |
| リノベーション履歴 |
- |
| 特記事項 |
土曜日利用可、土日・祝日利用可、飲食店可、1フロア1テナント、角部屋、IT重説対応物件、保証人不要、国道沿いに面する、都道府県道沿いに面する |
| 備考 |
管理形態/管理員の勤務形態:-/-
主要採光面:東向き
IT重説対応物件
※指定賃貸保証会社加入義務あり
※3年定期借家契約、再契約相談可、再契約料は新賃料の1ヶ月!
※【引渡し】スケルトン
|
| エネルギー消費性能 |
- |
| 断熱性能 |
- |
| 目安光熱費 |
- |
| バス・トイレ |
- |
| キッチン |
- |
| 設備・サービス |
看板取付スペースあり |
| その他 |
- |
| 契約期間 |
3年 |
条件等 |
- |
| 引渡可能時期 |
即時 |
現況 |
空 |
| 更新料 |
新賃料 1ヶ月 |
物件番号 |
6987721764 |
| 情報公開日 |
2025年9月20日 |
次回更新予定日 |
2025年11月10日 |
| ケータイ用バーコード |
- スマートフォンでこの物件を見る
- スマートフォンからもこの物件をご覧になれます。
|
※「-」と表示されている項目については、情報提供会社にご確認ください。
ここから簡単にお問い合わせをすることができます。
(SSLでの暗号化での送信を希望されるお客さまは
こちら
よりお問い合わせください)
お問い合わせを行う前に
「個人情報の取り扱いについて」を必ずお読みください。
「個人情報の取り扱いについて」に同意いただいた場合は「上記にご同意の上 確認画面へ進む」のボタンをクリックしてください。
個人情報の取り扱いについて
皆さまが送付された個人情報はアットホーム(株)のサーバを経由し、お問い合わせ先の不動産会社にメールまたはFAXにて転送されるためアットホーム(株)にも保管されます。アットホーム(株)で保管された個人情報の取り扱いについては、【こちら】をご覧ください。
また、本画面でご記入いただいた個人情報は、お問い合わせ先の不動産会社でも保管します。 お問い合わせ先の不動産会社が保管する個人情報の取り扱いについては、不動産会社に直接お問い合わせください。
神奈川県知事免許(1)第32524号 |
|---|
- 交通:
- JR根岸線/石川町駅 徒歩8分 【バス】2分 横浜スタジアム前 停歩7分
- 神奈川県横浜市中区山下町200-12 永光ビル1階
- TEL:
- 045-211-4072
- 所属団体:
- (公社)神奈川県宅地建物取引業協会会員(公社)首都圏不動産公正取引協議会加盟
取引態様:仲介  - 00278662
|
- スマートフォンで
この不動産会社を見る

|
- 提携サイト等より掲載されている物件情報につきましては、不動産会社詳細情報にリンクされていないものがあります。
- 物件に関するお問合せは、物件詳細ページの「情報提供会社」に表示されている不動産会社へ直接お願いいたします。
- 間取図は、現況を優先させていただきます。
- 映像は物件の一部を撮影したものです。物件の契約にあたっての最終判断はご自身の判断に基づいて行ってください。
- 仲介手数料について

アットホームは物件情報の適正化に努めております。
内容に誤りがある場合にはこちらへご連絡ください。