東京都中央区銀座4丁目(銀座駅)の貸店舗:物件詳細
交通 所在地 |
駅徒歩 |
賃料 管理費等 |
敷金/保証金 礼金 |
使用部分面積 坪数/坪単価 |
物件種目 築年月 |
|
東京メトロ丸ノ内線/銀座
東京都中央区銀座4丁目
|
1分
|
361.07万円
180,537円
|
なし / 12ヶ月
なし
|
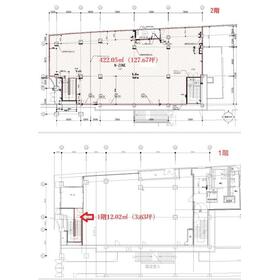
434.07m²
131.30坪/2.7499万円
|
貸店舗・事務所
1958年6月(築67年7ヶ月)
|
|
間取図
|
|
その他の画像
|
| 交通 | 東京メトロ丸ノ内線 銀座駅 徒歩1分 |
|---|
| その他の交通 | 東京メトロ日比谷線 銀座駅 徒歩1分 JR山手線 有楽町駅 徒歩3分 |
| 所在地 |
東京都中央区銀座4丁目
|
| 物件種目 |
貸店舗・事務所 |
| 賃料 |
361.07万円 |
管理費等 |
180,537円 |
| 敷金 / 保証金 |
なし / 12ヶ月 |
礼金 |
なし |
| 敷引 |
- |
坪単価 |
2.7499万円 |
| 保証金償却 |
- |
権利金 |
- |
| 造作譲渡 |
- |
その他一時金 |
- |
| 維持費等 |
- |
保険等 |
要 |
| 使用部分面積 |
434.07m² |
坪数 |
131.30坪 |
| 築年月 |
1958年6月(築67年7ヶ月)
|
階建 / 階 |
地上2階地下2階建 / 1階~2階部分 |
| 駐車場 |
- |
バイク置き場 |
- |
| 駐輪場 |
- |
土地面積 |
- |
| 接道状況 |
-
|
用途地域 |
- |
| 間取り |
- |
建物構造 |
RC |
| アピールポイント |
有楽町駅、銀座駅から資金で利便性が非常に高い物件です。事務所・ショールーム、スクール、クリニック、サービス店舗、その他様々な用途にてご検討ください。1階店舗をお探しの際はお気軽にご相談ください、未掲載の案件のご提案も可能です。 |
| 建物名・部屋番号 |
|
| リフォーム履歴 |
■その他:2010年12月 トレイ・共用部改修、耐震改修施工済 ※実施年月は最も古い履歴を表示 |
| リノベーション履歴 |
- |
| 特記事項 |
土曜日利用可、土日・祝日利用可、OAフロア、角部屋 |
| 備考 |
管理形態/管理員の勤務形態:-/-
|
| エネルギー消費性能 |
- |
| 断熱性能 |
- |
| 目安光熱費 |
- |
| バス・トイレ |
トイレ2ヶ所、共用部分に男女別トイレあり、多機能トイレ |
| キッチン |
- |
| 設備・サービス |
空調機あり
個別空調、エアコン2台以上、エアコン |
| その他 |
- |
| 契約期間 |
3年 |
条件等 |
定期借家 |
| 引渡可能時期 |
2026年1月上旬予定 |
現況 |
使用中 |
| 更新料 |
- |
物件番号 |
6987769283 |
| 情報公開日 |
2025年9月24日 |
次回更新予定日 |
2025年12月26日 |
| ケータイ用バーコード |
- スマートフォンでこの物件を見る
- スマートフォンからもこの物件をご覧になれます。
|
※「-」と表示されている項目については、情報提供会社にご確認ください。
ここから簡単にお問い合わせをすることができます。
(SSLでの暗号化での送信を希望されるお客さまは
こちら
よりお問い合わせください)
お問い合わせを行う前に
「個人情報の取り扱いについて」を必ずお読みください。
「個人情報の取り扱いについて」に同意いただいた場合は「上記にご同意の上 確認画面へ進む」のボタンをクリックしてください。
個人情報の取り扱いについて
皆さまが送付された個人情報はアットホーム(株)のサーバを経由し、お問い合わせ先の不動産会社にメールまたはFAXにて転送されるためアットホーム(株)にも保管されます。アットホーム(株)で保管された個人情報の取り扱いについては、【こちら】をご覧ください。
また、本画面でご記入いただいた個人情報は、お問い合わせ先の不動産会社でも保管します。 お問い合わせ先の不動産会社が保管する個人情報の取り扱いについては、不動産会社に直接お問い合わせください。
東京都知事免許(4)第88428号 |
|---|
- 交通:
- 東京メトロ銀座線/銀座駅 徒歩5分
- 東京都中央区銀座1丁目6-17 アネックス福神ビル6F
- TEL:
- 03-5524-2992
- FAX:
- 03-5524-2993
- 所属団体:
- (公社)東京都宅地建物取引業協会会員(公社)首都圏不動産公正取引協議会加盟
取引態様:仲介  - 00018863
|
- スマートフォンで
この不動産会社を見る

|
- 提携サイト等より掲載されている物件情報につきましては、不動産会社詳細情報にリンクされていないものがあります。
- 物件に関するお問合せは、物件詳細ページの「情報提供会社」に表示されている不動産会社へ直接お願いいたします。
- 間取図は、現況を優先させていただきます。
- 映像は物件の一部を撮影したものです。物件の契約にあたっての最終判断はご自身の判断に基づいて行ってください。
- 仲介手数料について

アットホームは物件情報の適正化に努めております。
内容に誤りがある場合にはこちらへご連絡ください。