東京都渋谷区神宮前5丁目(表参道駅)の貸店舗:物件詳細
交通 所在地 |
駅徒歩 |
賃料 管理費等 |
敷金/保証金 礼金 |
使用部分面積 坪数/坪単価 |
物件種目 築年月 |
|
東京メトロ銀座線/表参道
東京都渋谷区神宮前5丁目
|
7分
|
89.6148万円
-
|
なし / 5ヶ月
1ヶ月
|
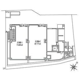
74.80m²
22.62坪/3.9606万円
|
貸店舗
2025年7月(新築)
|
|
間取図
|
外観
|
その他の画像
|
| 交通 | 東京メトロ銀座線 表参道駅 徒歩7分 |
|---|
| その他の交通 | 東京メトロ千代田線 明治神宮前駅 徒歩10分 JR山手線 原宿駅 徒歩12分 |
| 所在地 |
東京都渋谷区神宮前5丁目
|
| 物件種目 |
貸店舗 |
| 賃料 |
89.6148万円 |
管理費等 |
- |
| 敷金 / 保証金 |
なし / 5ヶ月 |
礼金 |
1ヶ月 |
| 敷引 |
- |
坪単価 |
3.9606万円 |
| 保証金償却 |
解約時15% |
権利金 |
- |
| 造作譲渡 |
- |
その他一時金 |
- |
| 維持費等 |
- |
保険等 |
要 火災保険 |
| 使用部分面積 |
74.80m² |
坪数 |
22.62坪 |
| 築年月 |
2025年7月(新築)
|
階建 / 階 |
地上5階地下1階建 / 1階 |
| 駐車場 |
- |
バイク置き場 |
- |
| 駐輪場 |
- |
土地面積 |
- |
| 接道状況 |
-
|
用途地域 |
- |
| 間取り |
- |
建物構造 |
RC |
| 建物名・部屋番号 |
豊匯ビル 1階-1 |
| リフォーム履歴 |
- |
| リノベーション履歴 |
- |
| 特記事項 |
スケルトン、飲食店不可、フリーレント |
| 備考 |
賃貸保証等:加入要(必須(70%~100%))
管理形態/管理員の勤務形態:-/-
主要採光面:北西向き
フリーレント:1ヶ月
・飲食業不可
・空調機器はA工事・消防設備B工事
・確認申請の用途の関係で1階店舗のガス管そのものはありません。
ガス使用の場合、プロパンガスになります。
・図面と現況が異なる場合は現況優先となります。
・倉庫部分について賃貸可能かは相談可能
|
| エネルギー消費性能 |
- |
| 断熱性能 |
- |
| 目安光熱費 |
- |
| バス・トイレ |
- |
| キッチン |
- |
| 設備・サービス |
- |
| その他 |
- |
| 契約期間 |
5年 |
条件等 |
定期借家 |
| 引渡可能時期 |
即時 |
現況 |
完成済 |
| 更新料 |
- |
物件番号 |
6987776345 |
| 情報公開日 |
2025年9月25日 |
次回更新予定日 |
2026年5月13日 |
| ケータイ用バーコード |
- スマートフォンでこの物件を見る
- スマートフォンからもこの物件をご覧になれます。
|
※「-」と表示されている項目については、情報提供会社にご確認ください。
ここから簡単にお問い合わせをすることができます。
(SSLでの暗号化での送信を希望されるお客さまは
こちら
よりお問い合わせください)
お問い合わせを行う前に
「個人情報の取り扱いについて」を必ずお読みください。
「個人情報の取り扱いについて」に同意いただいた場合は「上記にご同意の上 確認画面へ進む」のボタンをクリックしてください。
個人情報の取り扱いについて
皆さまが送付された個人情報はアットホーム(株)のサーバを経由し、お問い合わせ先の不動産会社にメールまたはFAXにて転送されるためアットホーム(株)にも保管されます。アットホーム(株)で保管された個人情報の取り扱いについては、【こちら】をご覧ください。
また、本画面でご記入いただいた個人情報は、お問い合わせ先の不動産会社でも保管します。 お問い合わせ先の不動産会社が保管する個人情報の取り扱いについては、不動産会社に直接お問い合わせください。
東京都知事免許(2)第99243号 |
|---|
- 交通:
- JR山手線/大塚駅 徒歩3分
- 東京都豊島区北大塚2丁目18-8
- TEL:
- 03-5961-3050
- FAX:
- 03-5961-3051
- 所属団体:
- (公社)全日本不動産協会会員(公社)首都圏不動産公正取引協議会加盟
取引態様:仲介  - 00261439
|
- スマートフォンで
この不動産会社を見る

|
- 提携サイト等より掲載されている物件情報につきましては、不動産会社詳細情報にリンクされていないものがあります。
- 物件に関するお問合せは、物件詳細ページの「情報提供会社」に表示されている不動産会社へ直接お願いいたします。
- 間取図は、現況を優先させていただきます。
- 映像は物件の一部を撮影したものです。物件の契約にあたっての最終判断はご自身の判断に基づいて行ってください。
- 仲介手数料について

アットホームは物件情報の適正化に努めております。
内容に誤りがある場合にはこちらへご連絡ください。