神奈川県横浜市南区六ツ川4丁目(東戸塚駅)の貸店舗:物件詳細
交通 所在地 |
駅徒歩 |
賃料 管理費等 |
敷金/保証金 礼金 |
使用部分面積 坪数/坪単価 |
物件種目 築年月 |
|
JR横須賀線/東戸塚 [バス利用可] バス 11分 六ッ川四丁目 停歩1分
神奈川県横浜市南区六ツ川4丁目
|
25分
|
12.65万円
5,500円
|
なし / 3ヶ月
なし
|
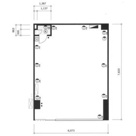
47.40m²
14.33坪/0.8823万円
|
貸店舗・事務所
1987年12月(築37年11ヶ月)
|
|
間取図
|
外観
|
その他の画像
|
| 交通 | JR横須賀線 東戸塚駅 徒歩25分 [バス利用可] バス 11分 六ッ川四丁目 停歩1分 |
|---|
| その他の交通 | 京急本線 弘明寺駅 【バス】 9分 六ッ川四丁目 停歩1分 JR東海道本線 戸塚駅 【バス】 20分 六ツ川四丁目 停歩1分 |
| 所在地 |
神奈川県横浜市南区六ツ川4丁目
|
| 物件種目 |
貸店舗・事務所 |
| 賃料 |
12.65万円 |
管理費等 |
5,500円 |
| 敷金 / 保証金 |
なし / 3ヶ月 |
礼金 |
なし |
| 敷引 |
- |
坪単価 |
0.8823万円 |
| 保証金償却 |
解約時1ヶ月 短期解約違約金有 |
権利金 |
- |
| 造作譲渡 |
- |
その他一時金 |
- |
| 維持費等 |
- |
保険等 |
要 |
| 使用部分面積 |
47.40m² |
坪数 |
14.33坪 |
| 築年月 |
1987年12月(築37年11ヶ月)
|
階建 / 階 |
3階建 / 1階 |
| 駐車場 |
近有 16,500円/月 近隣駐車場は本物件より徒歩2分。住所:南区六ッ川4-1154-34隣地の区画になります。別途1年契約、敷金1ヶ月必要。普通車区画16,500円。 |
バイク置き場 |
無 |
| 駐輪場 |
無 |
土地面積 |
- |
| 接道状況 |
-
|
用途地域 |
- |
| 間取り |
- |
建物構造 |
鉄骨造 |
| アピールポイント |
不動産を借りる際に一番怖い「トラブル」というのは必ず契約後、入居後に発生します。弊社は不動産仲介のプロとして、入居後に発生するトラブルを極力無くすように契約前に様々なアドバイスをさせて頂きます。また、入居後に何かしらの事故やトラブルが発生した際もアフターサービスとして担当者が管理会社や家主様との話し合いに一緒に対応致します。公平公正で安心の不動産取引が出来るように弁護士・税理士・司法書士・行政書士等の様々な士業との提携をはじめ、金融機関・工務店・ディベロッパーなど多岐にわたるご紹介が可能です。
お客様が開業・移転される事でその地域が発展し、魅力ある街の発展となるよう真心をもって物件をご紹介いたします。 |
| 建物名・部屋番号 |
|
| リフォーム履歴 |
■水回り:2025年1月 キッチン、トイレ ■内装:2025年1月 全室クロス張替え、床(フローリング等) ※実施年月は最も古い履歴を表示 |
| リノベーション履歴 |
- |
| 特記事項 |
飲食店不可、フリーレント、角部屋、都道府県道沿いに面する |
| 備考 |
賃貸保証等:加入要(日本セーフティー 契約時 総賃料の100%、1年毎に総賃料の10%、口座振替料440円/月。)
管理形態/管理員の勤務形態:-/-
フリーレント:1ヶ月
県道平戸桜木道路沿いの1階。
側面に駐輪スペース付。
フリーレント1ヶ月は管理費も含みます。
短期解約違約金有。
満期以降の解約時1ヶ月償却。
設備・備品等の動作保証はありません。
消費税抜金額115,000円、管理費5,000円。
短期貸し不可。飲食店不可。コインランドリー不可。
近隣駐車場は本物件より徒歩2分。住所:南区六ッ川4-1154-34隣地の区画になります。別途1年契約、敷金1ヶ月必要。普通車区画16,500円(税込)。
|
| エネルギー消費性能 |
- |
| 断熱性能 |
- |
| 目安光熱費 |
- |
| バス・トイレ |
専有部分にトイレあり |
| キッチン |
- |
| 設備・サービス |
シャッター付き
シャッター雨戸、エアコン |
| その他 |
- |
| 契約期間 |
2年 |
条件等 |
- |
| 引渡可能時期 |
即時 |
現況 |
空 |
| 仲介手数料 |
1.1ヶ月 |
適格請求書発行 |
可
|
| 更新料 |
新賃料 1ヶ月 |
物件番号 |
6987792890 |
| 情報公開日 |
2025年9月26日 |
次回更新予定日 |
2025年11月5日 |
| ケータイ用バーコード |
- スマートフォンでこの物件を見る
- スマートフォンからもこの物件をご覧になれます。
|
※「-」と表示されている項目については、情報提供会社にご確認ください。
ここから簡単にお問い合わせをすることができます。
(SSLでの暗号化での送信を希望されるお客さまは
こちら
よりお問い合わせください)
お問い合わせを行う前に
「個人情報の取り扱いについて」を必ずお読みください。
「個人情報の取り扱いについて」に同意いただいた場合は「上記にご同意の上 確認画面へ進む」のボタンをクリックしてください。
個人情報の取り扱いについて
皆さまが送付された個人情報はアットホーム(株)のサーバを経由し、お問い合わせ先の不動産会社にメールまたはFAXにて転送されるためアットホーム(株)にも保管されます。アットホーム(株)で保管された個人情報の取り扱いについては、【こちら】をご覧ください。
また、本画面でご記入いただいた個人情報は、お問い合わせ先の不動産会社でも保管します。 お問い合わせ先の不動産会社が保管する個人情報の取り扱いについては、不動産会社に直接お問い合わせください。
国土交通大臣免許(3)第8356号 |
|---|
- 交通:
- JR京浜東北線/横浜駅 徒歩4分
- 神奈川県横浜市西区北幸1丁目11-5 相鉄KSビル9F
- TEL:
- 045-313-1156
- FAX:
- 045-313-1158
- 所属団体:
- (公社)神奈川県宅地建物取引業協会会員不動産公正取引協議会加盟
取引態様:仲介  - 00107889
|
- スマートフォンで
この不動産会社を見る

|
- 提携サイト等より掲載されている物件情報につきましては、不動産会社詳細情報にリンクされていないものがあります。
- 物件に関するお問合せは、物件詳細ページの「情報提供会社」に表示されている不動産会社へ直接お願いいたします。
- 間取図は、現況を優先させていただきます。
- 映像は物件の一部を撮影したものです。物件の契約にあたっての最終判断はご自身の判断に基づいて行ってください。
- 仲介手数料について

アットホームは物件情報の適正化に努めております。
内容に誤りがある場合にはこちらへご連絡ください。