愛知県名古屋市中村区椿町(名古屋駅)の貸店舗:物件詳細
交通 所在地 |
駅徒歩 |
賃料 管理費等 |
敷金/保証金 礼金 |
使用部分面積 坪数/坪単価 |
物件種目 築年月 |
|
JR中央線/名古屋
愛知県名古屋市中村区椿町
|
2分
|
30.8万円
8,800円
|
なし / 6ヶ月
なし
|
35.93m²
10.86坪/2.8339万円
|
貸店舗
2025年12月(新築)
|
|
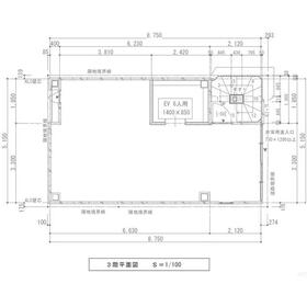
間取図
|
|
その他の画像
|
| 交通 | JR中央線 名古屋駅 徒歩2分 |
|---|
| その他の交通 | 名古屋市東山線 名古屋駅 徒歩8分 名古屋市桜通線 太閤通駅 徒歩10分 |
| 所在地 |
愛知県名古屋市中村区椿町
|
| 物件種目 |
貸店舗 |
| 賃料 |
30.8万円 |
管理費等 |
8,800円 |
| 敷金 / 保証金 |
なし / 6ヶ月 |
礼金 |
なし |
| 敷引 |
- |
坪単価 |
2.8339万円 |
| 保証金償却 |
解約時33% 5年未満100% 8年未満88% |
権利金 |
- |
| 造作譲渡 |
- |
その他一時金 |
- |
| 維持費等 |
看板掲出料:3,300円/月、インターネット(フレッツ光)使用料:3,300円/月 |
保険等 |
要 |
| 使用部分面積 |
35.93m² |
坪数 |
10.86坪 |
| 築年月 |
2025年12月(新築)
|
階建 / 階 |
5階建 / 3階 |
| 駐車場 |
- |
バイク置き場 |
- |
| 駐輪場 |
- |
土地面積 |
- |
| 接道状況 |
東
|
用途地域 |
- |
| 間取り |
- |
建物構造 |
鉄骨造 |
| 建物名・部屋番号 |
東勝椿町ビル 3階 |
| リフォーム履歴 |
- |
| リノベーション履歴 |
- |
| 特記事項 |
スケルトン、24時間利用可、土日・祝日利用可、飲食店可、1フロア1テナント |
| 備考 |
賃貸保証等:加入要(保証料借主負担)
管理形態/管理員の勤務形態:-/-
主要採光面:東向き
●ゴミ処理費別途要(個別契約)●原状回復・消防設備工事指定会社あり ●風俗営業不可
|
| エネルギー消費性能 |
- |
| 断熱性能 |
- |
| 目安光熱費 |
- |
| バス・トイレ |
- |
| キッチン |
- |
| 設備・サービス |
看板取付スペースあり
個別空調、都市ガス、動力あり、光ファイバー |
| その他 |
エレベーター |
| 契約期間 |
10年 |
条件等 |
定期借家 |
| 引渡可能時期 |
2025年12月下旬予定 |
現況 |
未完成 |
| 更新料 |
- |
物件番号 |
6987810683 |
| 情報公開日 |
2025年9月27日 |
次回更新予定日 |
2025年12月14日 |
| ケータイ用バーコード |
- スマートフォンでこの物件を見る
- スマートフォンからもこの物件をご覧になれます。
|
※「-」と表示されている項目については、情報提供会社にご確認ください。
| 周辺施設 |
ペッパーランチ名古屋駅西店 |
| 距離 |
71m |
| 周辺施設 |
カフェ・ド・クリエエスカ店 |
| 距離 |
191m |
ここから簡単にお問い合わせをすることができます。
(SSLでの暗号化での送信を希望されるお客さまは
こちら
よりお問い合わせください)
お問い合わせを行う前に
「個人情報の取り扱いについて」を必ずお読みください。
「個人情報の取り扱いについて」に同意いただいた場合は「上記にご同意の上 確認画面へ進む」のボタンをクリックしてください。
個人情報の取り扱いについて
皆さまが送付された個人情報はアットホーム(株)のサーバを経由し、お問い合わせ先の不動産会社にメールまたはFAXにて転送されるためアットホーム(株)にも保管されます。アットホーム(株)で保管された個人情報の取り扱いについては、【こちら】をご覧ください。
また、本画面でご記入いただいた個人情報は、お問い合わせ先の不動産会社でも保管します。 お問い合わせ先の不動産会社が保管する個人情報の取り扱いについては、不動産会社に直接お問い合わせください。
愛知県知事免許(8)第16317号 |
|---|
- 交通:
- 名古屋市東山線/栄駅 徒歩6分
- 愛知県名古屋市中区栄4丁目18-12
- TEL:
- 052-262-7777
- FAX:
- 052-262-7776
- 所属団体:
- (公社)愛知県宅地建物取引業協会会員(一社)全国賃貸不動産管理業協会会員東海不動産公正取引協議会加盟
取引態様:代理  - 40000910
|
- スマートフォンで
この不動産会社を見る

|
- 提携サイト等より掲載されている物件情報につきましては、不動産会社詳細情報にリンクされていないものがあります。
- 物件に関するお問合せは、物件詳細ページの「情報提供会社」に表示されている不動産会社へ直接お願いいたします。
- 間取図は、現況を優先させていただきます。
- 映像は物件の一部を撮影したものです。物件の契約にあたっての最終判断はご自身の判断に基づいて行ってください。
- 仲介手数料について

アットホームは物件情報の適正化に努めております。
内容に誤りがある場合にはこちらへご連絡ください。