愛知県岡崎市康生通南2丁目(東岡崎駅)の貸店舗:物件詳細
交通 所在地 |
駅徒歩 |
賃料 管理費等 |
敷金/保証金 礼金 |
使用部分面積 坪数/坪単価 |
物件種目 築年月 |
|
名鉄名古屋本線/東岡崎
愛知県岡崎市康生通南2丁目
|
10分
|
53.504万円
11,000円
|
なし / 160.512万円
53.504万円
|
201.53m²
60.96坪/0.8777万円
|
貸店舗・事務所
1985年8月(築40年8ヶ月)
|
|
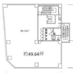
間取図
|
|
<
その他の画像
>
|
| 交通 | 名鉄名古屋本線 東岡崎駅 徒歩10分 |
|---|
| その他の交通 | 名鉄名古屋本線 岡崎公園前駅 徒歩15分 愛知環状鉄道 中岡崎駅 徒歩15分 |
| 所在地 |
愛知県岡崎市康生通南2丁目
|
| 物件種目 |
貸店舗・事務所 |
| 賃料 |
53.504万円 |
管理費等 |
11,000円 |
| 敷金 / 保証金 |
なし / 160.512万円 |
礼金 |
53.504万円 |
| 敷引 |
- |
坪単価 |
0.8777万円 |
| 保証金償却 |
解約時30% 借主都合での3年未満の解約は保証金30%償却 |
権利金 |
- |
| 造作譲渡 |
- |
その他一時金 |
- |
| 維持費等 |
- |
保険等 |
要 火災保険借家人賠償付き加入必須 |
| 使用部分面積 |
201.53m² |
坪数 |
60.96坪 |
| 築年月 |
1985年8月(築40年8ヶ月)
|
階建 / 階 |
8階建 / 5階 |
| 駐車場 |
有 19,800円/月(空き1台) 併設立体駐車場は、2台目相談可 |
バイク置き場 |
- |
| 駐輪場 |
- |
土地面積 |
256.00m²(公簿) |
| 接道状況 |
-
|
用途地域 |
商業地域 |
| 間取り |
- |
建物構造 |
SRC |
| アピールポイント |
〇契約の流れ〇
1:内覧(内覧後、工事業者一緒に現地を確認して見積もりをとったり、融資の準備進めます)
2:申込(契約条件相談)
3:審査
4:契約書作成
5:入金・契約
6:引き渡し
※申込撤回時に費用はかかりません。
ご不明な点は、経験豊富な弊社スタッフが丁寧にご対応いたします。
まずはお気軽にお問合せ下さい。 |
| 建物名・部屋番号 |
東海保険ガーデンビル 5階フロア |
| リフォーム履歴 |
- |
| リノベーション履歴 |
- |
| 特記事項 |
角部屋 |
| 備考 |
賃貸保証等:加入要(初回保障委託料:賃料+駐車場+共益費の1ヶ月分必要)
管理形態/管理員の勤務形態:-/-
・現状渡し(エアコン・給湯等の設備を含む)
・事務所部分専有面積164.12㎡、約49.64坪
・衛生部分専有面積37.41㎡、約11.31坪
・併設立体駐車場は、2台目相談可
・オール電化
・床OAフロア
・エレベーター有
・飲食店不可
・男女別トイレ有
・保証会社、火災保険借家人賠償付き加入必須
・内見できます!業種等、気になることは何でもご相談ください。
|
| エネルギー消費性能 |
- |
| 断熱性能 |
- |
| 目安光熱費 |
- |
| バス・トイレ |
- |
| キッチン |
- |
| 設備・サービス |
空調機あり
給湯、エアコン |
| その他 |
エレベーター |
| 契約期間 |
2年 |
条件等 |
- |
| 引渡可能時期 |
相談 |
現況 |
空 |
| 更新料 |
- |
物件番号 |
6987816394 |
| 情報公開日 |
2025年9月28日 |
次回更新予定日 |
2026年3月27日 |
| ケータイ用バーコード |
- スマートフォンでこの物件を見る
- スマートフォンからもこの物件をご覧になれます。
|
※「-」と表示されている項目については、情報提供会社にご確認ください。
ここから簡単にお問い合わせをすることができます。
(SSLでの暗号化での送信を希望されるお客さまは
こちら
よりお問い合わせください)
お問い合わせを行う前に
「個人情報の取り扱いについて」を必ずお読みください。
「個人情報の取り扱いについて」に同意いただいた場合は「上記にご同意の上 確認画面へ進む」のボタンをクリックしてください。
個人情報の取り扱いについて
皆さまが送付された個人情報はアットホーム(株)のサーバを経由し、お問い合わせ先の不動産会社にメールまたはFAXにて転送されるためアットホーム(株)にも保管されます。アットホーム(株)で保管された個人情報の取り扱いについては、【こちら】をご覧ください。
また、本画面でご記入いただいた個人情報は、お問い合わせ先の不動産会社でも保管します。 お問い合わせ先の不動産会社が保管する個人情報の取り扱いについては、不動産会社に直接お問い合わせください。
愛知県知事免許(7)第17322号 |
|---|
- 交通:
- 東海道本線/三河安城駅 徒歩8分
- 愛知県安城市三河安城本町2丁目7-13
- TEL:
- 0566-77-5141
- FAX:
- 0566-77-4059
- 所属団体:
- (公社)愛知県宅地建物取引業協会会員東海不動産公正取引協議会加盟
取引態様:仲介  - 40005111
|
- スマートフォンで
この不動産会社を見る

|
- 提携サイト等より掲載されている物件情報につきましては、不動産会社詳細情報にリンクされていないものがあります。
- 物件に関するお問合せは、物件詳細ページの「情報提供会社」に表示されている不動産会社へ直接お願いいたします。
- 間取図は、現況を優先させていただきます。
- 映像は物件の一部を撮影したものです。物件の契約にあたっての最終判断はご自身の判断に基づいて行ってください。
- 仲介手数料について

アットホームは物件情報の適正化に努めております。
内容に誤りがある場合にはこちらへご連絡ください。