大阪府大阪市西区靱本町1丁目(本町駅)の貸店舗:物件詳細
交通 所在地 |
駅徒歩 |
賃料 管理費等 |
敷金/保証金 礼金 |
使用部分面積 坪数/坪単価 |
物件種目 築年月 |
|
地下鉄四つ橋線/本町
大阪府大阪市西区靱本町1丁目
|
5分
|
40.775万円
-
|
10万円 / なし
1ヶ月
|
53.91m²
16.30坪/2.5004万円
|
貸店舗
2026年2月(新築)
|
|
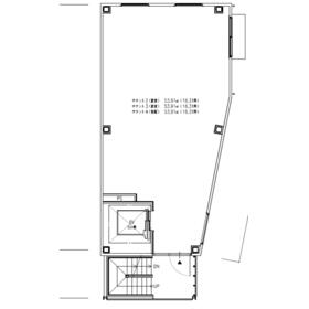
間取図
|
外観
イメージパース
|
その他の画像
|
| 交通 | 地下鉄四つ橋線 本町駅 徒歩5分 |
|---|
| その他の交通 | 地下鉄四つ橋線 肥後橋駅 徒歩5分 地下鉄御堂筋線 淀屋橋駅 徒歩10分 |
| 所在地 |
大阪府大阪市西区靱本町1丁目
|
| 物件種目 |
貸店舗 |
| 賃料 |
40.775万円 |
管理費等 |
- |
| 敷金 / 保証金 |
10万円 / なし |
礼金 |
1ヶ月 |
| 敷引 |
- |
坪単価 |
2.5004万円 |
| 保証金償却 |
- |
権利金 |
- |
| 造作譲渡 |
- |
その他一時金 |
- |
| 維持費等 |
- |
保険等 |
要 |
| 使用部分面積 |
53.91m² |
坪数 |
16.30坪 |
| 築年月 |
2026年2月(新築)
|
階建 / 階 |
5階建 / 2階 |
| 駐車場 |
- |
バイク置き場 |
- |
| 駐輪場 |
- |
土地面積 |
- |
| 接道状況 |
-
|
用途地域 |
- |
| 間取り |
- |
建物構造 |
鉄骨造 |
| アピールポイント |
★弊社管理の靭本町1丁目の新築テナントです!
★重飲食OKです!
★貸主負担でエアコン1台設置!
★夜間はLEDで目立つ物件です!
★お問い合わせお待ちしております! |
| 建物名・部屋番号 |
Dビル靭本町 2F |
| リフォーム履歴 |
- |
| リノベーション履歴 |
- |
| 特記事項 |
スケルトン、飲食店可、1フロア1テナント |
| 備考 |
管理形態/管理員の勤務形態:-/-
★2025年2月頃完成予定★
■電気:直接契約 (電灯60A・動力60A )
■水道:管理会社検針
■ガス:直接契約 (10号メーター)
■ゴミ:直接契約(指定有り)
■重飲食想定のビルの為、匂いのクレームは対応しません。
■指定保証会社加入要、指定火災保険加入要
■共用看板名入れ代:5,000円(税別)
■退去時エアコンクリーニング費:50,000円(税別)/1台
■カラオケOK(要防音措置)
■排気の位置指定有り
※参考図面(建築中の為、軽微な変更を生じる場合がございます)
※パースはイメージです。
|
| エネルギー消費性能 |
- |
| 断熱性能 |
- |
| 目安光熱費 |
- |
| バス・トイレ |
- |
| キッチン |
- |
| 設備・サービス |
看板取付スペースあり、空調機あり
都市ガス、エアコン、暖房、冷房 |
| その他 |
- |
| 契約期間 |
10年 |
条件等 |
定期借家 |
| 引渡可能時期 |
2026年2月下旬予定 |
現況 |
未完成 |
| 仲介手数料 |
1.1ヶ月 |
|
|
| 更新料 |
- |
物件番号 |
6987834887 |
| 情報公開日 |
2025年9月30日 |
次回更新予定日 |
2025年12月30日 |
| ケータイ用バーコード |
- スマートフォンでこの物件を見る
- スマートフォンからもこの物件をご覧になれます。
|
※「-」と表示されている項目については、情報提供会社にご確認ください。
| 周辺施設 |
UCHIPPA UTSUBO-PARK |
| 距離 |
246m |
| 周辺施設 |
(財)大阪科学技術センター |
| 距離 |
294m |
| 周辺施設 |
ファミリーマート京町堀店 |
| 距離 |
146m |
ここから簡単にお問い合わせをすることができます。
(SSLでの暗号化での送信を希望されるお客さまは
こちら
よりお問い合わせください)
お問い合わせを行う前に
「個人情報の取り扱いについて」を必ずお読みください。
「個人情報の取り扱いについて」に同意いただいた場合は「上記にご同意の上 確認画面へ進む」のボタンをクリックしてください。
個人情報の取り扱いについて
皆さまが送付された個人情報はアットホーム(株)のサーバを経由し、お問い合わせ先の不動産会社にメールまたはFAXにて転送されるためアットホーム(株)にも保管されます。アットホーム(株)で保管された個人情報の取り扱いについては、【こちら】をご覧ください。
また、本画面でご記入いただいた個人情報は、お問い合わせ先の不動産会社でも保管します。 お問い合わせ先の不動産会社が保管する個人情報の取り扱いについては、不動産会社に直接お問い合わせください。
大阪府知事免許(1)第64082号 |
|---|
- 交通:
- 地下鉄御堂筋線/心斎橋駅 徒歩2分
- 大阪府大阪市中央区西心斎橋1丁目12-8 大美建築ビル 7階
- TEL:
- 06-6599-8716
- FAX:
- 06-6599-8717
- 所属団体:
- (公社)全日本不動産協会会員(公社)近畿地区不動産公正取引協議会加盟
取引態様:仲介  - 50108088
|
- スマートフォンで
この不動産会社を見る

|
- 提携サイト等より掲載されている物件情報につきましては、不動産会社詳細情報にリンクされていないものがあります。
- 物件に関するお問合せは、物件詳細ページの「情報提供会社」に表示されている不動産会社へ直接お願いいたします。
- 間取図は、現況を優先させていただきます。
- 映像は物件の一部を撮影したものです。物件の契約にあたっての最終判断はご自身の判断に基づいて行ってください。
- 仲介手数料について

アットホームは物件情報の適正化に努めております。
内容に誤りがある場合にはこちらへご連絡ください。