神奈川県横浜市港北区綱島西1丁目(綱島駅)の貸店舗:物件詳細
交通 所在地 |
駅徒歩 |
賃料 管理費等 |
敷金/保証金 礼金 |
使用部分面積 坪数/坪単価 |
物件種目 築年月 |
|
東急東横線/綱島
神奈川県横浜市港北区綱島西1丁目
|
3分
|
66万円
176,000円
|
なし / 600万円
なし
|
172.82m²
52.27坪/1.2625万円
|
貸店舗
1990年9月(築35年4ヶ月)
|
| 交通 | 東急東横線 綱島駅 徒歩3分 |
|---|
| その他の交通 | 東急新横浜線 新綱島駅 徒歩5分 グリーンライン 日吉本町駅 徒歩25分 |
| 所在地 |
神奈川県横浜市港北区綱島西1丁目
|
| 物件種目 |
貸店舗 |
| 賃料 |
66万円 |
管理費等 |
176,000円 |
| 敷金 / 保証金 |
なし / 600万円 |
礼金 |
なし |
| 敷引 |
- |
坪単価 |
1.2625万円 |
| 保証金償却 |
解約時30% |
権利金 |
- |
| 造作譲渡 |
- |
その他一時金 |
- |
| 維持費等 |
電気基本料金:88,401円/月、消防設備点検費:39,600円/年 |
保険等 |
- |
| 使用部分面積 |
172.82m² |
坪数 |
52.27坪 |
| 築年月 |
1990年9月(築35年4ヶ月)
|
階建 / 階 |
地上4階地下1階建 / 2階 |
| 駐車場 |
- |
バイク置き場 |
- |
| 駐輪場 |
- |
土地面積 |
- |
| 接道状況 |
-
|
用途地域 |
- |
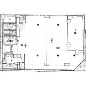
| 間取り |
- |
建物構造 |
RC |
| アピールポイント |
◎飲食店可能! ◎綱島駅至近 |
| 建物名・部屋番号 |
第82東京ビル 2階 |
| リフォーム履歴 |
- |
| リノベーション履歴 |
- |
| 特記事項 |
居抜き、飲食店可 |
| 備考 |
賃貸保証等:加入要(指定加入要)
管理形態/管理員の勤務形態:-/-
※消費税込
※居酒屋使用中(現状渡し)
※同業不可(飲食に関しては特色がなければOKです)
※風俗等・キャバクラ・ガールズバー不可
|
| エネルギー消費性能 |
- |
| 断熱性能 |
- |
| 目安光熱費 |
- |
| バス・トイレ |
- |
| キッチン |
- |
| 設備・サービス |
排水設備あり 、水道メーター口径25mm、電気容量(電灯)30KVA、電気容量(動力)25KW
給湯 |
| その他 |
- |
| 契約期間 |
3年 |
条件等 |
- |
| 引渡可能時期 |
相談 |
現況 |
使用中 |
| 更新料 |
新賃料 1.5ヶ月 |
物件番号 |
6987853241 |
| 情報公開日 |
2025年10月1日 |
次回更新予定日 |
2025年12月29日 |
| ケータイ用バーコード |
- スマートフォンでこの物件を見る
- スマートフォンからもこの物件をご覧になれます。
|
※「-」と表示されている項目については、情報提供会社にご確認ください。
ここから簡単にお問い合わせをすることができます。
(SSLでの暗号化での送信を希望されるお客さまは
こちら
よりお問い合わせください)
お問い合わせを行う前に
「個人情報の取り扱いについて」を必ずお読みください。
「個人情報の取り扱いについて」に同意いただいた場合は「上記にご同意の上 確認画面へ進む」のボタンをクリックしてください。
個人情報の取り扱いについて
皆さまが送付された個人情報はアットホーム(株)のサーバを経由し、お問い合わせ先の不動産会社にメールまたはFAXにて転送されるためアットホーム(株)にも保管されます。アットホーム(株)で保管された個人情報の取り扱いについては、【こちら】をご覧ください。
また、本画面でご記入いただいた個人情報は、お問い合わせ先の不動産会社でも保管します。 お問い合わせ先の不動産会社が保管する個人情報の取り扱いについては、不動産会社に直接お問い合わせください。
神奈川県知事免許(4)第25863号 |
|---|
- 交通:
- 東急東横線/反町駅 徒歩1分
- 神奈川県横浜市神奈川区松本町1丁目2-3 第2カヤギヤビル1階
- TEL:
- 045-326-2736
- FAX:
- 045-326-2737
- 所属団体:
- (公社)神奈川県宅地建物取引業協会会員(公社)首都圏不動産公正取引協議会加盟
取引態様:仲介  - 00013994
|
- スマートフォンで
この不動産会社を見る

|
- 提携サイト等より掲載されている物件情報につきましては、不動産会社詳細情報にリンクされていないものがあります。
- 物件に関するお問合せは、物件詳細ページの「情報提供会社」に表示されている不動産会社へ直接お願いいたします。
- 間取図は、現況を優先させていただきます。
- 映像は物件の一部を撮影したものです。物件の契約にあたっての最終判断はご自身の判断に基づいて行ってください。
- 仲介手数料について

アットホームは物件情報の適正化に努めております。
内容に誤りがある場合にはこちらへご連絡ください。